Signifying Media: The Imprinting of Palladio

Transformational sequence of Palazzo Porto to Palazzo Valmarana: Figural elements repositioned.

Digital visualization by the author.

View full image +

Fig. 1. (a) Andrea Palladio, Palazzo Valmarana, Vicenza, 1565–1580. Photograph by the author.
(b) Andrea Palladio, Loggia del Capitaniato, Vicenza, 1565–1572. Photograph by the author.

Portraying Barbaro’s Signifying Process

It is a common understanding that Palladio’s imprint on architecture—the canonical impression he has had on its history—is due in large part to him being the first architect in print, that is, the first architect to publish images of his own built work and projective building projects, which appeared in his 1570 publication I Quattro Libri dell’Architettura. This self-illustration of actualized designs (and those Palladio hoped to actualize) is in contrast to the hypothetical building designs in Sebastiano Serlio’s volumes that were published within his lifetime, or the designs in the fifteenth-century codices of Filarete and Francesco di Giorgio Martini that, like the rest of Serlio’s volumes, only made it into print centuries later. But the radical imprint of printing—and other media with which Palladio was directly associated—on his own architecture is a subject requiring a closer reading. This is in no small measure because it would not be possible to comprehend the later buildings that have perplexed many observers, in particular Palazzo Valmarana (1565–1580, Fig. 1a) but the Loggia del Capitaniato (1565–1572, Fig. 1b) as well, without—to use another of the definitions of imprint—taking into consideration the “impression produced by pressure, printing, or stamping” on a surface, indeed the very pressure of printing and other media, which in turn will result in the stamp of Palladio’s imprint on centuries of direct and indirect Palladianism. And further, without understanding the impressive (in the literal sense) combinatory multiscaled layering in the façades of these buildings, it would not be possible to understand the late work of Palladio’s churches (Figs. 2a, b), in particular the manifestation of a multiple imprinting onto the surface of their façades—the unsettling interpenetration of dual façades that Rudolf Wittkower called attention to in his “Principles of Palladio’s Architecture,” the first of his essays that would be developed into the Palladian section of his Architectural Principles in the Age of Humanism.1

View full image +

Fig. 2. (a) Andrea Palladio, San Giorgio Maggiore, Venice, 1565-1576. Photograph by the author.
(b) Andrea Palladio, Church of the Redentore, 1576-1586. Photograph by the author.

It was Daniele Barbaro, Palladio’s patron both of book and of building, who stated—in his commentary in the edition of Vitruvius for which he commissioned illustrations from Palladio—the value and significance of providing graphic impressions in order to make a cultural impression. Even more significantly, Barbaro posited the epistemological imperative that you can only know something through the distinction of its impression, in both the literal and figurative sense. In his discussion of Vitruvius’s statement that “all fields, and especially architecture, comprise two aspects: that which is signified and that which signifies it [quod significatur et quod significat],”2 made right in the first chapter of the first Book, Barbaro explained that the signified is the proposed work and the signifier is manifest reason (dimostrativa ragione)—expressed, in James Ackerman’s translation, in the following manner: “To signify is to demonstrate by signs [significare è per segni dimostrare], and signing is to impress [imprimere] the sign. When the work has been controlled by reason and finished with drawing [disegno], the Artificer [Artefice] has impressed [impresso] his sign, that is, the quality and the form that was in his mind” (Fig. 3).3

View full image +

Fig. 3. Danielle Barbaro, I Dieci Libri dell’ Architettvra di M. Vitrvvio (1567), 11. Library, Max Planck Institute for the History of Science.

The more recent translation of this passage by Kim Williams includes the original declarative opening (absent in Ackerman’s translation), while translating imprimere and impresso as “imprinting” and “imprinted”: “But by way of declaration I say that signifying is to demonstrate by signs, and signing is imprinting the sign. Hence, every work erected according to rationale and finished by design is imprinted with the sign of the maker—that is, the quality and the form that was in his mind.”4 This signifying impression/imprinting—I will be utilizing both relational meanings here—constitutes not a static condition but rather a dynamic process, as Ackerman has observed:

That process is described as “discourse”—Discorso—which is Barbaro’s rendering of Vitruvius’s ratiocinatio… . Discorso is the equivalent of disegno, a term much more widely used at the time, which is most effectively defined by Barbaro’s contemporary Vasari as denoting not only the process of drawing but the conception of any work of art. Barbaro’s “discourse” suggests an action and, still more, an ongoing interaction, a process.5

With regard to these relations, Margaret Muther D’Evelyn has noted that in “Italian, as in English, ‘segno’ or ‘sign’ is at the root of the word ‘disegnoordesign.’”6 This co-incidence of discourse and the media of its re-presentation, design and sign, will result in many of Palladio’s later works manifesting as enactments of demonstrative signification, as “an action and, still more, an ongoing interaction, a process.” In these buildings, this active and interactive process demonstrates, through its dynamic signing, the manifest imprint of drawn reasoning.

It was this desire “to communicate [desiderato … di communicare],” expressed by Barbaro right in his commentary of Book I, that instigated his employ of “M. Andrea Palladio Vicentino Architetto” to provide “drawings of the important figures [disegni de la figure importanti].”7 These drawings, it may be observed, include the tectonic figures of the orders and their associated elements, as well as the sculptural figures of reliefs and statues. Indeed, as Barbaro stated later in his commentary on Book III, in order for reasoning to be communicatively manifest, it needs to be expressed as a distinctively recognizable figuration: “Human cognition [humani cognitione] . . . whether of the sense or of the intellect, commences first with confused and indistinct [indistinte] things, but then drawing nearer to its object, becomes more definite and certain.” Thus, Barbaro initially chides Vitruvius for providing “us with an indistinct and confusing cognition of temples, taken from their figure and appearance, since the figure is a common object among sensible things,” but he notes further that the latter “descends then to the distance between parts, and will finally arrive at the particular and definite measure of every participle.”8 In terms of these figurations, if Barbaro’s conjoining of signifier and signified into signs brings to mind the linguist Ferdinand de Saussure’s similar articulation of these terms four centuries later in his proposal that the sign is the combination of the concept-signified and the image-signifier, these two individuals distant in time and forms of scholarship nonetheless coincide as well in regard to distinctive cognitive expression: “any conceptual difference perceived by the mind seeks to find expression through a distinct signifier, and two ideas that are no longer distinct in the mind tend to merge into the same signifier.”9

In Barbaro’s stated investigation of truth (investigare la verità), it is Palladio’s “most subtle and graceful drawings of plans, elevations, and sections [sottilissimi, & vaghi disegni della piante, de gli alzati, & de i profili]” that are being called upon, as precisely measured, to provide particular and definite figurations, transforming general, indistinct figures into distinctively figured signs. But Barbaro’s second adjective, vaghi, might give us pause here. While this translation is certainly correct in selecting this meaning from the others of the Italian root vago in this time, the word’s primary signified sense—vaga, errante—coming from the Latin root vagus, conveys those other meanings: doubtful, roaming, uncertain, unfixed, unsettled, unsteady, vague, and wandering.10 What becomes evident in considering the signifying effects of Barbaro’s and Palladio’s media campaigns is how, paradoxically, the distinct delineations of Palladio’s orthographic graphic technique—in the merged dimensional collapse of its projection and printing—resulted in the ambiguous dimensional distinctions of Palazzo Valmarana, the churches, and other later works through the collapsed figural merging of their recursive multilayers. The result is a subtle and sometimes not so subtle mobile unsettledness—“an action and, still more, an ongoing interaction, a process”—which indeed reveals the evidence and effects of agency in their media. This transmedial unsettledness will be related further in the sections below to the dimensional ambiguities and self-reflexivity of another medium in these campaigns: the trompe l’oeil frescoes within Palladio’s buildings, notably including those frescoes Paolo Veronese painted at the villa in Maser that Palladio had designed for Barbaro and his brother Marc’Antonio.

In Veronese’s well-known portrait of this patron in the Rijksmuseum, Daniele Barbaro is shown demonstrating the discursive quality of his reasoning by displaying pages depicting distinctive delineations he had in his mind of emblematic signs of architectural and astronomical figurations, imprinted as in his 1556 Vitruvius, along with a backdrop of their “actualized” related counterparts—interactively multilayered, as will be addressed in later sections, through the recursive foreground, middle ground, and background of the painting (Fig. 4a). Unlike the more generalized earlier portraits of Barbaro, the Rijksmuseum portrait has been aptly utilized by numerous commentators as the one that most signifies the official cultural and social portrayal of Barbaro’s character. Starting in the middle ground with his status in the ruling elite of Venice, Deborah Howard observes that his “ecclesiastic’s cape or mozzetta and finely pleated white muslin surplice,” a form of dress, is “readily associated with patriarchs.”11 This status is directly connected in the portrait’s fore- and midground to Barbaro’s extensive engagement with scholarly writing.12 The painting depicts his edition of Vitruvius as the media work he is most identified with and the work, as portrayed in this portrait, which most enacts and identifies him in the midst of imprinting his signifying practice through media. As Xavier F. Salomon has recognized, Barbaro’s grip on the book directs us not to its title, nor surprisingly to the very authorial name of the person being portrayed, let alone to the author being translated—all of which would have appeared toward the top of that page had Veronese not compositionally and tellingly defined this portrait’s edge by their extended absence—but rather to the bottom line of text (Fig. 4b), which even with its painterly drafted inscription signifies the publisher’s imprint (to use a third sense of this term).13

View full image +

Fig. 4. (a) Paolo Veronese, Portrait of Daniele Barbaro, 1565-1570. Rijksmuseum, Amsterdam.
(b) Paolo Veronese, Portrait of Daniele Barbaro, detail, 1565-1570. Rijksmuseum, Amsterdam.
(c) Titian (Tiziano Vecellio), Portrait of Giulio Romano. Web Gallery of Art.

Duncan Bull has observed how Veronese’s positioning of Barbaro and his media coincided with that of another significant portrait by this fellow Venetian painter, as it makes “use of the device, employed by Titian in his portrait of Giulio Romano of ca. 1537 [Fig. 4c], of showing a sitter holding an item that indicates his intellectual achievements while turning away from it.”14 Barbaro’s turning thus turns us toward the book itself, whose portrait this painting is of, as much as it is of Barbaro—even honored and titled with the only legible word (LIBRO) in the otherwise pseudo script of the painting. In this regard these painted pages have come to signify how Barbaro’s two decades spent waiting to become Patriarch of Aquileia—perpetually the next in line from his election in 1550 to his death in 1570—allowed him the time to pursue such intellectual achievements. In contemporaneous written accounts this seemingly contemplative patrician is portrayed nonetheless as a defender of a civically active life, as Manfredo Tafuri has noted, with a “strong need for action guided by theory,” and thus like Vitruvius critiquing the spatial practices of his contemporary Roman times, Barbaro felt compelled in his Vitruvius to comment on contemporary Venetian spatial politics. These comments ranged in scale from his critique of the local domestic building traditions of his fellow patricians, to his advocacy to modernize the construction of the civic institution of the Arsenale, to more extensive territorial recommendations regarding the reform of the fortifications of the city and the ecological management of the Venetian lagoon.15

What is significant is that in this strong need for action Barbaro felt the further need, in his commentary and edition of Vitruvius’s I dieci libri dell’architettura, to enlist the graphic attentions of Palladio, considering that this was the first book the architect would illustrate. Two years after Barbaro and Palladio’s trip to Rome, I dieci libri dell’architettura (1556) appeared under the imprint of the Venetian publisher Francesco Marcolini, “one of the two most prominent printing shops in Venice during the mid-sixteenth century.”16 This particular venture of Barbaro would initiate for Palladio a whole series of encounters with the then still relatively new medium of the illustrated printed book, fostered by the reigning Venetian book industry, which one estimate proposed published more than sixty percent of all the printed editions in Italy during this time period.17 Palladio’s engagement with publishing would lead to his I Quattro Libri fourteen years later, published under the imprint of Domenico de’ Franceschi, and five years hence, to his illustrated Italian edition of Julius Caesar’s Commentaries. This latter volume was printed by Domenico’s brother, Pietro de’ Franceschi, but the rights were held not by a publisher but by Palladio himself (a fifteen-year privilegio to protect his prints from being copied by other engravers), the co-incidence of illustrator and printer engaging in a joint venture of imprinting. But Palladio’s encounter with the Venetian book industry would lead to more than just a series of personal publications. This transmedial locus of exchange fostered innovative modes of mediated disegno, new acts of exploring representation as a mode of design and design as a mode of representation.18 Indeed, a series of historical investigations in the 1970s by Decio Gioseffi, Howard Burns, and Marcello Fagiolo in the Bollettino del Centro Internazionale di Studi di Architettura Andrea Palladio attempted to account for the unsettling dimensional ambiguities through this media effect on the late designs of Palladio, particularly with regard to his Palazzo Valmarana (Fig. 5). To account, in the words of Gioseffi, for:

how and where such practice of graphic design and development of the project has conditioned the objective outcomes of his architectural activity. Where, that is, in the completed work or in the final project, the presence of a given solution (or non-solution) can be attributed to the “pressure” of the conventions inherent to the chosen graphic notation system, more than to any “semiological institution” accredited within its specific field by the current building practice.19

View full image +

Fig. 5. Andrea Palladio, Palazzo Valmarana, Vicenza, half-elevation, woodcut, I Quattro Libri dell’Architettura (Venice, 1570), Book II: 17.

What is particularly significant is Gioseffi’s and Fagiolo’s own analytical use of visual representations in those articles—how the graphic orientations of these authors conditioned the objective outcomes of their own philological activity. The significance of that would be easy to overlook, as regarding this particular palazzo there is only a single visualization in Gioseffi’s article and two in Fagiolo’s, with merely three associated sentences in each text describing the analysis of the visualization amid many rather more generalized observations.20 Nonetheless, those accounts begin to explicate how Palladio’s media techniques put into play and into question certain cultural techniques of signification. If, as Gioseffi proposed above, a given resolution by Palladio can be attributed to the “conventions inherent of the chosen graphic notation system, more than any ‘semiological institution,’” the resultant late works nevertheless pressured the very epistemological and semiological institutionalization of architectural language and practice in this time—through their dynamic elision of the act of signifying (through the demonstration of signs) with the act of signing (through the impress of signs) onto the surfaces both of Palladio’s books and of his buildings.

Palladio Inside-Out

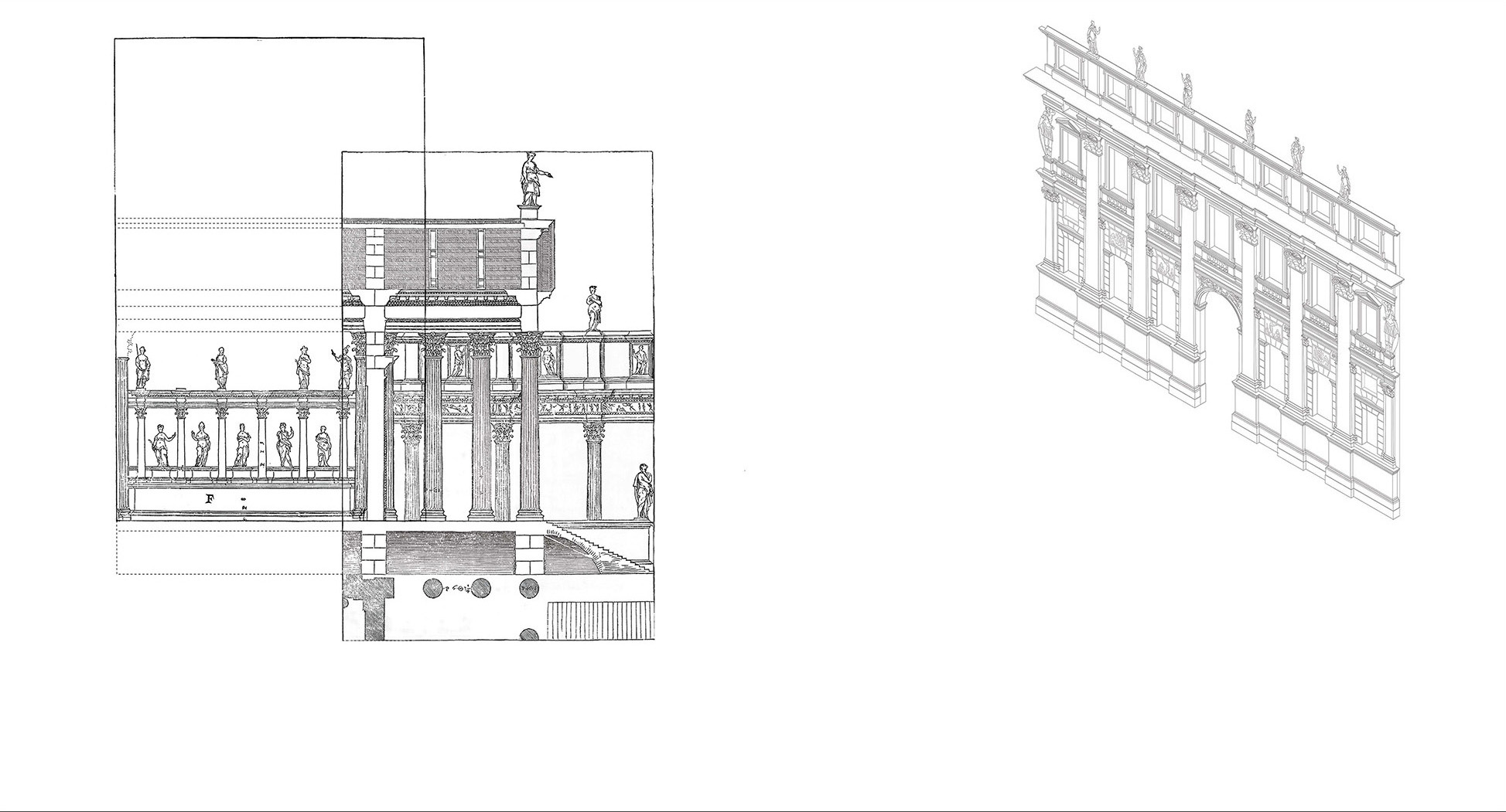
The reason why the multilayered and multireasoned Palazzo Valmarana was the shared locus of these investigations is because this building is the most problematic of all his villas and palaces, due to it being the most complexly mediated, indeed transmediated, of all his works. Wittkower’s characterization of the building in his Architectural Principles in the Age of Humanism—a critical work that influenced all postwar Palladian discussions—stated that “the system of Palazzo Valmarana is not coherent,” that “in no other building did he attempt an equally deliberate break with established classical conventions.”21 Four hundred years after the fact of I quattro libri and one year after Wittkower’s death, Decio Gioseffi, in “Il disegno come fase progettuale dell’attività palladiana,” seeking some sense of coherence in the design of this building through a reading of its mediated imprinting modes, noted that Palladio’s favored form of representation—orthogonal projection—enabled a dimensional ambiguity of visual equivalence and interchangeability between full columns, half columns, and pilasters, as they may be perceived to slide back and forth along the axis of projection.22 Gioseffi stated that he set up a side-by-side photo montage comparison (Ho fatto pone a riscontro in un fotomontagio) of Palladio’s preparatory I Quattro Libri drawings for Palazzo Porto’s courtyard and Palazzo Valmarana’s façade (Fig. 6a) in order to provide an example of what he called the “the modality of transfer [modalità del trapasso].”23 Gioseffi proposed that the array of detached two-story Composite columns from the inner courtyard of the earlier Palazzo Porto may be seen to emerge on the later Palazzo Valmarana not as full columns but as Composite pilasters—in the manner of the effect intrinsic to transparent or translucent layers of tracing paper, wherein an image on an inner layer emerges into the visual field of an outer layer. Gioseffi described this mode as “a process of progressive exploration within the orthogonal method, the ‘discovery’ of the basic indifference to the situation or position of the object (as well as of the projection plane) with respect to each sliding in the ‘forward-backward’ sense along the axis of projection,” which “finally proposes the theoretical interchangeability between ‘elevations’ and ‘sections.’ That also implies some consequences on the design level: and could eventually suggest a rather unconventional use of transfer using ‘tracing paper.’”24

If it seems anachronistic for Gioseffi to refer to mediated modes of transparent tracing, it should be noted that Palladio is already utilizing representations of “ghostly” traces in his initial drawings of Palazzo Porto in the mid-1540s, with traces of interior elements (the central tetrastyle atrium of Tuscan columns) appearing on the façade in one drawing (RIBA XVII/12, both on the recto and the verso) (Figs. 6b, c), as well as outside elements on another façade study (RIBA XVII/9), indicated as roundels drawn in faint outline above the ground-level windows.25 Such varying traces of transparency provide the transition from an inside impressed on an outside surface, as well as an outer layer impressed on an outside surface.

View full image +

Fig. 6. (a) Dario Gioseffi, Comparative representation of Andrea Palladio, Palazzo Porto section and Palazzo Valmarana elevation. Dario Gioseffi, “Il disegno come fase progettuale dell’attività palladiana,” Bollettino del Centro Internazionale di Studi di Architettura Andrea Palladio 14 (1972), n. 33.
(b, c) Andrea Palladio, Palazzo Porto, RIBA31790 XVII/12 recto and verso. Douglas Lewis, The Drawings of Andrea Palladio (Washington, DC: International Exhibitions Foundation, 1981), 113.

These early representational experiments become more fully manifest in Palladio’s illustrations in the 1556 and 1567 editions of Barbaro’s Vitruvius, in which particular columns of outer temple colonnades and palace porticos are depicted as transparent or translucent, allowing the façades beyond to become demonstratively visible. As Guido Beltramini has noted, within the context of “a radical change in architectural publishing at the time”—from earlier publications in which “perspective or pseudo-perspective representation is more or less predominant” to “the 1556 edition of Vitruvius and, with some slight yielding in the additional images, also of the new edition of 1567: almost all the ancient buildings and their details are represented by orthogonal projections with innovative techniques, such as transparent elements in the foreground making it possible to see through to the background elements.”26 Making it possible, in other words, to see that the architect has seen through and apprehended the building as a multilayering of related foregrounds and backgrounds, manifesting and signifying this epistemological reasoning in and through the medium of disegno. It was the epistemological play enabled by various forms of signifying media that Palladio engaged in or encountered in his time that manifested as equivocal modes of representation in his own signified artifacts—his drawings, books, and buildings—in ways that still may unsettle certain received histories today.

With regard to Gioseffi’s hypothesis about the relationship between Palazzo Porto and Palazzo Valmarana, this mode of transfer of background to foreground could be called (although Gioseffi does not do so) a technique of inside-out, the pressure of an inside emerging toward an outside—literally an inside colonnade emerging to the outside façade, figuratively from inside the personal and typological history of Palladio’s design dispositions and their repositioned evolution. Barbaro, in his commentary on the signifier and the signified, stated that the Artificer first “operates in his intellect and conceives in his mind.”27 and only subsequently signs the exterior material with this interior disposition (habito, or abito in the contemporary spelling, which may be rendered alternatively as “attire,” “habit,” or “inclination”).28 Gioseffi takes his cue regarding his transfer not from Barbaro’s description of the inside-out inclination in this distributive dis-position of the intellect but from the action of the eighteenth-century collector John Talman, who pasted together two separate preparatory I Quattro Libri drawings Palladio of the outside elevation and the inside section of Palazzo Porto—drawings first acquired around one hundred years earlier by Inigo Jones during the architect’s Grand Tour (Fig. 7a). The clue to this mode of comparative inside-out, for both Talman and Gioseffi, comes from Palladio himself, from the drawing, also acquired by Jones, of Palazzo Valmarana with this same split-screen layout of the elevation on the left side and the courtyard view on the right (Fig. 7b). It is this latter drawing upon which Jones had the audacity to sketch what would appear to be some of the figural attributes of the building on the verso side (Fig. 7c)—two statues (only the smaller of which has any semblance to the figures evident in the constructed building or its representations.29) and of a Corinthian capital (with three enlarged versions of acanthus detailing)—in a darker iron gall ink than Palladio’s, as if to leave his own imprint on (and off of) the back of Palladio. Which in fact bled right through the front in one area of the drawing and left traces of the rest of Jones’s sketching obscuring the visibility of Palladio’s drawing.

View full image +

Fig. 7. (a) Andrea Palladio, Palazzo Porto, Talman composite, RIBA31779 XVII/3. Douglas Lewis, The Drawings of Andrea Palladio , 117.
(b, c) Andrea Palladio, Palazzo Valmarana, RIBA31780 and 31781 XVII/4 recto and verso.

This trace “showing through” (to use the bibliographic term) of Jones’s gall—in both the figurative and the literal sense: his impudence and his ink—has no shared coordinates with Palladio’s drawing on the reverse side, unlike a number of other instances of “showing through” to be examined here. The possibility of creative innovation through the perception and actualization of coordinates that coincide between delineated surfaces has been available to architects since the translucence of the medium of parchment or paper was able to register the impressions of the designer as impressions on a surface—through the coincidental effect of being able to show through the impressions from one side to the other or from one sheet to another. When there are no shared coordinates between these impressions, then the resultant effect is coincidental in the nonsignificant use of the term—merely happenchance. But if the designer notes the co-incidence of shared co-ordination and makes use of them to create an assembly greater than the sum of their individual parts, then the significant sense of coincidence as only apparently happenchance—the sharing of incidence that reveals or results in a surprising relation—is enacted in the design. The impress, in other words, of seemingly different attributes or conditions imprinted each upon the other.

In fact, these courtyard columns of Palazzo Porto exist only as such in print and as print, given that the original palace had been designed in 1546 (twenty years earlier than Palazzo Valmarana) and its construction completed by 1554, with little likelihood of this version of the courtyard being built. This did not stop Palladio from projecting, literally and figuratively, this fabrication of a giant order in the courtyard in the (forever) future tense: “The courtyard … will have columns thirty-six and a half feet high, that is, as high as the ground floor and second story together.”30 Like architects in every century since, Palladio hoped that by getting the prospective project in print the client would be impressed—in the sense of feeling admiration and respect, as well as fixing the idea in their mind—to the extent that the client would be imprinted (in the behavioral sense of the word) to follow the architect into construction.

View full image +

Fig. 8. Andrea Palladio, Venezia: Palazzo Porto 1546-1552 and Palazzo Valmarana 1565-1580. Rudolf Wittkower, “Sviluppo stilistico dell’architecttura palladiana,” figs. 53, 54.

Thus, whether the courtyard section for Palazzo Porto was designed before or after the design for Palazzo Valmarana, this now reverse engineering by Palladio provides a series of clues and missing links to help us comprehend the transformation from his earlier Palazzo Porto (Fig. 8, left)—which followed a Roman mode of palazzo design with its clearly demarcated rusticated base and ennobled second level—to the evolution decades later with the self-reflective play of these demarcations in Palazzo Valmarana (Fig. 8, right).

This latter palazzo is even more “ennobled,” with its giant order reaching from the piano rustico up into the piano nobile, but also thus more localized, as unlike in Rome the nobles of Vicenza occupied both the ground level as well as the second level. But unlike the other late palazzo designs of Palladio that feature giant orders (the initial scheme for Palazzo Barbarano, the unbuilt Palazzo Angaran, the fragment of Palazzo Porto Breganze)—each resolved in a repetitive symmetrical manner—Palazzo Valmarana is co-incidental in a syncopated manner: the major-order Composite pilasters are impressed upon the medium-order Corinthian pilasters that extend laterally past the major order, presenting a structural switch that shockingly gives the appearance of leaving the ends of the building only precariously supported (Fig. 9). Shocking certainly, as Ackerman noted, to Francesco Milizia, who two centuries later, in 1781, wrote, “Everyone can see that this combination of colossal and small pilasters that spring from the same level, and the intersection of the cornice by the colossal pilasters, are not in a pure taste. The worst is that at the corners there are only Corinthian pilasters up to the first story, and on the second only a soldier with his back to the wall.”31 Milizia is channeling here Tommaso Temanza’s criticism of this corner from the two decades earlier Vita di Andrea Palladio (1762):

Here Palladio believed it sufficient to substitute a Corinthian pilaster of the minor order, on the cornice of which he placed a statue of a Soldier, with his back to the wall, which fills the void up to the architrave of the Composite order… . Nevertheless, our Andrea is not exempt from censure, due to the excessive weakness that the work shows on the corners; in which architects have always endeavored to show greater solidity than in any other part of the building.32

View full image +

Fig. 9. Andrea Palladio, Palazzo Valmarana: “The excessive weakness that the work shows on the corners.” Photograph by the author.

“A Soldier, with his back to the wall”—what Milizia and Temanza are signifying here is that this statue does not appear to be remotely as intent in his capacity to work as a load bearer as, say, the caryatids with capitals that Palladio illustrated in Book I of Barbaro’s Vitruvius or the similarly structural atlantes with bent heads illustrated in Book IX. Temanza’s censure is cited by Wittkower—“the disquieting effect of this arrangement was observed and put on record in the 18th century when Temanza lamented that the comers had been weakened though these were just the points which should show the greatest strength”—as a way to underwrite his own anxiety. Which Wittkower then tried to mitigate by stating—and here can be cited his extended statement without yet adjudicating its veracity: “But this was precisely what Palladio intended to do. In no other building did he attempt an equally deliberate break with established classical conventions.” And yet again, these defensive statements are followed immediately in the next sentence by a restatement of his unease regarding the deliberation of Palladio’s breaks with established conventions: “Language and patience have their limits when describing a Mannerist structure, and many other features of this building may be left unrecorded.”33

Ironically, Wittkower used more language and patience in his direct description of this building than he did of any other villa or palace of Palladio. And some features Wittkower did record, although mentioned by neither Temanza nor Milizia, are further examples of its “extremely complicated interplay of wall and order”:

For the small Corinthian order is not applied to a proper wall. The ground to which it is attached, is rusticated, but the rustication has been given a particular meaning. The strips at the sides of the windows have been treated to look like Tuscan pilasters with their own capitals, and this results in the impression of a third order. Above the windows are reliefs, and as they are in a deeper plane than the rustication, the latter appears like a frame to them, the lower border being at the same time the lintel of the windows.34

What is particularly notable here is the way in which this building instigates Wittkower’s own complicated interplay of precise description and dubitable equivocation. The multilayered trompe l’oeil effects of the building produce apparitional appearances, manifest dynamically rather than statically through shifting processes of signifying—tectonic figurations that have been “given a particular meaning” other than expected, which have been “treated to look like” something they are not, which “results in the impression” of something other than what they would seem conventionally to be, which “appears like a frame” while “being at the same time” a lintel.

View full image +

Fig. 10. Andrea Palladio, Palazzo Valmarana “rustication.” Photograph by Marianna Mancini.

In terms of dimensional and semiological impressions, it should be observed that this background is imprinted with Palazzo Porto–style rustication inscribed in relief. Since Bramante’s invention for Palazzo Caprini of faux rustication (bricks covered in stucco), this simulacrum of a signifier had become widespread during the Cinquecento.35 But at Palazzo Valmarana this simulation is evident only as just the barest of impressions (Fig. 10), just lines incised into the elevational surface. These incisions might seem figuratively like the lines incised into the woodcut block Palladio utilized to print its representation in I Quattro Libri, but that would only be the case literally and figurally had he incised those corresponding lines directly into a metal engraving plate, rather than inversely into a wood block. What is the case is that these lines in the building do not even attempt to give the appearance of structural blocks extending into the third dimension, as is the case at Palazzo Porto. What is especially disquieting is that in their exposed depth, the ground-level window apertures—which at Palazzo Porto are delineated through the continuation of the joint lines from the front façade—remain blank at Palazzo Valmarana. Indeed, in the latter, all the elevational “blocks” stop short of the edge of these openings, making even more evident their atectonic and astructural depiction as surface. Also stopping short as well, in the building’s current manifestation, is the “book-ended” rustication on the implied pedestals (visible, for example, in Fig. 8, right, and Fig. 20)—present in the eighteenth-century elevation published by Ottavio Bertotti Scamozzi in his Le fabbriche e i desegni di Andrea Palladio (vol. 1, 1776), although not in any of Palladio’s elevations. Even though made to appear to wrap around their corner conditions, nonetheless these rougher-textured “blocks” do not reach across the pedestal’s empty center, resulting at the inset corners in a disconcerting half-version, barely “supportive” of the smaller order as not even the width of the full Corinthian shaft—all the more thus manifest as a graphic representational trace of structure.

The significance of these seemingly unreasonable structural abuses—to use Palladio’s own term (abusi)—is the most compelling and telling aspect of the imprinting of Palazzo Valmarana, in that they have compelled critics throughout the centuries to puzzle over them and what they might signify as the surprising or unsettling demonstrations of Palladio’s “reasonings.” In other words, they remain of interest for what they might reveal about his work and workings—“the quality and the form that was in his mind”—given that Palladio has often been portrayed through the centuries as perhaps the most reasonable of all architects. In chapter XX in the first book of I Quattro Libri, in the section entitled “On Abuses,” Palladio railed—uncharacteristically, given his entirely measured and reasonable tone throughout—against the fabrication of any building element that diminishes its primary purpose, which according to him is “to appear to produce the effect [paiono far l’effeto] for which they were put there, which is to make the structure … look secure and stable.”36 Palladio’s own equivocal choice of wording—“to appear to produce the effect” and “to make the structure look secure and stable”—is telling in the same way as Wittkower’s, as in the Cinquecento the demonstration of the signs of structural re-presentation appears more important than demonstrating the actual reality of structure. Yet the imprinted layers in Palazzo Valmarana belie the look of security and stability in the aforementioned abuses and in two further significant seeming mis-formations. Located in the same bay as the end statue, directly above the pedimented window, is an opening that cuts through the frieze and architrave of the top entablature, weakening it just where it should be particularly reinforced as it approaches its end point (Fig. 11a). The general principle regarding weakened corners had been stated by Daniele Barbaro in his Vitruvius: “And if I can put them [the windows] at a distance from the corners, will it not be better than putting them at the corners and weakening the house?”37 And Palladio echoed this principle later in his I Quattro Libri: “But the windows and the openings must be kept as far from the corners as possible … because that part of the building which must keep all the rest aligned and held together must not be open and weak.”38 At Palazzo Valmarana, this puncture in a primary horizontal structure might easily have been assumed to be an unconscionable alteration to the building in a later century by an insensitive subsequent owner with no respect for the well-known architect’s signifying intent, were it not illustrated exactly in this manner both in the elevation in I Quattro Libri and in the drawing that Jones sketched upon. Notwithstanding the implied structural break in this implied structure, this opening and the end bay windows in the ground and second levels might still be said to just pass Palladio’s proposed rule (as a way of maintaining the security and stability of a building) that “at least a space should be left between the opening and the corner that is as wide as that opening.”39 This would be so were it not the case that in the uppermost attic level the space between the corner and the end window is much less than its width by quite a considerable degree, less than three-quarters, as is similarly illustrated in both the printed elevation and the drawing.

View full image +

Fig. 11. (a) Andrea Palladio, Palazzo Valmarana, corner entablature window. Photograph by the author.

Another especially considerable structural abuse is the “weakening” of the mid-entablature by the giant order (Fig. 11b). The latter is not just positioned in front of or even flattened against the former—which even so would have revealed and made manifest the fiction of its structural appearance—but rather is cutting right into and through it to the degree that the two topmost moldings of this entablature’s cornice (the outward curving gola diritta capped by the flat ordo) actually stick out past the pilaster. An apparent structural co-incidence producing the visual effect of making what should appear as a continuous whole horizontal structure (even one set back, held up by the second order) look unsecure and unstable is as shocking an abuse, it would seem, as terminating the building’s edge with a statue. And while Wittkower proclaimed, as cited, that in no other building did Palladio “attempt an equally deliberate break with established conventions,”40 it should be noted that in the Cinquecento the incentive for a willful and creative breaking of established conventions as a means to develop new figurations in the articulation of knowledge was articulated in The Book of the Courtier in the assertive statement Baldesar Castiglione gave Count Ludovico da Canossa to voice: “Do you not know that figures of speech, which give so much grace and luster to discourse, are all abuses [abusioni] of grammatical rules[?]”41

View full image +

Fig. 11. (b) Andrea Palladio, Palazzo Valmarana, cut entablature. Photograph by the author.

Gioseffi, for his part, noted only the matter of the giant order and its absence at the building’s extremes, without noting, however, how this absence amounts to an extreme abuse of classical grammar, at least to Temanza, Milizia, and Wittkower. Quite to the contrary, as evidenced in the published lecture notes from his course on Palladio (1972–1973) at the Università degli Studi di Trieste, delivered during the time of the article in question, Gioseffi posited that Palazzo Valmarana is “in reality neither inconsistent nor disorganized; but it duly derives from the ‘orthogonal codification’ of a very real system developed in depth… . the alleged elements of ‘rupture’ are all implicit in the mechanism … of the transposition.”42 An argument he makes precisely in order to explain away any disquieting implications of the design attentions or intentions of Palladio that so unsettled Wittkower.

While Gioseffi’s insightful apprehension of the shared visual attributes between these seemingly disparately composed buildings, and consequently his technique of representing them at the same scaled format as Palladio prepared them for print, made their relations particularly evident, questions remain regarding how duly is the derivation from one to the other, in the transmedial transaction of its transposition. By “apprehension,” I am referring, in part, to the epistemological ability to perceive and comprehend the figurations of an aesthetic object. But equally, it is evident that the ambiguities enacted in the development and manifestation of these late objects of Palladio have caused that other sense of apprehension, precisely for epistemological reasons: an unease due to certain insecurities and instabilities regarding the ability to perceive and comprehend the figurations of these objects in the “pure taste” of received convention by critics such as Milizia, Wittkower, and indeed Gioseffi. In order to evade any claim of “rupture,” Gioseffi’s phrase “duly derived” (puntualmente deriva) asserts that this graphic transposition may be apprehended as wholly consistent and organized in the moment of its derivation, invariably and precisely complete without any compositional, semiological, or (particularly worrisome for Gioseffi) ideological remainder. This evasion elicits a third meaning of apprehension: to attempt to arrest, through the critic’s authority, any alleged worrisome artistic activity, the historiographic context of which I will return to in the concluding section.

Nonetheless, Gioseffi’s preliminary comparison of Palazzo Porto and Palazzo Valmarana can initiate the means to further account for the mediated development of these structural mis-formations in particular and the evolution from Palladio’s earlier to later work in general, providing some of the evidence necessary to proceed to track further the later complex transformations of Palladio’s work by utilizing some newer forms of digital media. It is important first to note what Gioseffi, in his side-by-side visualization, did not do, which is what is implied in what he said Palladio did do, that is, to slide forward Palazzo Porto’s courtyard façade along its own axis of projection (Figs. 12a, b), which would mean sliding it into and onto its own front façade, “plaiting” (his verb) them together (Figs. 12c, d)—which I have animated in Figure 12e. In addition to the giant Composite columns, a number of other elements in the Porto courtyard section not mentioned by Gioseffi are present in both buildings, namely the secondary-order Corinthian pilaster that Palladio says would “support the floor of the loggia above,”43 the second-story unpedimented windows with “ears” toward their bases, and the two cut-out apertures at the mezzanine levels of both stories. One does not have to “construct” ex nihilo the graphic scene of this co-incidence, this inside-out emergence from behind the façade four centuries after the fact of its imprinted manifestation, as it is already evident and manifest in each and every original and facsimile edition of I Quattro Libri (even if unnoted by Gioseffi), wherein Book II one can see the multilayered trace showing through Palazzo Porto’s section as the verso (page 10) of its recto façade (page 9) due to the translucent material-quality of paper used in book print production in any and every century.

View full image +

Fig. 12. (a) Andrea Palladio, Palazzo Porto to Palazzo Valmarana, shifting along “the axis of projection.” Digital visualization by the author.

View full image +

Fig. 12. (b) Andrea Palladio, Palazzo Porto to Palazzo Valmarana, shifting along “the axis of projection.” Digital visualization by the author.

View full image +

Fig. 12. (c) Andrea Palladio, Palazzo Porto to Palazzo Valmarana, shifting along “the axis of projection.” Digital visualization by the author.

View full image +

Fig. 12. (d) Andrea Palladio, Palazzo Porto to Palazzo Valmarana, shifting along “the axis of projection.” Digital visualization by the author.

Fig. 12 (e) Andrea Palladio, Palazzo Porto to Palazzo Valmarana, shifting along “the axis of projection.” Animation by the author.

Had Gioseffi actually brought Palazzo Porto’s inside to its outside, he could have recognized that other disquieting attributes of Palazzo Valmarana that he did note in passing could similarly be accounted for through the very modality of transfer he had just proposed four paragraphs prior. Such as the already mentioned slicing through of the mid-entablature that he called, with deliberate hyperbole, the order’s “cry of pain” (Fig. 13a). There is also the capitals’ “protest” in relation to “the ‘contestation’ of the upper doors” (Fig. 13b)—a figuration described by Wittkower wherein “the window frames in the piano nobile touch the entablature above, and are hemmed in at the sides by the enormous capitals,” with the result that an “unequal, typically Mannerist, competition arises between the slender moldings of the window frames and the bulky mass of the pilasters.”44 Not noted by Gioseffi but visible in this conjoined façade are other disquieting effects (Fig. 13c), such as the aforementioned imprinting between the pilasters of a trace of Palazzo Porto rustication in relief.

View full image +

Fig. 13. (a) Andrea Palladio, Palazzo Porto Courtyard Elevation and Façade Elevation Overlaid, the capitals’ “protest” in relation to “the ‘contestation’ of the upper doors.” Digital highlighting by the author.
(b) Andrea Palladio, Palazzo Porto Courtyard Elevation and Façade Elevation Overlaid, the Orders’ “cry of pain.” Digital highlighting by the author.
(c) Andrea Palladio, Palazzo Porto Courtyard Elevation and Façade Elevation Overlaid, “rustication.” Digital highlighting by the author.

What Gioseffi did observe is the difference in the base datums of the two giant orders, and thus he understandably lifted up the columns that rest on the ground in the Palazzo Porto courtyard to match their elevated position on pedestals in the Palazzo Valmarana façade. But rather than reposition and rescale just the columns, he rescaled the entire Palazzo Porto plate, throwing off the co-incidence of the other comparable coordinates. In order to comprehend this comparable process of transformation from the earlier to the later palazzo as a series of coordinated design actions, it is most productive to proceed sequentially and consequentially in order to verify the hypothesis of the relation between these two palazzos in their positioning and repositioning. In other words, if we take Gioseffi’s suggestion of their mediated relation but proceed beyond his initial two steps (bringing the columns forward and then elevating them), by following through to further correspondences we can track a number of simple transformative steps that it would take to complete the substantive transformation that these modes of transfer made possible through these imprinted means (Figs. 14a–g). Using the I Quattro Libri woodcuts for more precise comparability, the following is one of several possible sequential and consequential serial transformations that may assist us in comprehending the designed relations between the two palazzos as initiated by Gioseffi, with no claim as to whether this sequence was the definitive order of steps Palladio undertook:

View full image +

Fig. 14. (a) Transformational sequence of Palazzo Porto to Palazzo Valmarana (extrapolating Dario Gioseffi’s hypothesis): Overlaid elements. Digital visualization by the author.

(1) Following Gioseffi, the giant courtyard order is brought out to the façade but in addition, and by association, so too is its continuous top entablature and visually discontinuous mid-entablature, all of which are flattened into the surface of the façade (Fig. 14a). The result is that, as mentioned, the pilasters appear to cut what should properly be a continuous mid-entablature. And, as mentioned, the other elements emanating from the Porto courtyard relevant to Palazzo Valmarana are brought forward as well: the smaller Corinthian order, the mezzanine openings from the first and second levels, and the large unpedimented windows from the second level that replace Porto’s front façade pedimented windows. This latter repositioning results in the condition at Palazzo Valmarana observed by Wittkower regarding the “hemming in” of the window frames at the top and sides. The exception is the end window, which remains pedimented but consequently is compressed and scaled down to fit under the entablature.

View full image +

Fig. 14. (b) Transformational sequence of Palazzo Porto to Palazzo Valmarana: Figural elements repositioned. Digital visualization by the author.

(2) Before proceeding to elevate the giant order, one should note two consequences of this action with respect to the second-level entablature being brought forth from the Palazzo Porto courtyard, both of which are repositions of figural elements (Fig. 14b). First, the mid-entablature of the courtyard, when brought forward, crowds and consequently compresses the end pedimented window in the piano nobile, and the reclining figure that had been positioned above that window in Palazzo Porto’s façade is consequently repositioned transversely to Palazzo Valmarana’s central portal. Second, the lack of the giant Composite column in the end bay could have left that bay supported in the piano nobile by Palazzo Porto’s Ionic single-story column, but the transition to Palazzo Valmarana may be obtained by the former’s end roof statue being repositioned vertically downward to become the end sculptural support, rescaled so that its pedestal matches the height of the pedestals of the adjacent window framing.

View full image +

Fig. 14. (c) Transformational sequence of Palazzo Porto to Palazzo Valmarana: Giant order repositioned. Digital visualization by the author.

(3) The giant Composite order can now be elevated along with the secondary Corinthian loggia support from the courtyard (Fig. 14c).

View full image +

Fig. 14. (d) Transformational sequence of Palazzo Porto to Palazzo Valmarana: Secondary order redistributed. Digital visualization by the author.

(4) This secondary order is redistributed laterally to the ground-level apertures as flanking pairs and as one full pilaster to complete the missing corner position, which provides the appearance of supporting the end statue (Fig. 14d).

View full image +

Fig. 14. (e) Transformational sequence of Palazzo Porto to Palazzo Valmarana: Rustication redefined. Digital visualization by the author.

(5) Also at the ground level, Palazzo Porto’s courtyard mezzanine windows (which are rectangular along their sides and bottom edge) are redistributed along Palazzo Valmarana’s ground level as a single window at the end bay and figural panels in the other bays (Fig. 14e). Another aperture shift occurs at the upper level, as Palazzo Porto’s courtyard single upper mezzanine aperture—which in its very representation in I Quattro Libri indeed cuts through the frieze and architrave of the entablature with which it coincides—is repositioned laterally to Palazzo Valmarana’s end bay. The result is that other disturbing structural “abuse”—the weakening of the façade entablature in the very place Barbaro and Palladio said to avoid (Fig. 14f).

View full image +

Fig. 14. (f) Transformational sequence of Palazzo Porto to Palazzo Valmarana: Mezzanine window penetrating entablature repositioned. Digital visualization by the author.

(6) This completes the comparative sequence (Fig. 14g), which is animated in Figure 14h.

View full image +

Fig. 14. (g) Transformational sequence of Palazzo Porto to Palazzo Valmarana: Completed sequence. Digital visualization by the author.

Fig. 14. (h) Transformational sequence of Palazzo Porto to Palazzo Valmarana. Animation by the author.

Regarding the ground-level windows of the palazzo, we can also return to the previously mentioned earliest incidence in Palladio’s drawings of an inside-out transparency, the verso of the alternative façade study for Palazzo Porto (RIBA XVII/12). It depicts the delineated imprint of the four freestanding Tuscan columns of its entrance tetrastyle atrium emerging from inside-out into the surface of this earlier façade, establishing a co-incidence with its outer “rusticated” blocks and voussoir. The double impression of the column and the first ground-level window to the right of the arched entrance coincides in a nearly exact match to the framing, position, proportions, and primary figurations of Palazzo Valmarana’s middle ground-level apertures (Fig. 15): the Tuscan capitals, the stacking of six cut-off rusticated blocks flanking the window, and the delineation of Palazzo Porto’s inner atrium entablature slicing horizontally through this earlier version’s five voussoirs coinciding with Palazzo Valmarana’s flattened arch, five-voussoir, pittabande-like figuration. All that would be required to complete the basic configuration is the slight lateral shift of the capitals atop the vertical stacking and the subsequent edge-squaring of the outer two “stones.”

View full image +

Fig. 15. Andrea Palladio, Palazzo Porto and Palazzo Valmarana window overlap. Digital visualization by the author.

It should be noted that the elaboration of this transformative process initiated by Gioseffi involved not only the single whole tectonic element he brought from the inside of one palazzo to the outside of another but also elements whose impress only emerged as identities in the graphic act of being cut through in section, such as Palazzo Porto’s courtyard loggia beam end that emerges as the projective portion of Palazzo Valmarana’s lower entablature as a “support” for the end soldier. Howard Burns, in an early version of his essay “I designi,” published a year after Gioseffi’s text, noted this formative sectional phenomenon in the “massive and a bit strange detail” of the “big blocks that protrude from the frieze of the courtyard of Palazzo Valmarana” (Fig. 16), which “can have its origins in those Palladian sections where the large beams of a salon are cut, giving the impression of something protruding from [sporge dal] the frieze.”45

View full image +

Fig. 16. Andrea Palladio, Palazzo Valmarana, courtyard, protruding frieze “beams.” Photograph by the author.

What really may be stated as truly more than a bit strange is the “unreal” applied and implied fictive impression in low relief of beam ends in the more conventional form of triglyphs in classical architecture, which is why Burns may be unsettled enough here to note this protruding beam detail. Two related attributes may be proposed that contribute to Burns’ sense of strangeness here, both of which are conveyed in his use of the phrase “protrude from”: First, while it may be stated that portions of the frieze above the columns stick out, jut out, thrust forward, it is also the case that relational portions of the cornice do as well. This figuration might normally be understood as a conventional projective entablature had the associated architrave and column projected forward as well, rather than remaining flush with the backgrounded area of the frieze. Second, thus while this separation provides the strange sense of a thrusting forward from the frieze, the incompletion of this usually co-ordinated convention results in a disjunctive displacement between the upper and lower positioning of this standard tectonic figuration.

Thus, Gioseffi’s initial inside-out dis-placements and re-positionings provides a perspective to perceive these further displacements, replacements, and repositionings. Sliding not just backward and forward, as he suggested, but also laterally and transversely along the surface of the façade, actively instigating such operations through these representational techniques of media. Representations not just leading to, but manifesting as constructed reality. Not things represented as they “should be” constructed in reality, “complete and robust” as Palladio states toward the end of his “On Abuses,”46 but rather things constructed as they are represented—like the trompe l’oeil frescoes that suffuse the interiors of so many of Palladio’s buildings, which I will discuss in the concluding section. What is revealed in this equivocal ambiguity of things that are constructed “to appear to produce the effect … to make the structure … look secure and stable” are certain epistemological insecurities and instabilities inherent in the mediated production of appearances, impressed as they are through the Artificer’s signifying act, in the transition Barbaro proposed from inside the mind to outside sign.

Palladio Outside-In

While Gioseffi described for the conception of Palazzo Valmarana a mode of inside-out, literally and figuratively, Howard Burns in “I designi”—published first, as mentioned, the following year in the 1973 exhibition catalog Mostra del Palladio and expanded later that year in the Bollettino del CISA—proposed a mode that could be called (although he also does not) outside-in.47 This may be considered literally as an outside portico or colonnade pressed onto the façade in the form of pilasters or attached columns, and figuratively as outside of Palladio’s own designs through his research into the works of antiquity:

And I would propose that solutions like those of the façade of San Giorgio and of Palazzo Valmarana have been suggested to the author by his own drawings from antiquity or from his own inventions. But these must now be interpreted not as representations (which in fact they are) of a deep spatial composition with columns in the round, but as a kind of low relief in which the columns become pilasters, or are “crushed” against the wall, as in the facades of the churches.48

The imprinting that Palladio’s own internal design dispositions and repositioned development received through his study of antiquity has been well documented, as has the way his hypothetical and imaginative reconstruction of those constructions became a way for him to put his own imprint on architecture. But Burns, in two subsequent single-paragraph catalog entries for the 1975 exhibition Andrea Palladio 1508–1580: The Portico and the Farmyard—“Elevation of the façade of the Temple at Assisi” and “A plan of the Forum of Nerva and an elevation of the Temple of Minerva”—extended in two significant ways his argument that Palladio’s orthographic reconstruction studies of antiquity “employed the drawing as a two-dimensional scheme, which could be translated back into three dimensions in a whole variety of ways.”49 The first observation, that “Palladio used his drawings of ancient buildings as models, rather than the buildings as they actually stood,” has been noted by Beltramini, who summarizes this insight as follows: “When he comes to use this antique motif for his own projects—the pilasters of the Palazzo Valmarana or the half-columns of the Palazzo de Porto in Piazza Castello—the source is not so much the real Temple of Minerva as his drawing on this sheet.”50 Not the building, but Palladio’s impression—figuratively and quite literally and figurally—of the building, re-figuring these antique edifices into and onto the surfaces of paper and project, the surfaces of books and of buildings.

Burns’s second insight involved a similarly radical misreading of the drawing, wherein what Palladio clearly shows as the considerable depth and height difference of the portico of the temple relative to the surrounding enclosure of the temple complex, the columns of which, as Palladio stated, “lack pedestals but rise from the ground,” are flattened in elevation into a composite surface.51 This dimensional difference is re-presented by Palladio in the spatial contraction that is the graphic technique of every elevational drawing—which in turn, as proposed by Burns, is “how Palladio could justify and arrive at as unclassical a scheme for a church façade as that of S. Giorgio Maggiore … with half columns, and its side portions articulated with columns which rested on the ground.”52 In Book IV of I Quattro Libro, Palladio represents spatially contracted combinations of raised central columns and lower side columns in the form of elevational and sectional reconstructions not only for the Temple of Nerva Trajan but also for the Temple of Antoninus and Faustina, in both cases with examples of the smaller columns presented as interspersed with the larger ones. Similar combinatorial layering of differently scaled orders was re-produced not only on the surface of San Giorgio Maggiore but also on Palladio’s earlier San Francesco della Vigna and his later Il Redentore. In Palazzo Valmarana, the rare pedestaled full columns in Assisi—of which Palladio says: “in every other ancient temple one sees columns of the porticos resting on the ground and I have not seen any other which had pedestals”—reappear in I Quattro Libro, as Burns noted, transformed as pedestaled giant-order pilasters.53 This seeking to adopt and be adopted into a desired ancestry, to be imprinted by established conventions as well as by the connoisseurial obscure, unconventional, and thus exceptional examples of antiquity, were re-produced by Palladio in his late work as new adaptations, mutations, and recursive recombinations. Burns, more recently, has stated that this representational mis-reading was one of Palladio’s most potent design strategies: “Orthogonal drawing for Palladio is an instrument of transformation, a means of generating several designs for a single ancient elevation or from one of his own designs… . he willfully and creatively reads his own elevation drawings in different ways, transforming an ancient temple front into a palace elevation with pilasters, or an open elevation with free standing columns, like the Palazzo Chiericati, into a closed façade with half-columns, like Palazzo Barbarano.”54 Thus, the instrumental techniques of orthogonal drawing no longer remain merely illustrative of a design but through their dimensionally ambiguous engagement become generative, in a transmedial manner, through which Palladio developed recursively self-referential transformations of prior works—his own and those of antiquity.

For Burns, Palladio’s drawings, “if they are observed in an ‘active’ way, suggest various spatial possibilities.:”55

the wonderful creations of Palladio of the last fifteen years (and not only of those) often have their effectiveness in a daring and very original (and at the same time practical and economic) tradition of schemes with round columns into schemes that adopt pilasters and half-columns. Thus the facade of a temple, thanks to the mediation of a drawing, can become the facade of S. Giorgio Maggiore. And the design for the courtyard of Palazzo Da Porto Festa can become—as Gioseffi brilliantly and graphically demonstrates—the façade of Palazzo Valmarana.56

As Burns proposed, it is not necessary to adjudicate whether the positioning of the giant order at Palazzo Valmarana should be perceived as a foreground layer of columns repositioned outside-in toward a background layer, as he posited, or a background layer of columns repositioned inside-out to a foreground, as Gioseffi posited. And further, it should be noted that in addition to Palladio’s drawing and printing, the spatial possibilities enacted in an active way through the conjoining and interlocking of foregrounds and backgrounds is at work in a number of other media in relation to which Palladio was directly engaged, as will be discussed in the concluding section. For now, with regard to the media of drawing and printing, the hypotheses of Gioseffi and Burns should be understood as co-operative, co-citational, and co-incidental in terms of their design modes of apprehension and development.

Regarding the several senses of apprehension previously cited, before describing why a simple, albeit willful and creative, back-and-forth along an axis of orthogonal projection, whether inside-out or outside-in, is a necessary but not totally sufficient explanatory principle to account for the complexity of Palazzo Valmarana—through the range of creative misreading Palladio employed through orthogonal projection as he prepared for print—it is important to address first why there was this shift to orthogonal projection in the Cinquecento. Particularly given the received sense of the Renaissance pictorial development as being focused on perspective as a key representational mode. When an acclaimed expert at perspective like Raphael writes in 1520 to urge Pope Leo X to commission a survey of works of Roman antiquity, insisting that “since the way of drawing specific to the architect is different from that for the painter, I shall say what I think opportune so that all the measurements can be understood and all the members of the buildings can be determined without error,” it is because, as he says, “an architect cannot get correct measurements from a foreshortened line.”57 The Renaissance desire to imitate the ancients, to maintain the imprint of antiquity—its “characteristic marks and indications,” to cite another of the definitions of “imprint”—is for Raphael a desire to maintain the ancestral imprinting of Roman antiquity against the invasive medieval contamination of the “Goths and other barbarians,” as he and his coauthor Castiglione state in the letter. This is a form of imprinting in the behavioral sense of establishing patterns of recognition and association to be able to follow one’s own kind. In order for this linkage to be “established firmly” (another definition of “imprint”), you need a truthful and accurate documentary representation of its characteristic marks and indications, which orthogonal projection was seen to provide. And for Raphael this desire was not only for a distant ancestral linkage but also for a more immediate filial imprinting in order to establish his relation with the most important architect of recent time, evidenced, as he writes, in those “modern buildings … very clever and very closely based on the style of the ancients, as can be seen in the many beautiful works by Bramante.”58 Fifty years later Palladio will seek the same filial association by producing orthographic illustrations of Bramante’s Tempietto as the only modern building (other than his own) included in I Quattro Libri. What is particularly astonishing in Raphael’s letter to the pope is that the “truth” of visual experience that perspective was able to achieve at this point in history becomes considered, by one of its most adept practitioners, as a form of inaccurate “falsehood.”

And yet, the dimensional flattening of orthogonal drawing that aimed to demonstrate things as they are lacked the ability to demonstrate things as they are perceived (and thus conceived) spatially and temporally, and thus it is not surprising that innovative forms of representation were utilized in Barbaro’s 1556 edition of Vitruvius, which attempted to enact the simultaneous layering of spaces and surfaces (outside-to-outside, outside-to-inside, and inside-to-inside) through various modes of visualization: the transparencies already mentioned, elevations and sections side by side as split-screen comparisons, cut-away three-dimensional views, even several illustrations that were reproduced as separate, smaller layers of paper that could be rotated or lifted up off of their pages, as in the exterior view of a bastion at the end of chapter VI of Book I that is layered in the form of a flap over its interior view (Fig. 17).

View full image +

Fig. 17. Daniele Barbaro, I dieci libri dell’Architettura di M. Vitruvio tradutti e commentati da monsignor Barbaro eletto patriarca d’Aquileggia, (Venice, 1556). Avery Architecture & Fine Arts Library, Columbia University. Photographs by the author.

On the verso of that particularly dynamic page, in a passage that Barbaro acknowledges “has wandered far” from his specific commentary on Vitruvius’s text, Palladio and his contribution are referenced for the first time in the book (the bracketed text below indicates 1567 additions to the original 1556 text):

More than once I have desired [and sought] to communicate my efforts to others so that [before they came to light] we could together investigate the truth, but this, for some reason that I don’t quite understand, has not happened. In the drawings of the important figures I have used the works of Mr. Andrea Palladio, architect of Vicenza, who has to his incredible advantage, from what I have seen with my own eyes and that which I have heard in the judgement of excellent men, acquired a great name owing to both the most subtle and graceful drawings of plans, elevations, and sections, as in what will follow, and in the execution and making of many superb edifices in both his own region and in others, [both public and private,] that contend with the ancients, illuminate the moderns, and will fill those who come after with marvel.59

Missing in this recent translation of Barbaro’s slightly revised 1567 text is a significant sentence (present in both the 1556 and 1567 editions) that comes directly after the phrase “investigate the truth.,” which would not only help explicate Barbaro’s puzzled and somewhat puzzling lament that follows but which would also underscore the significance of Barbaro’s seeking out Palladio in his desire to have the architect’s mode of communication incorporated in this printed endeavor. That sentence—“accioche quello, che non puo fare uno solo, fatto fusse da molti” (So that, what cannot be done by one would be done by many)—expressed not only Barbaro’s desire for many colleagues to share in the initiative and labor of this enterprise but also his desire for a shift in the collective consciousness of history and homeland.60

In the latter regard, the imprinted mass marketing recently available in this time and in this region fostered the publication of multiple revised versions of Barbaro’s Vitruvius in 1567—under the imprint of the Venetian publisher Francesco de’ Franceschi Senese & Giovanni Chrieger Alemano Compagni—as it seems what cannot be done by one version of this book marketed to one class of reader would be done by many versions marketed, as noted by Robert Tavernor, to many classes of readers:

two in Italian—a large folio edition of 1556 (at 42.5 x 29 cm it was the largest publication of its time) and a more practical quarto edition of 1567, which has a revised text and smaller illustrations—and one in Latin, a folio edition of 1567 which was originally intended as a companion edition to the 1556 Italian folio. They were aimed at different readerships: the smaller Italian edition of 1567 was less expensive than the earlier folio edition and targeted practising and would-be architects, while the Latin edition was published for a more scholarly and international readership of potential patrons of buildings.61

In the smaller, less expensive version, Barbaro’s lofty address to Cardinal Ippolito II d’Este, to whom the work is dedicated, is followed immediately by an even lengthier marketing pitch “To the Readers” by the publisher, Francesco de’ Franceschi Senese. The latter announced that, through this more accessibly convenient commodity, he “wished, good readers, for the common good, to bring to light both versions of Vitruvius [“the Latin” and “the vulgar”], and to use all diligence to produce them in a form that is convenient [forma commoda] … accommodated to this new form so that everyone can enjoy the fruit of the erudite efforts of my aforenamed lordship.”62

For his own personal enjoyment, the erudite efforts of this aforementioned lordship included the production of his villa by Palladio, occurring around the same time as the production of his Vitruvius with Palladio. Villa Barbaro was one of the first of a series of villas to reproduce in its façade the giant order that the architect had imagined for his drawing Reconstruction of the façade of the Roman House printed in the book. In terms of projective perceptions, Palladio’s imaginary reconstruction of the Roman House was based on the self-image of his own intended designs rather than on any description by Vitruvius. A decade later, bringing this outer portico into town and onto the surface of the Palazzo Valmarana (not as in Villa Barbaro, in attached-columnar form, but flattened further into pilasters), Palladio for the first time was able to deploy a giant order on a private palazzo, so that “those most distinguished gentlemen, the Counts Valmarana,” could make a grand impression for, in the words of Palladio, “their own glory and the convenience and ornament of their homeland”—considering as Giovanni Alvise Valmarana had managed Palladio’s first public project, and was a crucial supporter of Palladio in the competition for the Basilica after years of debates “between traditionally hostile, rival lobbies.”63 As for the glory, convenience, and ornament of the homeland, while for the final city council decision regarding the Basilica there was substantial (but not unanimous) support for Palladio among the Vicentine patricians, yet, as documented by Tafuri, the adoption of a nonlocal Roman language in the Veneto hardly seemed “convenient” for all the Venetian patricians—in the sense meant in the quotation above from I Quattro Libri: as accommodating and as suitable to represent ornamentally what would signify as the appropriate identity of the local patria, the homeland. In the local battles between the reforming Romanists and the traditionalists, Palladio’s architecture remained, as Tafuri observed, “a ‘novelty’ [novità] that Venice could assimilate only with difficulty.”64 For Barbaro personally, the assimilative identity of homeland involved a multilayered imprinting, given that, as Louis Cellauro noted, the “Barbaro family claimed ancient Roman ancestry and roots in the Venetian mainland which predated the formal development of the Republic itself.”65 In this sense these political acts in the impressing of refined signs in the Veneto may be compared to Niccolò Machiavelli’s use of the same word used by Barbaro—imprimere—in the former’s Discourse on Livy regarding how Numa Pompilius, the second king of Rome, impressed new forms on an unrefined people: “those men with whom he had to work were unlearned [grossi], this gave him great ease to carry out his designs [desegni], because he was easily able to imprint [imprimere] on them any new forms [nuova forme] whatsoever.”66 All the more reason in this period for Barbaro and Palladio to attempt to impress their reasoning—their demonstrations of the signification of their signs—by seeking to imprint with a renewed significance these signs of a Roman ancestry onto those unlearned in these matters by being locally imprinted in more recent generations and centuries.

What cannot be done by one, would be done by many: in this period, which Tafuri has described as “characterized by the convergence of many efforts intent on modernizing the State” wherein “a technical and scientific renovatio was one of the means of this process” through which “a scientism was affirming itself,”67 what may be noted here are the dimensional multiplication and interplay of the impressed technical and scientific signs between the foreground and background in Veronese’s Barbaro portrait. Manifest behind the book horizontally held by the Barbaro, the one displaying its own imprinting, is another copy, vertically propped up to display an analemma, the orthographic projection of the sun’s motion, which Barbaro devised to illustrate not only Vitruvius’s description of it in Book IX, but more significantly the Patriarch’s own astronomical research. One example of Barbaro’s attempts to control reasoning and finish by drawing through his invention of astronomical instruments, which included the design of the flattened sundials prominently impressed upon the exterior dovecote ends of the villa that Palladio designed in Maser for him and his brother Marc’Antonio—and upon whose interior wall surfaces Veronese impressed his own dimensional interplays in the trompe l’oeil frescoes. As for the dimensional interplay of this portrait’s analemma, it is doubled on its own page, coincident with the surface of the painted page as a flat diagram above while below it emerges dimensionally to be depicted in depth as a plane curling into the curved figure of a sundial. Conjoined with that figuration is the figure of a putto standing outside the diagram, simultaneously behind and shifting forward to over-see its viewing from above. The putto is holding the edge of the dial with its left hand while pointing with its right hand to the analemma delineations, using a linear instrument meant to signify the gnomon that would cast its instructive shadow on the actual dial.68 In other words: the putto is pointedly demonstrating the act of signifying.

As stated by Barbaro in his commentary on this page, this is a presentation of the conjoined figuration of artistic and scientific signification: “the Figure [of the analemma] is below, with another Figure, which we have made for ornament and beauty, demonstrating how it can vary, by preserving the rule, & the form of the Horologists.”69 Thus: ornament and beauty conjoined with—in order to be the signifying conduit of—the rule and the form as so designated by those sorts of overseeing specialists that Barbaro and his patrician associates were proposing to designate. In Veronese’s multilayered portrait of this recursive space of a projective imaginary, the media of these signifying signs of science and architecture are further multiplied as the foregrounded, two-dimensional, micro-scaled diagrams in the books are scaled up as backgrounded, representative, three-dimensional “actualizations”: the armillary sphere modeling these solar motions right behind the upright analemma page, and behind that, on a high pedestal, a modified version of the columns Palladio had depicted on the imprint page.

It is not in spite of but because of the difficulties these patricians had in so impressing and settling the quality and the form they had in their minds that they instigated their extensive media campaigns, seeking to demonstratively signify in print and in paint, as well as in instrumental architectural and scientific artifacts. Barbaro’s scholarly and scientific pursuits were thus engaged in order to impress “the quality and the form that was in his mind” upon Venetian society, through the media of his publications and through the media effects of architectural and urban design. The latter engagements were developed in conjunction with his brother—about whom Howard has stated that “as one of Venice’s most prominent statesmen, [Marc’Antonio] Barbaro was involved, to a greater or lesser extent, in all the major public building initiatives in the second half of the sixteenth century.”70 In these relations of patriarchal power and knowledge, Daniele and Marc’Antonio Barbaro, along with a small group of similarly minded members of the Venetian ruling class, sought to channel technically inclined specialists, such as Palladio, through these initiatives to radically rationalize and reform local traditions: “For the Barbaro brothers . . . Palladio epitomizes the features of their cultural policy: his architecture coherently evokes ‘Roman’ values as it adopts an absolute and aristocratic language, and alludes to intellectual models aimed at rationalizing reality . . . an artistic response to the lofty themes introduced by the new sciences.”71 If Palladio’s language appeared to be absolute, aligned with the signs of the power and knowledge of Roman antiquity, its settlement in Venice was manifest only contingently and remotely. After the inability of the Barbaro brothers to secure commissions for Palladio in civically and politically central positions in Venice (the Doge’s Palace and the Rialto Bridge), the architect’s most noted buildings were positioned either in “one of the most secluded sites of the city” (San Francesco della Vigna) or “on the far end of the lagoon,” forming “a distant horizon … a background, which does not penetrate the fabric of the city” (San Giorgio Maggiore and Il Redentore).72

Regarding the dimensional ambiguity fostered by the limitations Palladio encountered in his first and more remote Venetian church designs, for San Pietro di Castello and San Francesco della Vigna—both commissions engaged through the influence of Barbaro—Andrea Guerra has noted that with “the façades of his first two Venetian churches, Palladio displayed an ‘aspect’ that he could extend neither to the interior of the buildings nor to the areas in front of them, given the extremely cramped sites. His technique of composing with a rigorously orthogonal elevation allowed him to project tridimensional structures onto the surface.”73 This incisive statement might be equally and significantly inverted to suggest that, similarly, it was not in spite of, but because of Palladio’s inability to construct in those buildings the absolute form of a projecting pronaos—the full temple portico Palladio printed as reconstructed from antiquity in Book IV of his I Quattro Libri—that instigated these transdimensional transmedial techniques. These techniques belied the investigative form of truth (investigare la verità) claimed for orthogonal projection, extolled by their practitioners and promoters precisely for their technical accuracy, but which nevertheless resulted in disquieting dimensional ambiguities, errors of perception, and other forms of visual deception. Which Palladio, rather than avoiding or correcting, would opportunistically employ, as Burns noted, creatively “misreading” the drawn and printed representations of his own projects in relation to his own projective surveying and reconstruction of antiquity, manifesting as radically new combinative modes in his late work.

A century after Temanza’s and Milizia’s concerns regarding Palazzo Valmarana, such recombinant ambiguities as enacted in San Giorgio Maggiore indeed disquieted the ever-moralizing John Ruskin who, a century before Wittkower, articulated in detail the problem of the façade. But rather than the approbation afforded by the later historian, Ruskin declaimed the divisive and duplicitous doubling of the shifted scalar inside/outside facing of the church:

The traveller should especially notice in its façade the manner in which the central Renaissance architects (of whose style this church is a renowned example) endeavored to fit the laws they had established to the requirements of their age. Churches were required with aisles and clerestories, that is to say, with a high central nave and lower wings; and the question was, how to face this form with pillars of one proportion. The noble Romanesque architects built story above story, as at Pisa and Lucca; but the base Palladian architects dared not do this. They must needs retain some image of the Greek temple; but the Greek temple was all of one height, a low gable roof being borne on ranges of equal pillars. So the Palladian builders raised first a Greek temple with pilasters for shafts; and, through the middle of its roof, or horizontal beam, that is to say, of the cornice which externally represented this beam, they lifted another temple on pedestals, adding these barbarous appendages to the shafts, which otherwise would not have been high enough; fragments of the divided cornice or tie-beam being left between the shafts, and the great door of the church thrust in between the pedestals. It is impossible to conceive a design more gross, more barbarous, more childish in conception, more servile in plagiarism, more insipid in result, more contemptible under every point of rational regard.74

For Ruskin this church façade exemplifies the problem with Italian Renaissance architects—contemptible under every point of rational regard—while for Wittkower it exemplifies one of the principal—and rationally principled—problems for those architects.

In these churches, through the outside-in superimposition of the pronaos onto the façade, the portico’s transformed manifestation may be considered as reduced—if we use this term without any moralizing mourning, neither manic nor melancholic, but rather as a means of concentrating its ability to “demonstrate by signs” to a flattened orthographically generated sign. Alternatively, it may be considered as abstracted—if we use this term etymologically as a drawing off of or forth from its referent in order to precisely intensify its signifying role to “impress.” In either of these considerations, combining the inside-out projections of the inner lower aisles of the church onto these façades manifests a new agency to intensify the façade’s performative presence as a signifier. A meta-figuration rather than a de-figuration: delineations impressed upon constructed surfaces which, as with their generative graphically delineated elevations on drawn and printed surfaces, reveal similar multidimensional and multireasoned ambiguities. In this projection of “tridimensional structures onto the surface” of the façade, what may be observed is that the term Guerra titled his study—“Moveable Façades”—applies not just to whether or not the pronaos, due to a variety of circumstances, might have been projected out from or onto the surface of these Venetian churches, but indeed as constructed the result enacts an unsettled and unsettling perceptual mobility of signifying surface.

These new modes of enacting signification through transmedial operations developed not only through Palladio’s work in Venice but concurrently in Vicenza, as he was engaged in the equally “extremely cramped site” of Palazzo Valmarana, a building still discussed in Palladian literature, mostly in passing, but whose significance needs to be further underscored due to its own ambiguously reasoned dimensionality and unsettling presence as the most puzzling example of his late work in I Quattro Libri, given the absence of depictions therein of these churches and of the Loggia del Capitaniato.

As to the relational exchanges of backgrounds and (mediating midgrounds and) foregrounds, whether inside-out or outside-in, in these investigations of truth in the realms of antiquity one aspect that remains ambiguous in Veronese’s painted portrayal of Barbaro is whether the antique column has emerged outward from inside the mind of the foregrounded Artificer through the agency of imprinting media to become the new background context, or whether the background context of antiquity (manifest as traces in the world and in the words of Vitruvius) imprinted themselves literally and figuratively foregrounded through media into the mind of the Artificer. And if Barbaro selected Palladio as the Artificer due to his capability to “contend with the ancients and illuminate the moderns” (contendono con gli antichi, danno lume a moderni), what becomes evident and illuminating in Palladio’s late work is the relational conjoining of the disparate double meaning of “contending”: asserting and maintaining on the one hand, debating and struggling with on the other. This double agency engaged through the imprinting of antiquity will becomes particularly evident in the next section through a consideration of Palladio’s own re-reconstructions.

The Scene of the Page: From Mise-en-Page to Mise-en-Scène

Following Burns’s proposal that the solution to the façade of Palazzo Valmarana had “been suggested to the author by his own drawings from antiquity,” the next crucial step in reading Palladio’s projective and productive misreadings of antiquity through the medium of print was taken up six years later, in 1978, by Marcello Fagiolo in “Principii prospettico-compositivi dell’architettura di Palladio.”75 Fagiolo focused on how the graphic layout—what he termed the “mise en page“—in Palladio’s reconstructive studies of antiquity on the pages of I Quattro Libri suggested a constitutive way of laying out the organization and disposition of Palazzo Valmarana’s façade:

The graphic taste of the published layout must then be traced back to the effective importance of the mise-en-page for Palladio [ricondotto all’importanza effettiva della mise en page]: consider that many of his drawings were effectively finalized for their publication in a volume and therefore elaborated with the goal of their graphic rendering on the printed page [resa grafica sulla pagina stampata].76

Fagiolo noted that, graphically, the placement of certain elements in Palladio’s side elevation of the Temple of Nerva Trajan in Book IV corresponded to that of his half-elevation of Palazzo Valmarana in Book II (Fig. 18). In Fagiolo’s example, the disposition of particular elements in the two-dimensional space of the Nerva Trajan woodcut may be seen to become manifest in Palazzo Valmarana, based again, as in the examples of Gioseffi and Burns, both of whom he cites, on the radical contraction of space as inside moves out and outside moves in toward a composite surface. This process may be described as a doubly mediated misreading: the elevational contraction of depth to imprinted surface in Palladio’s reconstructions of antiquity is subsequently and recursively misread and imprinted onto the low-relief “depth” of the palazzo’s surface.

View full image +

Fig. 18. Marcello Fagiolo, Comparative representation of Andrea Palladio, Palazzo Valmarana elevation and Temple of Nerva Trajan section, from “Principi prospettico-compositivi dell’architettura di Palladio,” 310.

This comparison, or “confrontation [confronto],” to use Fagiolo’s word, authorizes (autorizza) Fagiolo “to see” (vedere) in this orthogonal projection a superimposition of loggias crushed, squashed, flattened against each other—which he describing using, as did Gioseffi and Burns, variations of the verb schiacciare: “Il confronto ci autorizza dunque a ‘vedere’ in palazzo Valmarana un loggiato sovrapposto alla parete di facciata … una serie di loggiati schiacciati contro il muro in cui si aprono le finestre.”77 I have enclosed “to see” in quotation marks because Fagiolo does, but this authorization to see how layers separated in depth within a spatial scene may become compressed and superimposed on an imprinted surface has been “authorized” by the Author himself, when in Book IV of I Quattro Libri Palladio describes this Nerva Trajan woodcut as “the elevation of the side of the portico, and through the intercolumniation one sees [uede, in the Cinquecento spelling] the row [l’ordine] of columns that were around the square.”78

What Fagiolo sees, in the imprinted contraction of overlaid systems of that Nerva Trajan elevation, is that the superimposed foreground major-order portico gives the appearance of disrupting the continuity of the lower-order colonnade set back in the distance: “we even find the compositional element that has been defined as a ‘rip in the orders’ or an ‘anti-classical tear’ [troviamo perfino l’elemento compositivo che è stato definite come ‘smagliatura dell’ordine’ o ‘strappo anticlassico’].”79 A torn snag in the background fabric of the buiding, one of the aforementioned structural abuses, but which by extending past the major order provides for Fagiolo an especially surprising termination at the right edge not by the major order but by this minor order “surmounted by a statue! [e cioè la terminazione sulla destra con un sostegno dell’ordine minore sormontato da una statua!]”—is another one of those abuses.80 Fagiolo’s initial astonishment, unlike Milizia’s disdain that he also cites—“The disquieting ‘two-dimensional page’ [L’inquietante ‘pagina bidimensionale’] of Palazzo Valmarana had aroused an alarmed reaction by Milizia”—is punctuated by him literally with an exclamation mark. That sense of disquieting surprise will be rescinded later in the essay, as he attempts to solve and thus resolve—too easily I would suggest—this break in the continuity of the façade by evoking the pyramidal composition he suggests the building shares with the architect’s Palazzo Chiericati, along with other residential works and his churches. As if the flattened imprinting of a shorter building squashed underneath and extending past a taller façade would not seem to be all the more unsettling, given the more laterally regularized palazzo design up to that time.81

What Fagiolo’s and Palladio’s actions of “seeing-through” can also account for is what Wittkower observed as the “combined use of a giant and a small order” in the palazzo, which he opined was “a reference to the problematic architecture of Michelangelo.”82 Furthermore, this “seeing through” the scene of Nerva Trajan—as staged in print by Palladio—can also account, with regard to the architect’s late imprinted church façades, for the fact that the combination of scales is not relegated to just central tall columns and shorter side columns but rather, as Wittkower noted, the impressed contraction of overlaid and interlocked backgrounds and foregrounds, where

the rhythm of the small order penetrates into the main temple front not only with the order framing the central door but also with the entablature, the continuity of which is suggested right across the whole façade. Thus the two orders are firmly linked. But, their calculated interlocking makes the “reading” of such a façade no easy matter. The sophistication and intellectualism of the design are truly Mannerist, far removed from what might be called Renaissance naïveté.83

While both Gioseffi and Fagiolo understandably seek to make the reading of Palazzo Valmarana, if not an easy matter, then at least an easier matter by referring to its layers as separately compressed—by the former author as “plated” (placcati, in the sense of gold or silver plating as a mere laying of a thin surface upon and over another surface) and by both authors as “crushed” (schiacciati)—Wittkower instead suggested that what is not easy about the matter of this palace is that its three layers are not just pressed upon each other but interact and imprint each other with their respective behaviors, in what may be stated as an equally calculated interlocking. With a series of Latinate-prefixed inter- words—“interpenetration,” “interlocking,” “intersecting,” “interplay”—which he used throughout his two brief chapters on Palladio’s palaces and churches, Wittkower charted the relational exchanges that are developed through these contractions of space into surface that Palladio enacts in the later work.

The uneasy reading of such works is due to the ways in which they instigate a participatory conjoining with those who read them, as in the manner that Robert Klein described in “the painted mise en scène and the dialogue with the public, such as had been instituted in the Farnesina and in the Villa Barbaro, and was to be continued by Padre Pozzo.”84 In the concluding section I return to these spatialized exchanges of backgrounds and middle-grounds and foregrounds that instigate a dialogue with the public viewer—the co-incidental interlocking of spectator and media—enacted by Veronese’s trompe l’oeil frescoes in Barbaro’s villa (and those by Zelotti and others in Palladio’s other villas and palazzi) and their influence on Palladio. Klein’s additional citation of Andrea Pozzo—that seventeenth-century exemplar of “meta-perspectivism,” to use Fagiolo’s term—may seem to extend the painted mise-en-scènes of the Villa Farnesina and Villa Barbaro into anamorphic associations beyond the range of this Cinquecento period. But further to be discussed is the relation between the frescoes in Barbaro’s villa and the interest in anamorphosis that Barbaro signified in the Fifth Part of his late treatise on perspective—La pratica della perspettiva (1568), prepared for publication in the period of Palazzo Valmarana’s development—imprinting the title of that section as “Nella quale si espone una bella, e secreta parte di Perspettiva.”85 For now, what Wittkower’s observations should make evident is that the effective significance of Palladio’s graphic layout proposed by Fagiolo requires the further understanding that the mise-en-page in Palladio’s reconstructions was developed, extending Fagiolo’s term by following Klein, as the relational figuration of a mise-en-scène. This “placing on stage,” this spatialized staging developed in the flattening surface of an artifact or representation—drawing, etching, film, fresco, painting, photograph, or relief (whether that of an architectural or a sculptural surface)—manifests as a visual condition wherein the arranged placement of seemingly disparate scenes occurring in the foreground, the middle-ground, and the background of a space are not merely overlaid indiscriminately in a simply adjacent manner but rather cohere, co-incide, and conjoin in particular areas of interface through the discriminating dynamics of their interrelations. And thus following Klein, it may be stated that these relational exchanges are evident not only in Veronese’s frescoes at Villa Barbaro but also in the signifying mise-en-scène of his multilayered portrait of Barbaro.

This painterly technique of mise-en-scène had already been noted earlier with transmedial regard to Palladio’s church façades by Alois Riegl, in his lectures from 1894-1902 at the University of Vienna on Italian Baroque art:

The façade of San Giorgio Maggiore … gives a painterly overall impression… The façade is not a single wall that projects forward and backward, but rather two walls with one at the front and one at the rear, for which reason the composition has a greater restfulness [größere Ruhe]. The two planes are, however [aber], connected by a concordance of lines. The façade of the Redentore is enhanced, as it consists of three planes that are unified into one visual plane by means of six parallel lines on both sides. This method is parallel to that of Tintoretto, who scattered figures into deep space and unified them by means of concordance and contrapposto. (This is similar to the Mannerist composition of arm and upper torsos that is quite conspicuous in the art of Paolo Veronese.)86

In this translation I have modified “größere Ruhe” from the published “very calm” to “greater restfulness,” in order to acknowledge that rather than establishing the more statically closed measure of “very calm,” the effect noted by Riegl is openly relative to what he perceived as a more dynamic mode of single-plane façades that appear to be projecting forward and backward. Because, just as soon as this relative “restfulness” is cited, in the very next sentence a “however” appears, which reveals an animated restlessness that Riegl links to painterly techniques of associated persons, period, and place: as in the mise-en-scène of the paintings of Tintoretto and Veronese, the architectural figurations in the layered “deep” space of Palladio’s church façades are brought into relation by means of concordance and contrapposto (Konkordanz und Kontraposte). But further, beyond the evident mise-en-scène of their visual concordance, the two and three planes of these churches remain neither separated in plated layers nor unified into one pictorial plane, but restlessly project forward and backward as conjoined interpenetrations into each other’s planes.

As for the equally painterly or rather impressed relief that is Palazzo Valmarana’s façade, it is the manifest conjoined interlocking between these layers as noted by Wittkower, rather than just their mere plating upon each other, that not only establishes but enacts and intensifies its relational mise-en-scène. Which interestingly Riegl did not notice, even as he did notice something strange in its layering:

Palazzo Valmarana in Vicenza has a colossal order of composite pilasters and a mighty portal that together create strong subordination [Subordination]. On the other hand [Anderseits], there is also dissolution [Wegräumung] of the wall.87

If the superscaling of the composite pilasters and portal are supposed to provide a hieratical subordination of the lower orders and other tectonic figurations of the façade, Reigl’s “on the other hand,” like his previous “however,” is telling. Such subordination is subverted by the dissolution of that which would be subordinated—in the “extremely complicated interplay of wall and order,” as previously noted by Wittkower, where even “the small Corinthian order is not applied to a proper wall.” But following and furthering Riegl’s observations on Palladio’s church façades, Palazzo Valmarana’s layers are also brought into relation by means of, to use his terms, “concordance and contrapposto,” projecting forward and backward as conjoined interpenetrations into each other’s planes—as when that small Corinthian order and its supported soldier manifest hieratical insubordination by positionally projecting forward into the front plane of the colossal order at that crucial co-ordinate of the corner.

In chapter VII of I Quattro Libri’s Book III, Palladio used the word congiongogo (an early form of the present-day congiungere)—and which Margaret Muther D’Evelyn aptly translates as “conjoining,” rather than alternate versions along the lines of “adjacent to,” “next to,” or even “congregated around”—to propose how the Greeks used shared porticos to create the social and spatial interlocking of “piazzas and the buildings [the basilica, the curia, the prison] surrounding them.”88 Palladio, following Barbaro’s commentary, is puzzling as to how these civic institutions were positioned (ordinauano), given that their relational coordinates with the piazza were not stated by Vitruvius. What was stated by Vitruvius, in chapter II of his Book V, was that these institutions were not just adjacent to but rather coniungenda—whose meaning is one of an allied affiliative relation, which required their magnitude and proportion (magnitude symmetriae), or as Richard Schofield translates, their “scale and modularity,” to re-scale and re-modulate with a co-ordinated responsiveness (respondeant).89 As in this example at the macro scale, Vitruvius also uses this term (coniungantur) at the micro scale, as in chapter VI of Book IV, where he describes in the configuration of a Doric doorway how the lintel (supercilium) and jams of the doorframe are conjoined to the frieze (hyperthyrum) above, through the integral articulation of the molding surround (cymatium).90 Barbaro described this conjunction further, in even greater detail.91 These connections are not just a mere haphazard joining or layering of different tectonic or typological figurations but a responsive conjoining wherein certain proximate figurations are re-figured to demonstrate a relational sharing of their manifest signification. It may be suggested here that “conjoining” is a particularly apposite term with which to describe the responsively interactive positioning technique whereby, within the works of Palladio, separated figures—tectonic here in this section, pictorial in the next—are ambiguously imprinted with behaviorally related attributes.

From the start of Barbaro’s commentary on the very second chapter in Vitruvius, these locational positionings are posited as relational associations—termed by Vitruvius conlocatio and translated by Barbaro as collocatione: “I say that order is among those things that refer to others, and that are situated in comparison, and respect.”92 The latter indicates relations hierarchically equivalent with respect to mutual valuation, the former indicating relations comparatively disparate in hierarchy. But what should be posited in both of these relations, according to Barbaro’s commentary, are the “chosen effects” of clarity and distinction, rather than any confusion or indistinct ambiguity:

He [Vitruvius] thus says, following his definition, that “disposition is apt collocation of things.” By “things” he means rooms and the parts of them in the building—that is, the parts of the works made by the architect, whatever they may be. This well-disposed collocation of parts leads to seeing in the entire composition a fine quality—that is, that each thing is in the proper place—and, as he says, “the chosen effect“—that is, quickly arrived at, clean, distinct. The opposite of disposition is the superfluous, as the opposite of order is confusion.93

Even as late as 1959, Wittkower was still puzzling, in the first issue of the Bollettino del CISA, over the relational ambiguities of Palazzo Valmarana, the nondistinct superfluous confusions of many things not in their proper place: “We note some ambiguities, so we ask ourselves: What is the order? Which layer can be defined as the ‘plane’ of the facade?”94 In the draft version of this text, Wittkower wrote an even longer list of questions, linking them in a single sentence to the other puzzling attributes of equivalent and comparative relations noted in the published article: “Ambiguities (what is rustication; what is order; which layer can be defined as the ‘wall,’ the boundary between inside and outside?) and contrast (giant order and subsidiary order; enormous capitals and slender window profiles) are rampant and even the coherent articulation is broken in the corner bay” (Fig. 19).95

View full image +

Fig. 19. Rudolf Wittkower, draft, “Sviluppo stilistico dell’architettura palladiana,” Rudolf Wittkower Papers, Rare Book & Manuscript Library, Columbia University. Photograph by the author.

Nonetheless, in the earliest 1944 incarnation of what would become his Architectural Principles text, after stating that he was losing his language and patience with the noncoherence of the palace, Wittkower provided in the very next two sentences an example of a principle that literarily, figuratively, and figurally coheres the separate articulated layers of the façade—in both senses of that word’s meaning: to hold together and to establish an associative collocational co-ordinated logic for such holding. The technique he proposed was one he claimed as a main principle of mannerist architecture, namely the mutual inversive imprinting of tectonic behaviors.,96 as evidenced at that infamously disquieting corner (Fig. 20a): “The cornice projects above each pilaster of the large order, but there is no such projection at the corners, above the caryatids; the entablature of the small order, on the other hand, is in one plane throughout, with the exception of the corners where it projects under the caryatids.”97 In sequence with Wittkower’s sentence, we can visualize the inverse of Palladio’s inverse, returning these figurations back to their expected positions, thus projecting the top cornice at the corner so as to provide the least bit for the “caryatid” to appear to be supporting, and returning the entablature of the smaller order to one plane (Fig. 20b). While here, we can also imagine what would have assuaged the discomfort of Temanza and Milizia, by continuing the giant order into the corner “in which architects have always endeavored to show greater solidity than in any other part of the building,” and thus also “repairing” the weakening of the top entablature by filling in its punctured hole (Fig. 20c). This complete sequence is animated in Figure 20d, concluding back to the ambiguous manifestation as designed by Palladio.

View full image +

Fig. 20. (a–c) Andrea Palladio, Palazzo Valmarana, Wittkower’s inversion. Photograph and digital visualization by the author.

Fig. 20. (d) Andrea Palladio, Palazzo Valmarana, Wittkower’s inversion. Animation by the author.

Following Wittkower, we can thus note some further ambiguities and also ask ourselves—or note what this work asks of us: what is an entablature, such that it might literally and figurally project or figuratively project some symbolically structural meaning? While on the courtyard side of Palazzo Valmarana the entablature remained strangely incomplete in its projection, on the front façade there are complete versions both for the six giant Composite orders—ostensibly to “carry” the loads of the roof statuary printed in the I Quattro Libri elevation—and for the two corner mid-scaled Corinthian orders—to carry their “loads.” The fact that these projective entablatures are a standard convention—in antiquity (as extensively drawn in reconstructions by Palladio) and through his own designs—should not blind any observer to how “illogical” are the fictive presumed “logics” of such conventions, when the supposed implied and applied manifestation of distinct horizontal structural distribution perpendicular to the vertical loads—a beam positioned overtop columns—is projected forward so as to appear to manifest the downward transfer of vertical compressive loads. As surprising as it is to state, Palladio as Artificer here exposes, in the ambiguous attentions of these artifacts—whatever his intentions may be imagined to have been in this regard—the abuse of actual structural principles through these “abuses,” revealing the fictive artifice of their imprinted (in all senses) canonical expressions.

Thus, Wittkower’s principle reading of this corner’s simultaneous projection below but yet absence of projection above requires further careful attention. Why he, following Milizia and Temanza, found this corner so disturbing is not just that the order has switched from a giant order to a smaller order surmounted with, as Milizia says, a soldier with his back to the wall. It is standard for caryatids and atlantes to face outward, with their backs to their associated walls, but these figures generally are configured to appear to pay greater attention to the associated loads that, symbolically, they are supposed to be supporting. In caryatids this attention is made evident through the presence of a basket, cushion, or capital upon their heads—as depicted in two of Palladio’s illustrations in Book I of both editions of Barbaro’s Vitruvius. The lack of these elements on the heads of the Palazzo Valmarana soldiers in the building and in any of Palladio’s representations of the building may explain why, in the later edition of Architectural Principles, Wittkower replaced “caryatids” with “atlantes” in this sentence.98 Yet, with atlantes, their structural attention is generally made apparent by the bending of their heads (and their shoulders and legs sometimes as well) and by their arms stretching upward and backward to carry the loads above them—as depicted in the illustration of their supporting roles of the anaphoric clock in Book IX of both editions. What it may be supposed so irked Milizia is that this soldier, who appears at ease in his dereliction of structural duty, has turned his back on the symbolic supporting role in the structural loads of the wall. As visible today, in the photograph taken in 1900 by the Fratelli Alinari (see Figure 8, right), and Scamozzi’s elevation, these two end soldiers take a hands- (and arms-) off position with regard to the implied load of the main entablature. In Palladio’s sketch and the printed full elevation in I Quattro Libro, these arms are lowered as well. And while in the printed half-elevation the soldier’s right arm is raised to support this entablature, no further compressive load is expressed through a bending of head, shoulder, or leg—due, as Wittkower observed, to this crucial corner’s structural juncture being bait-and-switched: even though the support underneath these supposedly robust “atlantes” is made more robust by being projected outward, the entablature with its weighty cornice above these soldiers is un-robustly un-projected, leaving them with little to support directly overhead. So, unlike the analemma putto in Barbaro’s Vitruvius and Veronese’s Barbaro which—from its position back, behind, below—shifts forward above to engage in a supporting role, the end soldiers of the palace remain unsettlingly insubordinate in their disengagement.

We can track further how these epistemological and structural ambiguities, which actively and precisely pose rather than answer Wittkower’s questions, are staged in the building by utilizing the two Palazzo Valmarana visualizations Fagiolo produced, the insights and blind sides of which provide the opportunity for their further development here.

To demonstrate how extensive the relational correspondences are between Palladio’s reconstruction of ancient architecture and the re-reconstruction of antiquity within Palladio’s own architecture, Fagiolo set up the aforementioned side-by-side graphic comparison between the Temple of Nerva Trajan side elevation and Palazzo Valmarana half-elevation woodcuts in I Quattro Libri. In this visualization, he had the audacity to “re-ink” Palladio’s plates by “highlighting” with solid black infill three elements shared by both buildings, but rather than obscuring our view of Palladio’s work, as did Inigo Jones, Fagiolo’s own imprint upon the drawings coincides with Palladio’s shared coordinates between the plates and indeed brings out their characteristics all the more: (1) the three full giant-order columns (along with the one half column cut off from view), (2) one of the full columns of the outer colonnade around the temple square that appears to match the placement of the secondary order in the palazzo, and (3) the rooftop statue and the statue atop the colonnade, along with one example of what Palladio calls their pilastrelli, “the little pilasters above which the statues were placed,” which are also present in flattened versions in the palazzo.99 Fagiolo’s highlighting of comparable tectonic elements makes immediately evident those correspondences and their imprinting on Palazzo Valmarana, while also suggesting further correspondences ostensibly implied but not specifically highlighted or noted by him, as well as several other pertinent aspects along these very lines that he neither implied nor noted.

View full image +

Fig. 21. Comparative Vertical Layering in Palazzo Valmarana elevation and extended Temple of Nerva Trajan section (extrapolating Marcello Fagiolo’s hypothesis). Digital visualization by the author.

In the vertical register (Fig. 21), for example, Fagiolo does not note that the sectional slice through the top temple entablature corresponds to the projecting entablature above the giant orders in the palazzo or that the sectional structure above this point in the temple corresponds in position and proportion to the attic pilastrello (his notation of the corresponding pilastrello and statue above the column and entablature of the exterior colonnade is correct, although its position is not). He also does not mention that the sectioned foundation under the temple column corresponds in the palazzo woodcut to the pedestal base imprinted on the basement, completing Palazzo Valmarana’s manifestation of the giant order from ground level through to the intended rooftop statues. Missed as well in Fagiolo’s analysis of the Nerva Trajan woodcut is another intrinsic imprinting—an inside-out example in addition to the outside-in ones: the glimpse, on the far left of the woodcut, into the interior of the cella, in the inner sanctum of which appear the tabernacles framed by a row of Corinthian columns and their entablature with its pulvinated frieze, corresponding in their position and attenuated scale to the position and scale of Palazzo Valmarana’s middle-ground Corinthian order with its pulvinated frieze. Indeed, the rest of the cella’s elevation can be found on the following woodcut, number 27 in Book IV (Fig. 22, top)—coordinated and conjoined here with its neighboring woodcut (Fig. 22, bottom)—where the statue on the far right with raised right arm (even if Palladio neglected to include this statue in the side elevation) may be seen to coincide in its position and scale in relation to the Composite giant order of the temple with the disposition of the statue and capital in the palazzo. This would be particularly evident if this cella statue were to be provided with one of the shortened pilastrelli of the palace’s end statues.

View full image +

Fig. 22. Andrea Palladio, Temple of Nerva Trajan, Coordinated and conjoined woodcuts. Digital visualization by the author.

If Fagiolo failed to note the scaled correspondence of these pulvinated entablatures in this mediated exchange, this is due in part to the visual technique he used in making his comparative analysis. The Nerva Trajan woodcut was enlarged and cropped by Fagiolo, editing out the view of the cella on the left. Indeed, it is initially difficult to ascertain any reasoning behind his particular choice of scale or positioning of that woodcut relative to any the coordinates of Palazzo Valmarana. Upon further consideration, it seems that in order to make more explicit his indeed significant comparison between the end statues at the mid-level in the two engravings, he aligned the two drawings to the top of these figures’ heads. Yet this alignment has the result that his enlargement is not scaled to coincide horizontally with any of the principal tectonic datums in the Palazzo Valmarana woodcut. While Fagiolo’s version is certainly demonstrative of his proposed visual effects—as would be the case with other alternative variations, such as an equivalently scaled comparative of the two full I Quattro Libri pages—the delineated coordinates of his hypothesis would have increased in significance, as similarly with Gioseffi’s visualization, by being verified more exactingly and extensively. Were Fagiolo to have adjusted his enlargement to match the height of the giant orders on each woodcut, for example, he would have found that the colonnade orders of the temple would come even closer in height to the middle-ground order of the palazzo—suggesting that this order may be perceived as a coordinated figure, sharing both the attenuated scale and pulvinated frieze of the inner cella order and the relative alignment of the disjunctive colonnade. In the palazzo, these shared coordinates are further evident in the dimensional ratio of the end vertical support of the statue, as the combined width of its one-and-a-half-attenuated pilasters appears equivalent to the width of one colonnade column. In addition, one can extend Fagiolo’s and Palladio’s “seeing through” to notice in the temple woodcut not only how the slender framing of the relief figures of the colonnade entablature appears coincidentally in proximity to the giant-order capital but also how the framing of these relief panels, as seen through the portico columns, corresponds to the placement of the palazzo’s piano nobile window framing, filling up the space between the giant-order pilasters in the “hemmed-in” manner—the “unequal, typically Mannerist, competition arising between … the slender … and the bulky”—previously noted by Wittkower (Fig. 23).

View full image +

Fig. 23. Andrea Palladio, Palazzo Valmarana, ‘Hemmed in” window. Photograph by the author.

View full image +

Fig. 24. Comparative Horizontal Layering in Palazzo Valmarana elevation and extended Temple of Nerva Trajan section (extrapolating Marcello Fagiolo’s hypothesis). Digital visualization by the author.

Fagiolo’s own “seeing through” in this visual analysis highlighted only the vertical elements, yet implied in his illustration (but stated neither in the text nor the captions) are coincidences and correspondences in the horizontal register (Fig. 24). Not just the clearly evident middle and top entablatures but also the sketchy kneeling, semirecumbent, and standing figures visible in the frieze of the former that are similar to the figures depicted in the plaques in the ground level of the Palazzo Valmarana woodcut. But the co-incidental architectural figuration particularly worth noting at the ground level is that the base of the palazzo corresponds to what Palladio describes in the temple as the “basement that runs around the whole building and forms side walls to the steps.”100 Which layer in the palazzo this base should be associated with in relation to the Nerva Trajan reconstruction will remain ambiguous in any analysis, because this ambiguity is manifest not only in the imprinted drawing but in the consequential layered imprinting in the building as well. In Fagiolo’s other analytical representation of Palazzo Valmarana (Fig. 25, left)—an “exploded” isometric drawing of half of the building101—he took considerable steps to distinguish and separate the layers of the building, pulling out from what he constitutes as the background plane of the building (1) the foreground’s three giant-order pilasters, with their pedestals and a portion of their associated cornice, and (2) the middle-ground order (which is depicted as a series of paired whole columns—with the presumption that the impressed crush of the giant order would cleave and displace their inner halves—along with the associated cornice (with the statue’s pilastrello but without the aforementioned exclamation-marked statue!) and the building base. The captioned title of Fagiolo’s representation is “Decomposition of the Virtual Layers accumulated in the Façade of Palazzo Valmarana [Scomposizione degli Strati Virtuale addensati nella Facciata di Palazzo Valmarana].”102 As the representation makes evident, for Fagiolo the “decomposition” of the façade—in the sense of separating its constituent compositional parts—reveals the virtual laminar design of the palazzo, by delaminating each of what he considered as its autonomously separate layers.

View full image +

Fig. 25. (left) Marcello Fagiolo, “Decomposition of the Virtual Layers accumulated in the Façade of Palazzo Valmarana”, from “Principi prospettico-compositivi dell’architettura di Palladio,” 309, and (right) its recomposition. Digital visualization by the author.

It should be understood that even when these layers are recomposed and accumulated back into the building, they remain as virtual, given that in any layer of this façade, what is manifest are not those elements from antiquity bearing actual structural loads—not basements, not columns, not porticos, not caryatids—but the mediated signs of things impressed, the symbolic re-presentation of cultural and structural loads borne. In regard to the ordination and coordination of these impressed layers, if in I Quattro Libri the two senses of ordine—as row/story/layer and as among the named systems (Tuscan, Doric, Ionic, Corinthian, Composite) of classical designation (and even, it may be added, the word’s third sense as “order, sequence, arrangement”)—are, as Schofield suggested, sometimes “difficult to separate, if indeed they need to be,” this ambiguity has been designed by Palladio into Palazzo Valmarana.103 In this building Palladio ordered, sequenced, and rearranged the multiple rows of its architectural orders (Tuscan, Corinthian, Composite) to create interrelations between its stories as well as syncopation within and between its impressed layers, enacting a dynamically dispositional signifying, the ordine of its reasoning made demonstratively if equivocally manifest. With regard to Barbaro’s Vitruvian commentary that a “well-disposed collocation of parts leads to … each thing … in the proper place,” clearly and distinctly such that the “opposite of disposition is the superfluous, as the opposite of order is confusion,” Palazzo Valmarana presents a paradox. Like the multiple signifying senses of ordine, the building’s multiple layers, rows, and levels are sufficiently distinct to apprehend what each figuration is conventionally meant to signify—yet still, given the sufficiently superfluous confusion regarding their proper dis-positions, they consequently remain difficult to separate. As indeed—no if—they need to be difficult to separate in order to actively, rather than passively, demonstrate their signifying reasoning through the co-incidence of their collocational interaction. A mise-en-scène mode of interaction—which, as noted, Riegl and Klein observed in Palladio’s work with reference to Tintoretto and Veronese—developed here not only virtually as visual linkages across the separation of these layers but through their actual spatial interlocking.

Thus, the clarity of separation of each of Fagiolo’s layers, while seemingly desirable for their evident visualization, is a problem due to the evidence of their interlocking in the building, this interplay of structural and tectonic relations. The crux of this problem can be located in Fagiolo’s depiction of the base in the second layer, which he extended both outward from the secondary order and inward toward the back plane. If the decomposed layers of this drawing were simply recomposed as he stated Palladio composed the building, superimposed (schiacciati)—crushed, squashed, flattened—back together again as reconstructed here (Fig. 25, right), the layers would not cohere, but rather each would stand suspended out from the other. The giant pilasters (which Fagiolo has inaccurately drawn as in a uniform plane with their pedestals) would stand suspended out from the building rather than be flattened against the back plane, due to this extended base. This outboard suspension would also be the case for Fagiolo’s secondary order as drawn, given his extension of the base behind that order.

View full image +

Fig. 26. (a) Andrea Palladio, Palazzo Valmarana, axonometric. Digital visualization by the author.

This lack of coordination should be a simple matter to correct—by internesting these layers, notching them into each other—but none of the matter that composes Palazzo Valmarana is simple. And it should be noted that in the other two exploded isometric drawings Fagiolo produced for this text (of Villa Poiana and Palazzo Antonini in Udine), their respective layers are not internested in relation to each other, not even in the telescoped manner of, say, a traditional spyglass, but merely layered over onto each other. This is so even though there exists actual or implied internesting of the porticos in these buildings as well as throughout many of Palladio’s other palazzos and villas. By developing a more accurate modeling of Palazzo Valmarana’s façade (Fig. 26a), we can follow Fagiolo’s layering system to see where the problems in his representation arise, as well as follow where and how Palladio has expressively staged this problematic in this building. Given Fagiolo’s proposal that we consider Palazzo Valmarana with respect to the Nerva Trajan plate, the visual comparison performed here is coordinated with that plate, now extended with the incorporation of its inner cella:

View full image +

Fig. 26. (b) Comparative Layering in Palazzo Valmarana axonometric and extended Temple of Nerva Trajan section, Lower Foreground Layer. Digital visualization by the author.

(1) First, like Fagiolo’s drawing, the giant Composite pilasters (and pedestals) can be brought out along with the associated entablature (Fig. 26b).

View full image +

Fig. 26. (c) Comparative Layering in Palazzo Valmarana axonometric and extended Temple of Nerva Trajan section, Upper Foreground Layer. Digital visualization by the author.

(2) But unlike Fagiolo’s drawing, yet like the Nerva Trajan elevation, along with those columns and entablature, their associated pilastrelli and top statuary can also be brought out (Fig. 26c).

View full image +

Fig. 26. (d) Comparative Layering in Palazzo Valmarana axonometric and extended Temple of Nerva Trajan section, Lower Middle Ground Layer. Digital visualization by the author.

(3) Next to be brought out is the secondary layer of the Corinthian pilasters and its entablature along with the building’s base, like in Fagiolo’s drawing. But unlike his base, in order to receive the internesting of the Composite pedestals, notched indentations are depicted to their full depth, as revealed at the portal entrance (rather than the partial depth otherwise visible on the façade), which extends back to the outer dimension of the Corinthian pilasters (Fig. 26d).

View full image +

Fig. 26. (e) Comparative Layering in Palazzo Valmarana axonometric and extended Temple of Nerva Trajan section, Upper Middle Ground Layer. Digital visualization by the author.

(4) Again unlike Fagiolo’s drawings, yet like the Nerva Trajan elevation, on top of the Corinthian entablature also to be brought to this layer are the associated piano nobile window frames that coincide with the frames of the Nerva Trajan colonnade (Fig. 26e), given that Fagiolo proposed this colonnade as, to use his word, “homologated (omologare)” to the palazzo’s Corinthian layer: “un portico minore (da omologare allo pseudo-portico delle ‘colonnacce’ visibili in questa tavola sulla parete di fondo).”104

View full image +

Fig. 26. (f) Comparative Layering in Palazzo Valmarana axonometric and extended Temple of Nerva Trajan section, Middle Ground Layer. Digital visualization by the author.

View full image +

Fig. 26. (g) Comparative Layering in Palazzo Valmarana axonometric and extended Temple of Nerva Trajan section, Middle Ground Layer. Digital visualization by the author.

What must now consequently be confronted in this sequential comparison is this: if we follow through along the basis for Fagiolo’s homologations, which is that these virtual re-presentations of cultural and structural loads were decomposed and recomposed by Palladio, accumulated and reconstructed in the respective media of book and building through the architect’s projective reconstructions, then to which layer should the building base belong? Disquieting as it may be to any initiative to maintain the autonomous and therefore settled separation of these layers (such that they would merely plate over each other), the equivocal answer to this question, provided by the evidence of equivocality in the drawings and in the building is, both. Indeed, this bifurcation of bases is visible in the building at the portal entrance (Fig. 27a), split-seamed between an outer base aligned with the Composite order and an inner base aligned with the Corinthian order, as well as the building-wall depth that is visible in the ground-level apertures. Thus, a redistribution of the base may be imagined, split but shared between the layers, upon which they will be further conjoined and interlocked in their upper registers, enabling a more precise accounting of the tectonic techniques evident in the building that spatialize a mise-en-scène exchange between the layers, a redistribution of co-ordinates.

View full image +

Fig. 27. (a) Andrea Palladio, Palazzo Valmarana, Bifurcated base. Photograph by Marianna Mancini.
(b) Andrea Palladio, Palazzo Valmarana, Conjoined moldings. Photograph by the author.

If the Nerva Trajan elevation is to homologate—confirm, ratify, validate, authorize—which layer the palazzo base belongs to, then it must be noted that the woodcuts show us and indeed Palladio tells us clearly that the colonnade not only does not have a base but even more so that its columns even ”lack pedestals but rise from the ground.”105 In the Nerva Trajan elevation, the order that the base is associated with is the giant order of the temple, standing upon the aforementioned “basement that runs around the whole building and forms side walls to the steps.” At Palazzo Valmarana, the bases of the giant Composite pilasters are positioned foremost on this “basement,” while the secondary Corinthian half-pilasters are positioned backmost, except the end whole Corinthian pilaster, statue, and (as Wittkower noted) entablature that is redistributed outwardly, shifted in its position to the spatial and structural coordinates of the front plane to “uphold” the disquieting missing corner. While it would seem that in fact the building base should have been brought out right from the start of this sequence with the first layer, doing so would miss Burns and Fagiolo’s point regarding the deliberate contracted or projective misreadings between these layers in these drawings, such that it “appears” in the woodcut as if those columns are standing on that basement’s side wall. But given that Palladio shows that each of those colonnade column shafts end not cut-off, as would be Doric columns, but with their own proper column bases, and given that a second base wall has always been visible in the Nerva Trajan elevation (in the cella that Fagiolo cropped out, the element marked as F by Palladio in its full view), if we include the whole minor order of the cella, it is easier to perceive how the latter not only has the pulvinated frieze but also the base wall that may be said to coincide with the palazzo’s Corinthian order.

Rather than merely solve this problem, this analysis leads us to how this problematic matter has been performed in and through the building, even extending to the tectonic details of how the classical moldings at the point of interface between the orders enact a further conjoined interlocking (Fig. 27b). This demonstrative evidence of a point of co-incidental equivocality and exchange can be tracked as the giant Composite order phase-changes its relation to the secondary order—from initially giving the appearance in the lower section as just layering over the Corinthian order to subsequently cutting through it in the upper section once the Corinthian capitals are reached, where the substantial depth of the giant-order shaft, extending all the way back to the façade, becomes visibly evident. Starting from the ground and proceeding upward, the giant pedestals could be read (and were so read by Fagiolo) as just pressed onto the building base, but the critical point of phase transition occurs at the combined pilaster bases of the two orders. At the lowermost point of these bases, the Composite pilaster’s lower convex torus and midsection of concave double scotia separated by convex double astragals terminate abruptly against the bare lower and midsection of the secondary Corinthian pilaster’s flattened blank base. So again it could appear as though the Composite order is just layered over the Corinthian order. But above this area, the two orders are interlocked in the zone where their respective base and shaft are conjoined, through a sharing of their bases’ upper torus and the pilasters’ lower astragal (termed tondino by Palladio) along with the lower outward curvature of their pilaster shafts that terminate in a flat cimbia.

This initial disjunction may seem inevitable as, although Palladio states that the Composite order could use the same single scotia Attic base as does the Corinthian order, the building’s Composite base follows the example Palladio does provide and depict, with its mixture (composta) of Attic and Ionic scotia.106 Had a single scotia base been used for both the building’s Composite and Corinthian orders, as depicted in the half-elevation woodcut, uniform joining would have been easy. But in this regard, it should be noted that in the drawing of the half-elevation the single scotia Composite base is depicted as disjunctive with the blank Composite base behind, while the conjoining of the two orders begins with their upper tori, as it does in the building. Similar examples of conjoinings at the interface between shaft and base may be noted within the same late period of Palladio’s work: in the Palazzo Porto courtyard woodcut, the paired giant Composite column and the single-story Corinthian pilaster that supports the loggia floor share tectonic features across the tops of their otherwise differing bases, while in the façade of San Giorgio Maggiore the bottom of the pedestal base of the giant Composite column and top of the secondary Corinthian pilaster base are similarly conjoined—in both cases the flat lower section of the Corinthian base is blank. And in the Valmarana family chapel at Santa Croce, constructed ten years after the start of Palazzo Valmarana, David Hemsoll has noted the shared tectonic figuration that Palladio developed between the pilaster and the adjacent wall moldings.107

Such evident conjoining need not be directly and continuously attached, as is the case with these particular moldings, to evidence equivocal conjoined exchanges in Palazzo Valmarana, and thus with this term we are provided another means by which to read Wittkower’s aforementioned statement: “The cornice projects above each pilaster of the large order, but there is no such projection at the corners, above the caryatids; the entablature of the small order, on the other hand, is in one plane throughout, with the exception of the corners where it projects under the caryatids.”108 It is this inversive imprinting of tectonic behaviors Wittkower noted in the disposition within and between these layers that conjoins them in their mediated exchanges.

These mediated exchanges are what the media readings of Gioseffi, Burns, and Fagiolo observed, wherein the mise-en-page of Palladio’s drawn and printed reconstructions (of his own projects and those from antiquity) manifests as a mise-en-scène—a visual conjoining through relational co-incidence, inside-out and outside-in, as background moves forward and foreground moves back. Thus, Palladio created visual conjoining not only through direct linkages but indirectly across what canonically should have been separate layers. It is this equivocal shifting of transformative dispositional reasoning between layers that demonstratively enacts their manifestation of signification as an active process. Indeed, even within individual layers of the palazzo, certain tectonic elements that should be so self-continuous that one would not even consider them as jointed are now disjointed, such as the entablature of the middle Corinthian layer cut by the outer Composite layer into separated segments, problematizing their very semiological and structural identity. A further decomposing within the secondary layer is manifest at the corners, with the disjoined projection forward of the entablature noted by Wittkower, although in fact it is not the entire entablature within the corner bay that shifts but only the section under the statue and over the whole Corinthian pilaster but not its adjacent half-pilaster (Fig. 28). This recomposed equivocal completion of the corner—recomposed not just in the sense of restoring it to an original state but rather of rearranging its composition—shifts the whole pilaster and statue as well, outward from the secondary layer to align and conjoin with the outermost Composite layer (Fig. 29).

View full image +

Fig. 28. Andrea Palladio, Palazzo Valmarana, Shift of layers at corner. Photograph by the author.

View full image +

Fig. 29. (a) Comparative Layering in Palazzo Valmarana axonometric and extended Temple of Nerva Trajan section, Shift of Middle Ground Layer Corner Order and Statue to Foreground Layer. Digital visualization by the author.

View full image +

Fig. 29. (b) Comparative Layering in Palazzo Valmarana axonometric and extended Temple of Nerva Trajan section, Background Layer. Digital visualization by the author.

View full image +

Fig. 30. (a) Comparative Vertical Layering in Palazzo Valmarana elevation and extended Temple of Antoninus and Faustina section. Digital visualization by the author.
(b) Comparative Horizontal Layering in Palazzo Valmarana elevation and extended Temple of Antoninus and Faustina section. Digital visualization by the author.

Another conjoined manifestation in the middle-ground layer emanates from the background third order of the palazzo that is associated with the back façade. While Fagiolo did not discuss this third Tuscan order, one could follow his lead by turning the page in I Quattro Libri, right after the Temple of Nerva Trajan, to Palladio’s next reconstruction, the Temple of Antoninus and Faustina, to note in its first woodcut many similar co-ordinations to Palazzo Valmarana in the vertical register (Fig. 30a)—the giant order as well as the colonnade order with the projective entablature, pilastrelli, and statuary proximate to the giant-order Composite capital—as well as in the horizontal register (Fig. 30b)—the top entablature, the colonnade entablature visually cut by the giant order, and the base. But visible in this reconstruction are three interrelated elements not present in the Nerva Trajan woodcuts: relief panels with sketch figures in various postures, stone blocks, and the impost cornice Palladio calls “a little cornice [cornicietta] put at the sides of the temple on the outside.”109 This combination of molding and relief panel embedded within blocks, as in the second woodcut of this temple, corresponds to the innermost plane of Palazzo Valmarana’s ground-level bays, with its imprinting of “rustication,” its indented relief panel, and a molding that may be related to its third Tuscan order. So, extending Fagiolo’s initial analysis to another of Palladio’s reconstructions, the background layer of Palazzo Valmarana can be drawn forth, noting that in the fourth woodcut of the Temple of Nerva Trajan that depicted the full cella and the fourth woodcut of Temple of Antoninus and Faustina, there are also depicted arched openings of a colonnade (Fig. 31).

View full image +

Fig. 31. Andrea Palladio, Second Terrace Wall above the Roman Theatre in Verona, RIBA31840 XII/22v. Douglas Lewis, The Drawings of Andrea Palladio, 32.

In another reference to Antiquity, Wittkower cited Palladio’s reconstructive drawing of the triple-layered Second Terrace above the Roman Theatre (RIBA XII/22v) (Fig. 32) as a potential precedent in order to mitigate the “problematic architecture” of this background layer, claiming on behalf of the architect that “even for this building he reverted to classical antiquity, and found there, surprisingly enough, the justification for an extremely complicated interplay of wall and order.”110 This justification—which seems more for Wittkower’s sake (to allay his own disquiet) than for Palladio’s sake—still would not, however, provide adequate justice to the complexity of the third order in this palazzo. The Roman Theatre drawing is most certainly one additional apt citational reference, but its multiple layers are repetitive and unequivocal throughout, whereas what is particularly unusual in Palazzo Valmarana is the way this third order equivocally transforms within and without the wall along an aligned horizontal datum across adjacent bays (visible, for example, in Fig. 27a) into three modes of “structural” and “tectonic” figuration:

View full image +

Fig. 32. (a) Andrea Palladio, Palazzo Valmarana, Third order. Photograph by Marianna Mancini.

  1. In the central portal the vertical support shafts for the archway are smooth, as in the fourth woodcut of either temple, with Tuscan capitals (Fig. 32a, lower right). When mentioning this Tuscan order in his discussion of the remaining bays, Wittkower footnoted that “it is irregular for these Tuscan pilasters not to carry arches.”111 However, he neglected to note that they are carrying arches in the miniature full elevation depicted by Palladio in the first woodcut of the palazzo in Book II (Fig. 32b), carrying as well the arch of the entrance portal in both this roughly delineated small-scale elevation and the more articulated large-scale half-elevation in the second woodcut. As to the difference between these two elevations in this regard, what may be noted here between the miniature and the large-scale elevation (and in the extant building) is not only the shift from arched to orthogonally framed opening in the middle windows at the ground level but more significantly the associative alignment between the window capitals and those of the portal arch in the large-scale elevation (unlike the misalignment of window and portal capitals in the miniature elevation).

View full image +

Fig. 32. (b) Andrea Palladio, Palazzo Valmarana, Vicenza, half-elevation, woodcut, I Quattro Libri dell’Architettura (Venice, 1570), Book II: 16.

  1. In the bays between the portal and the end bay, the flanking window framings are topped with the same capital as the portal, but rather than smooth shafts this configuration has mutated into the aforementioned barely inscribed rusticated surface (Fig. 32b, lower center). Above these capitals are the rusticated surrounds of inset relief panels observed by Wittkower, the bottom part of which, as previously noted, retains the tracing of the angled voussoir of the Palazzo Porto piano rustico windows (those depicted in the I Quattro Libri on its exterior and in its courtyard, as well as those of the alternative façade study).

  2. In the third transformation in the end bay, it is the moldings of the capitals that are mutated, transformed into a continuous impost cornice (Fig. 32a, lower left)—which in the building makes manifest, as a double-band figuration, its resemblance to the upper two bands of the triple-banded architrave of the middle entablature. As a consequence of the insertion of this impost cornice, the lower end window is compressed and scaled down (as is the case in the previously mentioned end piano nobile window) with its surface-inscribed rustication now at the top as well as the sides. The relief panel of the middle bays disappears, leaving a mezzanine opening with the bottom part of its implied rusticated surround inscribed with, surprisingly, just the slightest trace of curvature. This inflected impression would seem completely inexplicable until one considers the possibility that it too is a trace of the arched openings of the piano rustico mezzanine windows of Palazzo Porto (again, as illustrated in I Quattro Libri both on the exterior and in the courtyard)—another form of conjoined accumulation, an autobiographical and genealogical impression, furthering the relational proposal of Gioseffi.

It should be noted that this triple accumulation of lintels (an impost cornice sandwiched between a top and a bottom pittabande) in the end bay is structurally triply redundant—“superfluous” and “confusing” (in Barbaro’s terms)—given that (1) any one of the three lintels would provide the appearance of an adequate span for the narrow lower window aperture, (2) for the narrow width of the entire bay the required span that would allow any opening is already “provided” by the mid-entablature and equally by the top entablature (had the latter not been compromised by the large aperture cut through it), and (3), as discussed, all of this “structure” is implied rather than actual—applied as an apparitional appliqué. It should be further noted that while the impost cornice is manifest as disjoined from its entablature as isolated bands of the architrave, disquieting as that may be, it is at least conceptually a manifestation of horizontal structure. Thus, even more disquieting is that those horizontal bands manifest as capitals in the other bays, in other words, are structurally inversive as vertical support—an equivocal re-structuring that was explored earlier in the century in the architrave-banded capitals (Figs. 33a, b) emergent from the mid-level entablatures designed by Raphael in Palazzo Alberini and by Giulio Romano in Palazzo Stati Maccarani.112 And now if we look back at Palazzo Valmarana’s mid-entablature we can observe that this conjoining of horizontal and vertical structure is enacted in a similarly literal manner, as this horizontal, architrave-like impost cornice transforms in the end bay—at the far-edge portion that is emergent under the soldier statue—into a whole version of the lower, partially portioned capitals present in the portal and central bays (Fig. 33c).

View full image +

Fig. 33. (a) Raphael, Palazzo Alberini. Photograph by the author.
(b) Giulio Romano, Palazzo Stati Maccarani. Photograph by the author.
(c) Andrea Palladio, Palazzo Valmarana, Architrave-capitals (lower left and upper right). Photograph by the author.

This third order thus remains intriguingly ambiguous and equivocal, as in the disposition of all the rows of orders within all the multiple layers of the palace, precisely if paradoxically by virtue of, initially, the clarity of their manifestation as separate layers and, consequently, only insofar as this separation is enhanced through the interaction of these layers. Thus, throughout this palazzo, the tectonic figurations are purposely designed to give the appearance of being layered over or under each other, in certain positions to supersede and even drastically intercede into each other, while in other positions to appear to be conjoined and interlocked together. The aforementioned suggestion that there is an additional area of dispositional conjoining in the middle-ground layer that emanates from this background layer is manifest in the building as the arched portal from the latter literally shifts into the datum plane of the former, even as visually it remains horizontally aligned with the background layer (Fig. 34a). These layers can now be conjoined together again (Figs. 34b–d), completing the sequence, which is animated in full in Figure 34e.

View full image +

Fig. 34. (a) Comparative Layering in Palazzo Valmarana axonometric and extended Temple of Nerva Trajan section, Shift of Background Layer Arch to Middle Ground Layer. Digital visualization by the author.

View full image +

Fig. 34. (b) Comparative Layering in Palazzo Valmarana axonometric and extended Temple of Nerva Trajan section, Foreground Layer interlocked with Middle Ground Layer. Digital visualization by the author.

View full image +

Fig. 34. (c) Comparative Layering in Palazzo Valmarana axonometric and extended Temple of Nerva Trajan section, Background Layer interlocked with Foreground and Middle Ground Layers. Digital visualization by the author.

View full image +

Fig. 34. (d) Comparative Layering in Palazzo Valmarana axonometric and extended Temple of Nerva Trajan section, Completed Façade. Digital visualization by the author.

Fig. 34. (e) Comparative Layering in Palazzo Valmarana axonometric and extended Temple of Nerva Trajan section. Animation by the author.

The form of graphic visualization Fagiolo initiated has fostered this further analysis here, in order to address these syncopated interlockings in the palazzo, thereby revealing how even more graphically interlocked Palladio’s imprinted demonstrations of his design of the palazzo were with his design of these temple complexes. Yet, as the reconstructions of Book IV followed the self-publications of Book II, one might ask the following question: beyond the extent Palladio’s reconstruction of antiquity influenced the design of Palazzo Valmarana, to what extent did the design of Palazzo Valmarana influence his reconstructions? Reverse-engineered as these signifying signs were—postreasoned, finished by disegno, in and through their media—each was in many ways a reconstruction of the other. This question may be asked, yet lacking further documentary evidence, never be answered definitely. Indeed, what remains evident and significant is the delineation of their shared coincidence and coordination.

While these shared coordinates initiated by Fagiolo’s hypothesis and technique provide thus far the most comprehensive set of correspondences regarding Palazzo Valmarana, even more extensively verifiable throughout the building than he initially noted, we should not look for single forms of attention in designers, given their complex personal and aesthetic biographies. All of the forms of analysis proposed by these authors in the Bollettino del CISA indeed should be taken into consideration in order to comprehend the complex and interlocked modalities immanent in Palazzo Valmarana, as well as to provide a more complex and interlocked portrait of Palladio.

We can, for example, look back at the 1556 edition of Barbaro’s Vitruvius, to one of Palladio’s earliest illustrations in print, his Reconstruction of the façade of the Roman House (Fig. 35), to observe another simultaneity of outside and inside due to the effect of media. What may be seen in the original—and in every quality reproduction of this illustration—is the implicit translucency of the inner courtyard view of the Roman House showing through as the section verso of the front façade recto (the courtyard inking in the first edition in the library of the Royal Institute of British Architects not only shows through but indeed bleeds through an approximately three-centimeter segment along the upper edge of the second-story courtyard doorway). Extending Fagiolo’s highlighting technique, a number of layered coincidental coordinates between the Roman House and Palazzo Valmarana may be noted, when both are scaled relationally to their respective giant orders. In the vertical register (Fig. 35b) these are, from top to bottom, (1) the rooftop statues and their supports, (2) the three giant-order columns on the façade that do not continue to the end bay, (3) the tall doorway frame from the courtyard between the giant columns in the piano nobile resembling the tall “hemmed-in” windows between the columns in the palazzo, (4) the shorter windows from the courtyard in the end bays of the piano nobile and the ground level, (5) on the ground level, the single-story columns from the courtyard, (6) regarding which, one of those columns is associated with a sectional cut of the beam above (and a pedestal above that in the piano nobile), resembling the figuration of the projective portion of Palazzo Valmarana’s mid-entablature and its pedestal support for its end statue, and (7) a courtyard arch associated with a giant column proximate to the central doorway. In the horizontal register (Fig. 35c), from top to bottom, there are (1) the top entablature on the façade, (2) the courtyard balustrades with their associated end supports, (3) the mid-entablature from the courtyard that appears as discontinuously sliced by the façade giant order, and (4) the bottom-most ground datum with the impression of the column pedestal plinths named variously, as noted by Schofield, by Palladio as orlo, plinto, and zocco.113

View full image +

Fig. 35. (a) Andrea Palladio, ‘Reconstruction of the façade of the Roman House” in Daniele Barbaro, I dieci libri dell’Architettura di M. Vitruvio tradutti e commentati da monsignor Barbaro eletto patriarca d’Aquileggia (Venice, 1556). Avery Architectural & Fine Arts Library, Columbia University. Photograph by the author.
(b, c) Comparative Vertical and Horizontal Layering in Palazzo Valmarana elevation and “Reconstruction of the façade of the Roman House.” Digital visualization by the author.

Fig. 35. (d) Comparative Vertical and Horizontal Layering in Palazzo Valmarana elevation. Animation by the author.

It would be difficult to believe that such an intended play of a graphic media-effect—as demonstrated by Gioseffi, Burns, and Fagiolo, or in this Reconstruction of the façade of the Roman House example—would have been operative in his work had Palladio not printed the half-elevation of Palazzo Valmarana in I Quattro Libri. Yet we can go even further back, as Beltramini has alerted us, to the earliest of Palladio’s personal and professional imprinting in graphic dimensional contraction and projection, through his teenage training in the role-modeling pattern recognition of his adopted artisan kinship in stonemasonry:

In his boyhood apprenticeship he learned to shape stone blocks according to two-dimensional drawings of their profiles, what in the Veneto was called sagome (“templates”)… . This “imprinting” enabled him to think “instinctively” in terms of projections on the plane, which embrace the third dimension without any need to draw it.114

What remains to be investigated here is how some seemingly distinct disciplinary scenes in Palladio’s life—difficult to separate if indeed they need to be—may be perceived in relation each to the other, as in a mise-en-scène, imprinted in an interlocking manner into Palazzo Valmarana: his education as a stonemason on construction sites, his professional encounters with Giulio Romano, his work on Barbaro’s Vitruvius and his own Libri, and especially his encounters with other artists and their various pictorial modes.

“Self”-Portrait in an Imprinted Surface: From Mise-en-Scène to Mise-en-Abyme

One question that can be asked, and addressed through documented evidence, is this: to what degree may Palladio’s encounters with various other pictorial modes in these personal and period histories be related to his own compositional and graphic techniques discussed thus far? Which of these encounters can be correlated as modes of signifying with specific built or drawn attributes as evidenced in Palazzo Valmarana and the later work? Which, in other words, may corroborate a transmedial effect in these designs as the signifying impress of mediated reasoning in these artifacts? And which—in spite of seeming to be obviously relevant—cannot?

In this regard, it would seem logical to begin by speculating on what Palladio may have seen in his five trips to Rome between 1541 and 1554, particularly in those buildings he cited in his two guidebooks published in 1554: L’antichità di Roma (The Antiquities of Rome) and Descritione de le chiese (The Description of the Churches), his first “authored” publications in print prior to the ones that he illustrated.115 These evident guides notwithstanding, paradoxically, as Howard Burns has acknowledged, “there is little information as to when he went and what he saw” in Rome.116 And given Margaret Daly Davis’s close reading of the text of these guides—with example after example confirming her conclusion that the works are little more than derivative summaries of extant literature—it is not at all certain that he actually visited all the sites cited in those volumes. Regarding Palladio’s book on antiquities, she states,

A number of Palladio’s general entries … were re-written from the ancient and modern sources at hand. A great many of the texts are abridged, some are repeated practically verbatim. Other whole entries have been quite literally lifted from the modern literature… . A thorough reading reveals no original material that might result from Palladio’s own archaeological investigations.117

As for the descriptions of architectural or pictorial features of these sites, there are only a small number of purloined and paraphrased passages (“compiled” is the word Palladio uses in his introductory “To the Readers” section) describing visual attributes in the antiquities, about which we should avoid taking him at his word, as the words he used are for the most part not his.118 Palladio does list some of the authors he is “compiling” in that introductory section, even if in the entries themselves he conveniently refrains from citing them, presumably so that this Antichità would be imprinted as di M. Andrea Palladio.

And almost thoroughly lacking in precise artistic description is the Descritione de le chiese—which mostly lists rather than describes such features as the number of indulgences and relics that may be found for each church—and which has similarly been identified by Margaret Daly Davis and by Eunice D. Howe as thoroughly derivative without even any citation by Palladio of his sources that he said he “succinctly compiled [brevemente raccolta].”119 Even if, or especially because, due to this ungracious subterfuge, Palladio had the title page imprinted with the phrase “With grace & Privilege for ten years [Con gratia & Privilegio per anni diece]” to again claim it, on that same page, as being by M. Andrea Palladio. In other words, at this point in his professional life Palladio sought to provide imprinted portraits of himself that established, as Davis has stated, “the credentials which justified his ancient name, Palladio, as an architect and man of letters—to be included among those followers of Bramante that he named [in I Quattro Libri]—one accomplished in building, architectural theory and in the study of antiquity.”120 The naming that Davis is referring to occurred in I Quattro Libri, but in L’antichità di Roma and Descritione de le chiese no architect as such is named, not even Bramante—the unnamed Tempietto is mentioned only as a “circular chapel” at San Pietro in Montorio. And, as for the description of the “Pope’s Palace,” which Davis has shown to be a “straightforward rewriting of Lucio Fauno’s description of the palace in his ‘Antichità di Roma,’” the Belvedere is cited only by name in passing but without description.121 It therefore remains unknowable whether Palladio had then observed Bramante’s already radical contraction of triumphal arch layers into an impressed surface. These two early publications of Palladio thus provide only an aspirational self-portrait, from a self that was still just compelled to compile from other selves then in print, without yet that imprinting process transforming his own self into a distinct portrait. So it is not surprising that, as Howe noted, not ten privileged years later but only “three years after its publication, Palladio’s Le Chiese was reissued without his name and with a different title”—and it should further be noted that while the new title is different from Palladio’s, ironically it is a return to the title of the 1550 publication, Le cose maravigliose, from which he “lifted entire passages.”122

Thus, for Palladio’s pictorial encounters, it is more productive to turn to those examples that can be actually identified and documented as such in his later writing, as well as one particular incident through which an especially notable painting is known to have been in his possession. Sixteen years after these first two guidebook publications, in Book II of I Quattro Libri, Palladio extensively cited the personal relation in his own works to other pictorial media incorporated into his palazzos and villas. For those wondering still whether Palladio felt that the fictive frescoes thoroughly coating the insides of many of his most significant residential buildings were contrary to the “pure taste” of his architectural conception, what is significantly evident, given the laconic (even, it may be said, parsimonious) descriptions of his own built work—which never exceeds, in the original punctuation, more than eleven sentences for any given building—are his effusive citation and praise, in the descriptions of ten of his palazzos and villas, of the many artists who had adorned them, including the “beautifully inventive paintings [pitture di bellissima inuentione] by Master Gualtiero, Master Battista del Moro Veronese, and Master Battista Veneziano [Zeolitti]” at Villa Godi and the “grotesque of beautiful inventiveness [Grottesche di bellissima inuentione] by Giallo Fiorentino” at Villa Badoer. Regarding the frescoes of Paolo Veronese at the villa Palladio designed for Daniele Barbaro and his brother Marc’Antonio, Burns has observed, “It can hardly be argued that the illusionistic ‘opening’ of the wall is alien to Palladio’s principles or taste: a similar approach is seen in the frescoes at the Villa Emo and the Villa Poiana.”123

Indeed, the inventiveness in these illusionistic frescoes extended beyond painted views of landscape to include an extraordinary range of trompe l’oeil, with multilayered depictions of figures and their shadows emerging from and receding into enframed spaces—layered under, over, and against real and painted tectonic figurations (Fig. 36a). A superimposed compositional method, which Fagiolo briefly noted in passing as a technique of “structure over structure or painting over painting,” that may be said to put into play not only the conjoined scaling of their viewing but the dynamic epistemological enactment of the conjoining of what is viewed with the viewer viewing.124 The facades of Palladio’s late works thus functioned, to use Fagiolo’s term, as “‘laboratories of meta-perspective experiments’ [laboratori di sperimentazioni metaprospettiche].”125

View full image +

Fig. 36. (a) Andrea Palladio, Villa Emo, Central Hall, Frescos by Battista Zelotti. Photograph by the author.
(b) Andrea Palladio, Central Hall, Villa Emo, Frescos by Battista Zelotti, detail. Photograph by the author.

In these frescoes—as in the façade of Palazzo Valmarana—the laying over or under of these pictorial, sculptural, and tectonic figurations are purposely designed in certain positions to supersede and even drastically intercede into each other, while in other positions they to appear to be conjoined and interlocked together. Some frescoes of Battista Zelotti—who “had worked with Palladio for almost 30 years in villas and palazzi in the Veneto” and, it has been proposed, had additionally assisted Palladio in preparing the print illustrations for his last two publishing efforts—are extant inside the palazzo.126 But given that these are circumscribed both to their extent (singularly in the Study of the Count) and to their flat delimitation within regular geometric panels framed by the stucco work—the figuration of which in some areas overlaps the frescoes but only coincidentally (in the nonsignificant sense of the term) without interlocking with them—the fuller range of the aforementioned dynamic operations is more productively exemplified in, for example, Zelotti’s frescoes at Villa Emo.127 Not only are those latter figurations multilayered to appear as spatially positioned into, of, and out from the wall surface, but certain figures—and the figuration of their shadows—are depicted as repositioning, as at Palazzo Valmarana, from one spatial layer into another layer. Such is the case in the reclining “sculptural” figures in the Central Hall, frescoed as being recessed back on top of the projective cornices of the wall dado, as well as the raking cornice of the pediments, but whose drapery, hands, and legs project out from and drape over these cornices (Fig. 36b).

View full image +

Fig. 37. Battista Zelotti, Allegory of Fame, Room of Hercules, Villa Emo. Photograph by the author.

Even more demonstratively in the Room of Hercules, positioned over the doorway leading back to the Central Hall, the Allegory of Fame (Fig. 37) is recessed seemingly within the frescoed casement as a framed “flat” portrait, only to have her head, right wing, leg, and Hercules’s club, his quiver, and his lionskin emerge from what should be their proper picture plane of containment to project outward in trompe l’oeil space. This repositioning is enacted as she dynamically leans and turns to lift her horn, extending it (and its shadow) out past not just the picture plane but its frescoed frame as well. Beyond this lateral breaking out past the frame, at the bottom of the scene the ordinates of the other figured projections become coincident with the surrounding tectonic environment. Fame’s emergent foot is poised upon Hercules’s quiver, which in turn is poised upon the short podium in front of the frame. Draped over this podium is the quiver’s strap and one of the lion’s front paws—the rest of its skin having draped down across the front of Fame’s pedestal to these lower positions. Projected downward and outward even farther, poised on top of the door’s cornice, in front of Hercules’s bow, is the head of the lion, posed as though resting on its other front paw. What may be perceived here is the play of emergence and submergence inside-out and outside-into the surface, how both the apparent separation of the pictorial layers of the fresco and the constructed, layered orders of the palazzo are drawn into a conjoining coherence through co-incidental exchanges between foregrounds, middle grounds, and backgrounds.

View full image +

Fig. 38. (a) Battista Zelotti, Central Hall corner, Villa Emo. Photograph by the author.
(b) Battista Zelotti, Central Hall corner, detail, Villa Emo. Photograph by the author.

In addition to these responsive repositionings of poised and posed co-incidence, in the Villa Emo frescoes certain proximate figurations are refigured to demonstrate a relational sharing of their manifest signification, as observable in the Central Hall corner sequence that features the frescoed bust of Antoninus Pius inset within an arcuated pediment, over which is positioned the scene of Apollo and Daphne (Fig. 38a). Demonstrative evidence of co-incidental equivocality and exchange—a conjoining through the imprinting of behaviorally related attributes—can be tracked as the bracket that supports the bust phase-changes its relation to the pediment. Starting from the bottom and proceeding upward: as with the base moldings interlocking the orders in Palazzo Valmarana, this bracket—inexplicably keystonelike given the barest of arching of the window frame—could be read as just pressed onto the bands at the top of the window frame and the wave-patterned frieze of the pediment. But the critical point of phase transition occurs at their combined moldings (cavetto, listello, ovolo) under the flat portion of the pediment cornice. At the sides of the window frame, these moldings are projected out co-incident with this cornice as supports for the pediment, but in the center the moldings are projected out past the cornice to crown the bracket supporting the bust, linking these differently scaled and ornamented mensole. This responsive enactment of the process of differentiating yet conjoining, conjoining yet differentiating, continues as the bust positioned in front of the pediment is framed by a scalloped shell inwardly set so far back to the extent of breaking the upper arcuated portion of this pediment’s cornice—another complex inversive interlocking of multiple layers decomposed and recomposed. Farther up the wall, positioned over Apollo and Daphne, is another figure that could be read as just pressed against the outer frame of the inset scene—the head of a satyr—seeming not just to be looming over but to be lasciviously leering at this pursuit of Daphne. Flanking this mythical scene of her transformation into a tree are vegetative festal garlands, suspended from goat heads by a tethering of ribbons (chromatically related to the picture’s bluish, chalcedony-like tones) that are shifted forward to swag across the outer frame and then shifted farther forward to conjoin with and crown as a decorative wreath—in that other sense of garland—this central, goatish satyr. A further transformational sequencing may be noted here: the egg-and-dart patterning on the bust’s ovolo molding is transformed above as clustered ovoid shapes on the inner frame of the Apollo and Daphne scene, which then are un-clustered to appear as dangling upon the satyr’s forehead—appearing in this garland crowning as a reflexive semblance of leaves, like the leaves in the flanking festoons and those emerging in Daphne’s branchings (Fig. 38b).

View full image +

Fig. 39. (a) Paolo Veronese, Villa Barbaro, Sala a Crociera. Web Gallery of Art.
(b) Paolo Veronese, Villa Barbaro, Sala dell’Olimpo. Web Gallery of Art.

Even more intensively reflexive in these buildings are the many metascenes, the “breaking of the fourth wall,” as, for example, in the painted figures appearing to emerge from behind doors to greet with a directed gaze the visiting viewers (Fig. 39a) or to peer directly down on them from a foreshortened balcony above (Fig. 39b) in Veronese’s frescoes at Villa Barbaro and Zelotti’s frescoes at Villa Godi and Villa Malcontenta, each with their play of contrastingly scaled figures and tectonic figurations.128 Each scale—the heroic and the human—is rendered distinctly, yet, as in the distinct contrasting scaling of the tectonic figurations in Palazzo Valmarana, designed so as to cohere through the co-incidence of their visual interaction.

View full image +

Fig. 40. (a, b) Battista Zelotti, Allegory of Painting and Allegory of Sculpture, Room of the Arts, Villa Emo. Photographs by the author.
(c) Battista Zelotti, Allegory of Architecture and Allegory of Music, Room of the Arts, Villa Emo. Photograph by the author.

The puzzling epistemological amusement regarding dimension and scale enacted in these trompe l’oeil frescoes—the fooling of and fooling with the eye—extends to the opposite range of representation in the dimensionally disquieting flattening to surface in the depiction of the sky in the Allegory of Painting and the Allegory of Sculpture in Villa Emo’s Room of the Arts (Fig. 40a, b). In contrast to the deep expanse of the sky with a tonal layering of clouds in the other two artistic allegories in the room, in Architecture and in Music (Fig. 40c)—that “illusionistic ‘opening’ of the wall” noted by Burns common throughout all the other scenic frescoes at Villa Emo—paradoxically in Painting and in Sculpture it is an anti-illusionistic rectangle of “sky” that is depicted. This effect is intensified due to the fact that, unlike the vegetative edging of the rusticated ruined openings in the former Allegories, through which the background sky is viewed, in the latter Allegories these depictions of sky are manifest without any dimensional depth in their apertures at all—such that a late modern viewer of this early modern scene might well perceive coincidental resonances with certain aspects of René Magritte’s modern paintings four centuries hence. This flattening of effect, which seems particularly puzzling given the evident sense of depth in these Allegories of the Painter and the painting she is painting, and the Sculptor and the sculpture she is sculpting, may be compared to the dimensional flattening of the risible rustication of Palazzo Valmarana, reduced to—or rather revealed as—a mere surface imprint.

View full image +

Fig. 41. Paolo Veronese, Portrait of Daniele Barbaro, detail, 1565–1570. Rijksmuseum, Amsterdam.

A more pointed and (literally) poignant comparison is the dimensionally indeterminate piercing of that palace’s three-dimensionally formed entablature moldings by the aforementioned upper aperture, appearing as flat as its imprinted representation on its page of I Quattro Libri. This in turn can prompt a recursive look back at Veronese’s Barbaro portrait, wherein, strangely present at the right edge of the painting, mid-level on the far side of the backgrounded column, is a figure of indeterminate dimensionality—an unsettling apparition hidden in plain sight, it seems, as the notice of which is even more strangely absent in the otherwise exacting commentary on this painting (Fig. 41). As high in height as both Barbaro’s face and the exposed portion of his facing book page, this figuration is positioned almost level with the former and—one would assume—behind the latter. One would, but should one? Where is this figure positioned in space? Were it a graffito impressed upon the column, then all of its horizontal lines should curve with the implied curvature of that column. If instead it is a free-floating orthographic diagram, why does its bottom edge seem to share the extremely distorted, foreshortened curvature of the column’s base moldings? And if it is a two-dimensional diagram, why does the shading of its moldings suggest a corporeal third dimensionality? These ambiguities may deceive us further as to the identity of its figuration. It would first almost appear to be a detailed profile of a Doric capital and its entablature, but it coincides with neither, nor in any precise way with any of the configured profiles depicted in Barbaro’s Vitruvius or in fellow Venetian Serlio’s Book III on ancient ruins. An ambiguous figure, unsettled thus—literally, figuratively, and figurally.129 As for Palazzo Valmarana’s ambiguous upper “window,” although its basic figuration as just an unframed orthogonal aperture cut into a bare wall surface is common throughout the representations of Palladio’s projects in Il Quattro Libri, there are no other occurrences of a window figure impressed upon other tectonic figures in that imprinted work—with the pointed exception of the aforementioned related instance in the Palazzo Porto courtyard. This aperature figuration thus also remains unsettled and unsettling, as evidenced by Beltramini’s apt observation that “a window is even opened in the entablature, almost negating its nature, as if it were a ‘spyhole’ revealing Palladio’s thinking.”130 Revealing not what Palladio thought (in the passive past sense and tense) but rather, with that active suffix, a process of thinking, manifestly signifying in the artifact, which because puzzling still instigates our ongoing active thinking—in this case not in spite of but indeed through its negation of what is supposed to appear as “natural” having been made apparent as artifice.

Lest it be imagined that such works, “controlled by reason and finished with drawing” in order to be so impressed by the Artificer as signs, thus remove any revealing sense or sensibility of an active unsettling unreason, one page after Barbaro’s statement on signification, in his commentary on the next chapter of Vitruvius’s Book I, he finds marvelous the play with reasoning that the controlled linking of artistic representation and optics enables: “So it is necessary that the architect knows perspective. But if it is considered as a part, in reference to practice, it is able to do wonderful things that deceive the eyes of men [riguardando alla pratica suol far cose merauigliose ingannando gl’occhi humani].”131 What is under consideration here is how reasoning thus was practiced as a discursively mediated impression—not merely in perspective but even and especially in the orthographic delineations of Palladio’s built, drawn, and printed work—such that it reveals how epistemological issues of visual deception and reception are manifest in this period.

View full image +

Fig. 42. Battista Zelotti, Allegory of Architecture and Allegory of Music, detail, Room of the Arts, Villa Emo. Photograph by the author.

And an even more evidently demonstrative, self-reflexive instance of delineated imprinting, in several senses, may be considered in Villa Emo’s Room of the Arts. There, in the Allegory of Architecture, is the frescoed depiction of a manuscript of I Quattro libri, open, as Beltramini observed, “to the page dedicated to the villa.”132 Architecture is the only one of the four Arts represented not in the act of their art (she is not drawing her plan) but rather in the act of pointing. Not to the resultant manifest architectural molding she props her book upon, not just to an isolated drawn sheet of a plan (as Titian posed Giulio pointing to), but to an imprinted representation, in other words, to its significance in the signifying media of the book (Fig. 42). Coinciding recursively, it may be noted, in Veronese’s portrait with Barbaro holding in his hand his fictively imprinted Vitruvius, open to its frontispiece presenting Palladio’s woodcut of his allegorical figure of Architecture.

View full image +

Fig. 43. (a) “Design for Fresco Decorations on the West Wall of the Salone of Villa Godi, Lonedo,” RIBA Chiswick 37. Lewis, The Drawings of Andrea Palladio, 154.
(b) Battista Zelotti, Central Hall, Villa Godi. Web Gallery of Art.

Palladio’s engagement not only with but in these trompe l’oeil modes has been proposed by Douglas Lewis, through his identification in the RIBA Devonshire Collection of a project drawing for Fresco Decorations on the West Wall of the Salone of Villa Godi (Fig. 43a), for which Palladio was paid on July 4, 1550, and in regard to which Lewis proposed that it should help “sweep away” reductionist arguments against Palladio’s participation in the design of those “fictive architectural frescos … full of illusionistic marvels.”133 In a subsequent article Lewis further identified some of the differences between this initial drawing and the finished fresco (Fig. 43b): the “horizontal cornice drops back in a central recession … and the whole entablature rises so much higher on the wall … that it is interrupted by the straforo, or grille to ventilate the vault of the loggia, which now comes directly into contact with the central carved gilt frame.”134 What may be further observed is that, in the initial drawing, each of the individual elements remains discreet and isolated from the others, with only the straforo appearing to break upward through the pictorial framing, albeit in fairly conventional ways, whereas in the finished work there are numerous co-incidental and conjoined illusionistic overlayerings. Not only do the trompe-l’oeil heads, limbs, drapery, and shadows of the painted figures overlay the architectural frames throughout this Central Hall, as at Villa Emo—multilayered as if to appear spatially positioned into, of, and out from the wall surface—but the frame of the straforo, as noted, is extended downward to cut and overlay the horizontal cornice with modillions (labeled as “cornise con modiglioni simile à l’altre”). And relationally, the “adjacent” figural gilt frame (labeled as “cartelon finto D’oro con figure”) is extended upward, not merely to come “directly into contact with”—if Lewis’s description were to be understood as a mere adjacency—but rather to overlay and appear conjoined with this straforo frame fictively acting as a supportive bracket.

If in the 1540s the tectonic figures Palladio’s workshop deployed in this drawing appear as conventionally discrete, isolated, and pure—as are the tectonic figures in the façade of Palazzo Porto—it is worth noting that after these intensive epistemological experiments in the pictorial process of signifying reasoning during the 1550s and 1560s, by 1570 Palladio is celebrating in I Quattro Libri these illusionistic paintings—which are indiscrete, conjoined, impure, as are the tectonic figures in the façade of Palazzo Valmarana—by proclaiming their inventiveness. What may be proposed is the effect upon Palladio of a media that was not his own (unlike the many Cinquecento architects who were painters and sculptors) but that had become so integral to his works, as he attests in Book II, not only with regard to Villa Godi and Villa Badoer, but also for Palazzo Chiericati, Palazzo Porto, Palazzo Thiene, Villa Malcontenta, Villa Emo, Villa Poiana, Villa Repeta, and Villa Thiene. In these buildings, the trompe l’oeil media of these Artificers signified not just through the demonstration of their reasoned signs but through a witty fooling of the eye enacted as “an ongoing interaction” right before our eyes, a demonstration of the mediated artifice—the cunning craft—of reasoning.

View full image +

Fig. 44. Daniel Barbaro, La pratica della perspettiva, Parte Ottava, 179.

As for valorizing the visual ambiguity of works that fool our eyes, Barbaro’s commentary on Vitruvius’s countercall for painting to imitate only “things that are,” from the latter’s diatribe against grotesques in the fifth chapter of Book VII, requires more careful attention, given that Barbaro has sometimes been too readily understood to side fully with Vitruvius. As evidence the presence of grotesques by Veronese in the ceiling of the Room of the Oil Lamp in the Villa Barbaro may be cited, even though some commentators have presumed to explain them away.135 Further evidence is the presence of grotesques in some of the section title pages of Barbaro’s later treatise, La pratica della perspettiva (Fig. 44), which, it might be suggested, were just standard decorative motifs of the time, were it not for the exacting graphic attention throughout this treatise and the fact that Barbaro’s multifaceted geometric figures appear right alongside the very vegetative human heads Vitruvius decries. More directly what may be considered is that even from the beginning of his commentary on Vitruvius’s diatribe, Barbaro starts to equivocate. What should be noted first is the distinction Barbaro makes in passing between Vitruvius’s opinions as being “easy [facile]” from how Pliny “sheds much light [ci da molto lume] on this subject.” Given that Pliny does not refer specifically to the grotesque, and given the easily read but narrow and dark view Vitruvius had of visual ambiguity, the light that Pliny may be considered to shed on this subject entails the much more expansive view he portrayed as its laudable range of effects. Examples include pictorial works that not only fooled the eyes of birds who sought after the painted grapes and the horses that neighed at the pictorial representation of their own kind but especially the trompe l’oeil fooling of human eyes. Pliny cites such instances as when Zeuxis tried to pull back the curtain he thought Parrhasius had used to cover a painting, only to discover it too was painted, or when in Apelles’s painting of Alexander the Great holding a thunderbolt “the fingers have the appearance of projecting from the surface and the thunderbolt seems to stand out from the picture,” or that self-reflexive gaze—spectantem spectans—of Famulus’s Minerva, “who faced the spectator at whatever angle she was looked at.”136 In the next lines of his commentary, Barbaro says he will leave to others their opinion of sophistry (the visual equivalent of which he claimed for the grotesque) and follows up by saying even fables have their purpose. Finally, and most significantly—contra Vitruvius, who sought after unambiguous signs in this chapter and his attempts in other chapters to over-correct for and thus stabilize the unreliability of vision “without room for equivocation”—Barbaro claims the “perfection of art” as is that in which “one comprehends what one doesn’t see, indeed, what the eye thinks it can see, but what it doesn’t see … on the horizon of our sight that is and is not.”137

Lest this statement—which may well be considered apposite as a description of the trompe l’oeil frescoes cited and celebrated in I Quattro Libri—seem ambiguous rather than as extolling the equivocal principle of ambiguity as the perfection of art, in the Fifth Part of his treatise on perspective (Fig. 45a) Barbaro further extols the aforementioned “bella, e secreta parte di Perspettiva” by focusing on various types of anamorphosis.138 Noting that “many ingenious perspectivists have discovered beautiful things,” in the first of the three brief chapters of this section, Barbaro stated that

Many times, with no less delight than marvel, are seen some panels or sheets of perspective in which, when the viewer’s eye is not placed in a determined point, what appears is something other than that which is depicted, but then, when viewed from its point, there appears that which was actually made according to the intention of the painter, be it an effigy of a prince, an animal, letters, or whatever.139

In the second chapter of this section, Barbaro describes how heads may be projected to appear “stretched and pulled out” so that they “won’t look like heads to you, but rather, like straight and curved lines” without any rule or form (senze regula e forma alcuna), but when seen from the point of projection will re-appear in their initial form (pareranno formate).140

View full image +

Fig. 45. (a–c) Daniel Barbaro, La pratica della perspettiva, Parte Qvinta, 159–161.

Barbaro’s first of two illustrations in this section (Fig. 45b) does not depict a head but rather shows how the outline of a simple geometric pyramidal form can be deformed, indeed distorted beyond recognition. But in the final chapter there is an astonishing drawing of a face in profile whose individual parts are, interestingly, undistorted (Fig. 45c). What is notably astonishing and interesting is not just that it is drawn in a quick-sketch style (in contrast to the more exacting geometric and anatomical depiction in every other illustration of this treatise) but that its recognizable undistorted parts are disjoined—the chin separated from the nose separated from the forehead—suggesting the perspectival potential for both conjunctive and disjunctive re-cognitions. Barbaro described this process in detail:

if you make the forehead of a figure in one place, and the nose in another, and the chin likewise in another, such that the end of the forehead is b, the beginning of the nose is a, the end of the nose c, and the beginning of the chin d, then when looking at the figure from the proper point it will appear that b is conjoined [congiunto] to a, and d to c. But when looking at the figure from anywhere else, the distance and space between one part and the next would be seen, and it wouldn’t be recognised that the painting represented a head; instead the nose would appear to be one thing and the forehead another, especially if the painter knew how to hide the shape of the nose with some other similar shape.141

If these forms of perspective can be used to de-form and re-form any signifying figures, as Barbaro says, “be it an effigy of a prince, an animal, letters, or whatever,”142 we can re-form this face (according to the relational coordinates prescribed by Barbaro in the Eighth Part of the book, which treats “the measures of the human body”), both as a comparative side-by-side view (Fig. 46a) and as a series of sequential steps (Figs. 46b–e, animated in Fig. 46f).

View full image +

Fig. 46. (a) Daniel Barbaro, La pratica della perspettiva, Conjoined Figure (Side by Side Recomposition). Digital visualization by the author.
(b–f) Daniel Barbaro, La pratica della perspettiva, Conjoined Figure (Sequential Recomposition). Digital visualizations by the author.

Fig. 46. (f) Daniel Barbaro, La pratica della perspettiva, Animation of Conjoined Figure (Sequential Recomposition). Animation by author.

What is demonstrated in either of these techniques, what makes them (in Barbaro’s words) delightful and marvelous is that signification—the act of creating a signifying effigy appearing and dis-appearing as a re-cognizable sign “according to the intentions” of the artist—is not a given but rather a performative process.143 And lest, in Barbaro’s revised 1567 edition of Vitruvius, the absence of his previously cited statement in Book I regarding how perspective is “able to do wonderful things that deceive the eyes of men” suggests a change of his mind, perhaps even more astonishing in this later treatise, published the following year (in 1568), is Barbaro’s intensified insistence of the imperative of the process of visual deception in these examples, stating that the painter “can and even must deceive [può & deue anche ingannare], cutting and separating the lines that should be straight and continuous, so that away from the proper point of view is not shown that which appears from the proper point.”144:

It should be noted that again the word congiunto is used here, conjoining “the distance and space between one part and the next.”145 The delight comes from separating the parts in order to perceive the act of their conjunctions and disjunctions. It may be proposed that what is enacted at the junctures of the separate layers of Palazzo Valmarana—the middle-ground small Corinthian order and statue joining the foreground giant order at the ends of the building, the background Tuscan order conjoining with the middle ground in the central portal—is a not dissimilar demonstration both of the space between one part and the other and, from certain perspectives, of their conjoining. This perceptual shift is augmented, even if in a much more limited way than in the most well-known pictorial anamorphic examples, by the fact that one approaches the building quite obliquely due to the narrowness of the street and is thus able to perceive the building only straight-on in elevation, one portion at a time.

As for Barbaro’s interest in these techniques, Cosimo Monteleone has speculated that when Barbaro was Venetian ambassador in the English court from 1549 to 1551, “he probably viewed some curious perspective effects, such as the anamorphic skull in Hans Holbein’s The French Ambassadors and the Portrait of Edward the VI.”146 But closer to the production of La pratica della perspettiua, circulating through Venetian circles literally through the agency of Palladio—to Alessandro Vittoria, a sculptor to whom the fireplaces at Villa Barbaro have been attributed147—was an even more pointed example, one that combined the two techniques Barbaro described in Parte Quinta. Just a few years prior to the design of Palazzo Valmarana, Palladio had in his possession for a limited time what has been considered by many as one of the crucial works of mannerist painting, Parmigianino’s Self-Portrait in a Convex Mirror (ca. 1524) (Fig. 50). As observed by Beltramini, this painting was originally in the hands of Pietro Aretino and subsequently the collection of Valerio Belli:

One day in January 1561, having dined with Francesco Pisani and Alessandro Vittoria, Palladio sold the painting to Vittoria for ten scudi. It’s known from Vittoria’s diary that Andrea acted on behalf of Elio Belli, Valerio’s son and heir after his father’s death in 1546. One would hope that this was not merely the act of a go-between; perhaps it indicates that this mesmerizing portrait . . . remained for a while in Andrea’s hands after Valerio Belli received it from Pietro Aretino.148

That this “famous painting passed through his hands,” even with documented evidence, of course proves in and itself nothing regarding its influence on his work.149 Palladio may have been acting merely in the capacity of a courier or go-between without ever, unlikely as it may seem, having unpackaged the artifact he was conveying, neither back in his own home nor in his workshop nor while dining that day with his very significant patron (Pisani) and collaborating artist (Vittoria, who had worked not only on his tablemates’ Villa Pisani but on Palazzo Thiene as well).150 But indeed the possibility of Palladio’s rather extended awareness of this painting may be proposed, given that, as Beltramini noted, “a key place for Andrea’s education in Vicenza was certainly Valerio Belli’s house on the Strada Maggiore,” the famous collector and engraver Valerio Belli Vicentino being “one of the most significant links between the Veneto and Rome in the early decades of the sixteenth century,” as conveyed in his Life (in both editions of Vasari’s Le vita).151 In fact, it was in that very house that this son of the stonemason Pietro della Gondola first attempted to legally drop his family name and adopt the artistic pseudonym of “Palladio.”152 The painting’s pride of place in Belli’s collection may be underscored by the mention in Parmigianino’s Life, in both Vasari editions, that its provenance passed sequentially from the artist to Pope Clement VII to Aretino to Belli.153 And thus subsequently from Belli through the conduit of Palladio to Vittoria. Consequently, if we consider Beltramini’s hope in the form of a hypothesis, then what may be suggested as significant is not so much how long this disquietingly distortional Self-Portrait remained in Palladio’s his vision and hands but rather to what degree its mediated self-referential manner—more than its most extreme distortional aesthetic—remained in his vision and in the instrumental action of his hands engaged in his own media, through the instruments of stylus, compass, chalk, pencil, pen, and brush. In this regard it may be proposed that it did so long enough to help us perceive some relatable attributes, some shared senses and sensibilities, not only with what Palladio’s advocate Barbaro found so compelling about such mannered “perspectives,” not only with the trompe l’oeil frescoes by others in Palladio’s interiors, but with what Wittkower found most disquietingly mannered on Palazzo Valmarana’s exterior.

View full image +

Fig. 47. Parmigianino, Self-portrait in a Convex Mirror. Kunsthistorisches Museum Wien.

Following Burns, it may be suggested that given the illusionistic play of the trompe l’oeil frescoes in Palladio’s buildings, it could hardly be argued that the illusionistic play of Parmigianino that remained for a while in Palladio’s hands was alien to his principles or taste. Vasari describes how Parmigianino sought to “investigate the subtleties of art [investigare le sottigliezze dell’arte]” by portraying himself as seen “in one of those convex barbers’ mirrors,” consequently seeing

those bizarre effects made by the roundness of the mirror on the curve of the beams of the ceilings, causing them to twist, and on the doors and other parts of buildings, which recede in a strange way… . And as all the things near to such a mirror are magnified, and all those away from it diminished in size, he showed a hand that is busy drawing, quite big, as the mirror reflected it, and so beautifully done it seemed absolutely real.154

With this self-portrait, Parmigianino established a most exaggerated mise-en-scène, exaggerated by transforming the smooth transition in scale from foreground to background that one would expect in Cinquecento perspective into three distinctive and disjunctive zones, which through their layering paradoxically establish an intriguing, albeit unsettling, distortional relation to each other:

  1. an enlarged foreground of the artist’s bulbous wrist and hand and unnaturally elongated fingers;

  2. a normatively scaled middle ground of his upper torso and face, which nonetheless on the right side reveals the uncanny depiction at its concave edge of a small convex portion of a gilded frame, such as this very painting will be and subsequently has been placed into—a doubled enframing of inside and out as well as space and time (indeed triply recursive and resonant with the gilded ring on the foregrounded smallest finger positioned nearest to the bottom edge of the frame); and

  3. a torqued background with its distortional exchange of scalar relations, as the side window on the left edge increases in scale such that it appears to be inserted up into the curving horizontal structure of the ceiling, while the back doorway on the right edge decreases to the size of the adjacent aforementioned convex frame.

With regard to the two techniques Barbaro described, what is particularly intriguing about this painting is that it is distortional and disjunctive. It is separated into layered parts and is conjoined at interface junctures between these layers as a way of cohering those parts in shifting scalar tension. Unlike the binary alternating viewpoints of standard anamorphic figurations—normative from one point of view, distorted from all others—this painting performs both states simultaneously. That all the figurations in this painting—hand, face, frame, window, ceiling, doorway—remain recognizable even in their most intensive scalar distortion facilitates that these figural attributes may be able in turn to be re-cognized, rethought and reconfigured in new relational modes.

These surprising shifts of scale in Parmigianino’s Self-Portrait enhance its exaggerated, self-reflexive enactment of portraiture. While some self-portraits include the artistic instruments of depiction, far fewer show the act of depiction (say, in front of a model), fewer still the very recursive act of directly depicting themselves depicting themselves (say, in profile or from behind, in front of a mirror). Most significantly, Self-Portrait in a Convex Mirror—through its representation of a self in the act of representing a self directly onto its pictorial surface—may extend the sense of Fagiolo’s initial term mise-en-page beyond a spatialized mise-en-scène into the metanarrative framing of a mise-en-abyme. I use this term principally not in the sense of a self-same reflection into an implied infinite regress, as in certain heraldic coats of arms. Nor to refer to the concentrated, inter-nested version of an image or a narrative as a tale-within-a-tale, as in the story of Cupid and Psyche in Apuleius’s Golden Ass (which Raphael and Giulio had frescoed four and five decades earlier at Villa Farnesina and at Palazzo Te, respectively). Nor similarly to the sense of a play-within-a-play, as it manifests four decades later in Shakespeare’s Hamlet—even if Fagiolo suggested that Palazzo Valmarana is a palazzo story layered over a villa story (less convincingly than similar claims that may be made for Palazzo Chiericati). Rather, regarding the implied question that Beltramini’s statement of hope incisively raises, if we are to remain attentive to the lessons Palladio may have learned from this self-portrait, then what is portrayed in this particular self-reflexive artifact is the very process, the very performance of the work, such that the mediated process of its artifice is enacted in and through the media of the artifact. In other words, there is a self-conscious exposing of the medium through which the Artificer demonstrates not just the artifact but the exaggerated reasonings in the production of the artifact, which is evident as well in the different modality of the aforementioned trompe-l’oeil frescoes of Zelotti and Veronese. Indeed, the multilayered mise-en-scène of Veronese’s portrait of Barbaro may now understood as a recursive mise-en-abyme. Beyond the portrayal of Barbaro and his book, Veronese’s painting is a self-reflexive portrait of the mediated process of signification.

The same self-reflexiveness might mistakenly be said of every building built from its drawn representation, but most significantly the reflexiveness in the case of Palazzo Valmarana resulted not just in a replication of a drawn artifact at a larger constructed scale, but rather, what is reflected in its façade is an imprinted surface developed in and through the re-presentation of media effects in an exaggerated, even distortional manner—in a manner, as noted, that many commentators, in many centuries, have found disturbing.

These distortional disturbances are designed into these artifacts. Vasari states that Parmigianino’s hand is beautifully drawn, but it can hardly be said to be beautiful in the aforementioned “pure taste” of later neoclassical sense and sensibility. The actual Vasari phrase describing this foregrounded “hand that is busy drawing” is “poco grande.155 George Bull “mistranslated” this phrase as “quite big” rather than “a little large,” but in so doing Bull was more accurate in his descriptive translation of its visual attribute than was Vasari. Not only is that hand quite big, indeed in terms of normative bodily proportioning it is quite ungainly, double-scaled in length in relation to the scale of the middle ground, revealing a crucial and particularly pointed contrast between what Vasari described in this middle-ground layer as the artist’s “very gracious [grazioso] face and aspect, more like those of an angel than a man.”156 Pointed too is the painting’s deliberately “awkward” exaggeration of the enlarged center foreground in contrast to the compressed background at the right edge. Relating some shared attributes of the painting and the palazzo, it may be observed, as noted by Wittkower, that the scale of Palazzo Valmarana’s foreground and background layers are exaggerated in contrast with its middle-ground layer—“enormous” and “bulky” are terms Wittkower used for elements in the enlarged foreground, while the compressed background order was termed “minute.” The layered mix of the “awkward” and the “gracious” at Palazzo Valmarana was conveyed by Temanza, who cited its “beautiful Attic” as well as its “magnificent façade” that nonetheless “must be subjected to the criticism of learned architects [che va soggetta alla alla Critica de’dotti Architetti]” for the aforementioned “structurally” awkward ir-resolution of its corner.157 As for its major order, it should be observed that all the other buildings with giant orders constructed by Palladio face open urban spaces and thus, it might be argued, warrant the exaggeration of their scale, while on the narrowest of side streets in which this palazzo is situated the giant order appears more than a poco grand, all the more exaggerated in their scaling by being elevated on pedestals about as tall as the soldier statue with his back to the wall, yet almost twice as tall as any human passerby (Fig. 48).

View full image +

Fig. 48. Andrea Palladio, Palazzo Valmarana, comparative scaling of human and tectonic figures. Photograph by the author.

Nonetheless, this temporary transfer of Parmigianino’s painting through the conduit of Palladio could be seen as just a coincidence of the mere sense, rather than a particularly significant encounter with another self-reflexive medium in a related register to the trompe l’oeil frescoes, were it not for certain shared coordinates with Barbaro’s evident fascination and valorization of such techniques in his treatise on perspective, which was in preparation during the design of Palazzo Valmarana and the Loggia del Capitaniato. And while one should hardly expect, as a consequence, to find exact one-to-one transmedial formations in Palladio’s works, an additional number of similar attributes and modes of engagement in both buildings were observed by Wittkower, notably the extension of apertures up to or into horizontal structure as well as extreme plays of scale. Regarding the former attribute, he stated how “remarkable” it is in the Loggia that on the front façade “the windows are cut through the entablature” (Fig. 49a) and that on the side façade the upper serliana “almost cuts the entablature in two” (Fig. 49b)—which he tried to explain by stating that the “breaking of the entablature by the arch in the first storey was authorized by the side front of the triumphal arch at Orange”— and, as already mentioned, he noted that in Palazzo Valmarana the “window frames touch the entablature.” Indeed, in his concern about the lack of coherence in the latter building, even prior to mentioning the end caryatids, he begins by stating that the “system” of the palace “is not only broken into and interrupted by the extravagantly high entrance, but also by the complete change of treatment of the two end bays. Here the windows are framed differently and are different in height.” That difference of framing and height is the compression in scale of the end windows, and thus what may be observed in the half-elevation, as in Parmigianino’s painting, is the increase in aperture scaling on the left edge pressing against upper horizontal structure and the reduction in aperture scaling of the right edge. Regarding this second attribute of intensely contrasted scaling, Wittkower noted similar plays of scale (as mentioned) in Palazzo Valmarana—“An unequal, typically Mannerist, competition arises between the slender profiles of the windows and the bulky mass of the pilasters… . The relationship of the giant composite order to the small Corinthian order is repeated in the relationship of the Corinthian to the Tuscan pilasters.” And in the Loggia, he noted that the “very heavy balconies are carried by small cornices of their own under which hang isolated triglyphs. Such reversal of classical usage … had become almost a stock feature of Mannerist architecture… . In addition, the small scale and flatness of these decorations is in remarkable contrast to the large-scale architecture in heavy relief.”158

View full image +

Fig. 49. (a) Andrea Palladio, Loggia del Capitaniato, front façade, center bay, window cutting into the entablature. Photograph by Marianna Mancini.
(b) Andrea Palladio, Loggia del Capitaniato, side façade, Serlian window cutting into the entablature. Photograph by Marianna Mancini.

Here in the Loggia we return to the question we might ask ourselves as posed in the building regarding the manner and media of entablatures and their projection. While on both sides of the building there are complete conventional projective entablatures, in these front balconies we have, as in the courtyard of Palazzo Valmarana, yet another example of a disjunctive projection. The linked cornice and the triglyphed beam-ends project out (mirroring the triglyphs of the projective lower Doric entablature of Palladio’s Basilica directly across the piazza), but what would have been assumed to have been the balcony’s associative architrave is curved and shifted away as the archivolt of the open archways, non-projectively remaining back within the main façade surface.159 This separation, both in elevation and in section, exceeds even the sectional disjunction of the Palazzo Valmarana example. We can further extend and relate Wittkower’s noting of the remarkable contrast between the small-scale/light-relief of the Loggia’s decorative figures and the large-scale/heavy-relief of its architectural figures, in the front flanking bays. What separates and conjoins and thus seemingly supports through transmission these weighty stone projective triglyph blocks to the non-projective curved brick architraves are—one must pause here because what follows is such an unreasonable abuse of reasonable structural appearances as insisted upon by Palladio in Book II—overturning water jugs in low stucco relief (Fig. 50), while in the central bay they are “supported” by nothing more than the stucco depiction of even more “bewildering” background fluidity. Whatever the iconographic sense that Wittkower proposed regarding this residence for the Venetian Republic’s military chief—citing the contemporaneous celebration of “Lepanto, the decisive sea-battle against the Turks won in 1571” and “heathen libations”—the very scalar contrast that he stated belies any conventional structural sense. Indeed, it would have seemed impossible to imagine such a seemingly dimensionally disjunctive enactments by Palladio were it not for the considerations of the mediated play of dimensionality in the drawings and printed publications, in the trompe l’oeil frescos, and it should be noted, precedents at Palazzo Te such as the Room of Psyche, wherein massive brackets are “supported” by painted vegetative trellises (Fig. 51).

View full image +

Fig. 50. Andrea Palladio, Loggia del Capitaniato, front façade, end bay, stucco-relief overturning-vessel “supporting” balcony bracket. Photograph by Marianna Mancini.

View full image +

Fig. 51. Giulio Romano, Room of Psyche, Palazzo Te, Mantua. Vegetative trellis “supporting” ceiling bracket. Photograph by author.

What may be noted with regard to this scalar play of projective dimensionality relative to Parmigianino’s painting is not only the otherwise surprising changes of scale of the orders from the front façade to (and within) the side façade, but in the latter the “reason” the arch appears almost to cut “the entablature in two” is that this architectural figure is impressed as sub-merged not only physically into the background surface of the building but visually submerged as well in the same whitened tones as the “bewildering maze of stucco reliefs,” while the similarly toned large-scale sculptural figures atop the projected corner entablatures appear to emerge out from these background smaller-scaled “decorative” figurations.

Further comparable attributes may be cited between the Palazzo Valmarana and the painting: in relation to the shifting of figurations between layers at the palazzo—as with the middle-ground layer Corinthian order enlarged by the “soldier” shifted into the giant-order foreground layer—it may be observed in the painting’s mise-en-scène how the shift of Parmigianino’s hand forward from the middle-ground, regularly scaled layer to conjoin with the distorted foreground layer resulted in its “grande” scale. And as for the background layer, in the palazzo the “extravagantly high entrance” that is “carried” by the Tuscan pilaster is shifted to the middle-ground layer, while in the painting one can perceive not only how the elongated curving window on the left is positioned forward to conjoin with the middle ground and not only how the diminished doorway on the right, while still in the background, is positioned pointedly adjacent to the middle-ground partial profile of the gilded frame in the scene, but just how closely the calibrated curvatures of the window and this frame self-reflexively approximate the “grazioso” profile curves of the head of this self-portrayer.

Following Barbaro, it may be said that this painter and this architect could and, indeed, did deceive our eyes by interrupting and separating lines that ought to be straight and continuous, and that their figures could be and in fact were broken up with some parts separated from others so that they appear to conjoin together again even when they are looked at not obliquely—as in the usual examples of anamorphosis—but rather directly. Directly because, as with the trompe l’oeil frescoes in Palladio’s buildings and his drawn and printed elevations, the spatialized ambiguities of simultaneously separating and conjoining layers are effects intrinsically generated through those orthogonal media techniques.

Having noted a number of co-incidences of conceptual and formal properties between Parmigianino’s painting and some of Palladio’s works, it should be stated with regard to this hypothesis that it is not necessary to imagine, given Palladio’s particular set of tectonic figurations, that he would duplicate the more extreme anamorphic distortion of this convex mirrored image—even as Palladio layered distinctive and differently scaled foregrounds, middle grounds, and backgrounds into the relief surface of many of his later façades, creating ambiguous visual relations through their relational layering. As for that other perplexing project of this period, the Loggia del Capitaniato, to whatever degree Parmigianino’s painting may have provided some direct or indirect influence on that design—which might help explicate the otherwise inexplicable curving of the horizontal structural figure of the architrave as well as the aforementioned windows on both façades that even more assertively cut up into their entablatures—each of its individual tectonic figurations is composed within Palladio’s regular geometries, even if as a whole the resultant layered building is among the most irregular of his works. As noted by Tafuri, “Palladio’s severe archeology defined precise limits and boundaries for the discursiveness of architecture. The issue was the identification of a ‘logic of discourse’ verified through history… . The exception … was ‘measured’ within that logic; it became comprehensible and communicable thanks to its limits, turning into a ‘verifiable distortion.’”160 Among the reasons why these late works may be considered exceptional is that their verifiable distortions are not exceptions to the rules but exceptions in relation to and within the logics of their rules—enacting their distortional transformations in and through their mediated transhistorical imprintings.

Thus, even given Parmigianino’s verifiable distortions, it is not necessary to imagine that this painting was the sole instigator of Palladio’s more complexly layered and scaled engagement in his late work. At most one might consider that this intensive Self-Portrait provided some transmedial catalytic capacity, but in that manner it could only have such an effect to the degree that certain of its modes—and certain modes of the trompe l’oeil frescoes—coincided and conjoined with the graphic, pictorial, and tectonic modes already evident in Palladio’s experience and production, allowing for an intensification of Palladio’s own architectural self-portraiture imprinted into his work later in his life. In that case, what may be suggested is that it is not so easy to separate these phases of Palladio’s work so distinctly, that the impress of porticos and pediments and other such elements onto, into, and out from the diverse range of his buildings had been an operating principle throughout, but that after his first illustrated work for the printing of Barbaro’s Vitruvius, the manner of this layered impress and imprint becomes more self-reflectively explicit.

View full image +

Fig. 52. Andrea Palladio, Sketches for the City Hall, Brescia. Lewis, The Drawings of Andrea Palladio, 221.

It may also be suggested it is not mere chance that, within the same period Palladio is literally in contact with Parmigianino’s Self-Portrait, the sole example of a drawn self-portrait by Palladio is the sketch of his hand at the bottom of Sketches for the City Hall, Brescia (Fig. 52), a series of studies that included a level in the city hall that Burns described as being “whimsically crowned by a Belvedere.”161 Even if for both of these examples it has been proposed that it is not a representation of the hand that is actually drawing, this co-incidence of expressed attention to that instrumental part of the anatomical self is a sign—even whimsically expressed in the case of Parmigianino—meant to signify the very act of signification. It is the hand’s ability to hold the instruments that impress signs, or to hold the medium that is being so impressed (as Lewis surmised may have been the case with this depiction of Palladio’s hand).162 Or to hold the medium that has been impressed, as in the figure of Architecture in Zelotti’s fresco at Villa Emo and in the figure of Barbaro in Veronese’s painting. And the ability to impress as an epistemological instrument itself by demonstratively pointing—as Alberti stated in On Painting and, as mentioned above, the figure of Architecture at Villa Emo does as well—to what is most impressive and significant in a given scene of representation.

In any given representation, as Vitruvius had already lamented in the second chapter of his Book VI, “our sense of vision does not seem to produce reliable results, and the mind is often misled by it to arrive at faulty conclusions; in painted scenery, for example, there appear to be columns that project, mutules that jut out and figures of statues that stand forward, when the picture is obviously flat.”163 What is explicitly and self-reflectively enacted as a dynamic process in Parmigianino’s portrait and the trompe l’oeil paintings of Palladio’s villas is that the epistemological ambiguity evident in our sense of vision of any representational scene is re-presented as a fabrication—intensively exaggerated well beyond that basic optical phenomena observed by Vitruvius. As noted, Ackerman posited that for Barbaro the act of signification “suggests an action and, still more, an ongoing interaction, a process,” and what is manifest in the play and performance of these various pictorial works—and on the impressed façade of Palazzo Valmarana—is the enactment of the very interactive process of signification, the utilization of media to convey the trans-action from signified to signifier and back again. The paradox of Parmigianino’s painting and the trompe l’oeil frescoes and Palazzo Valmarana is that their verifiable distortions—their conjunctive and disjunctive overlayerings—short-circuit the connection between eye and mind in the assumed smooth transition of representational mimesis by exaggerating the misleading unreliability of perception noted by Vitruvius. This paradox is the epistemological wisdom inherent in the wit of these works, allowing us to perceive our own acts of perception, the ways our minds lead and mislead us.

For many of the most noted architectural artifacts of the Cinquecento, with their applied and implied structural depth within a shallow surface, one could just as well replace Vitruvius’s observation on how our vision produces unreliable results and misleads the mind into faulty conclusions with the following paraphrase: “in built surfaces, for example, there appear to be columns (as pilasters) that project, (applied) mutules that jut out, and figures of statues (in relief) that stand forward, when the façade is obviously flat (and nonstructural).” Yet neither the applied nonstructural orders in antiquity on the arched Coliseum nor most Cinquecento nonstructural stucco-cover brick orders applied to palazzos nor the modern applied nonstructural I beams on Ludwig Mies van der Rohe’s Seagram Building reveal themselves as structural trompe l’oeil to the degree that the nonstructural orders at Palazzo Valmarana do. This palace façade, Parmigianino’s Self-Portrait, and the trompe l’oeil frescoes in Palladio’s villas are artifacts that put into play the truth of their appearances as an active process by making explicit their fabrication—fabrication in the same double sense as artifice: made as a constructed condition and made up as a re-constructed fictive formation. As previously noted, Gioseffi proposed that a given resolution in Palladio’s work could be attributed to the “conventions inherent of the chosen graphic notation system, more than any ‘semiological institution.”’ But it may be claimed that what is equally (not more, not less) notable about the structural trompe l’oeil of Palazzo Valmarana is that it reveals its play with the re-constructed semiological institutionalization of antique structural signs acting as present-day signifiers, which he and Barbaro were hoping to fabricate and imprint through their revised language of antiquity in the Veneto during this time.

These imprinting initiatives to revise the cultural language of the Veneto may bring further to mind de Saussare’s observation that the relation between the signifier and the signified in sound-images is radically arbitrary, as different sounds in different languages are used to signify the same object.164 Although distinct in character, there remains a relative (if circumscribed) arbitrariness with regard to visual-images in architectural language as well, the fundamental condition of which is always revealed in the identity battles of architectural style as to which, for a given homeland or period, may be said to be the true representative signs—as in the Veneto in this period, which required the concerted and often unsuccessful efforts of Barbaro and Palladio in their various media and mediated campaigns—to impress their Romanist signs over local Venetian signs already in place.

In the late work of Palladio, the very media of the design process instigates the development and manifestation of not just what these identities signify but how they signify. Not only how we know them—not as given but rather as constructed identities—but how they re-present and perform that knowledge. The inventiveness of these buildings involves how they enact, within the work, that dynamically unsettling aspect of the process of knowledge (and its signification) that is the act of doubt. Doubt in fact is the very subject of five sonnets included in one of the earliest publications of Barbaro, cited by Tafuri for their reflection on the ongoing interactive process of knowledge: “He who before judgment puts / his heart in doubt, appreciates what is true… . Doubt is the father of invention, / because it awakens languid thought; / Doubt punches, lashes and makes light of / Those who slow and lazy seek the cause.”165 At Palazzo Valmarana this interactive processing involved, to use Burns’s phrase, Palladio “willfully and creatively” putting into cognitive play the performance of its cultural, material, and structural construction. The assertive doubt at the basis of those constructions—manifestly signed on its front façade—has certainly awakened and disturbed the thoughts of critics since, particularly those seeking singular casual explanations.

Twenty-five year later, when Palazzo Valmarana was under construction, the operative principle of doubt returned in Barbaro’s Aristotelian commentary on the concept of disposition in the previously cited second chapter of Vitruvius’s Book I, where it is even spatialized as an epistemological concept:

Doubt is placed halfway between affirmation and negation. When thus the intellect is between the yes and the no, it forms a doubting proposal, which is called question, or inquiry. It uses some particles that demonstrate the method of interrogation, and requires a response. Examples are “Are you good or not?,” “What is goodness?,” “Where does it come from?,” “To whom is it given?,” and other similar things and ways. These, not lending themselves more to affirmation than to negation, require a certain and indubitable answer, which cannot be well made except by those who have invention through thought, industriousness, and lively ingeniousness.166

Barbaro stated that this method of dubitable interrogation requires an indubitable answer, however in the case of Palladio’s late buildings, while it may be asked, as critics and historians have, “Are these works good or not?,” “What is architectural goodness?,” “Where does it come from?,” and “To whom is it given?,” it may be proposed that it is the thoughtfulness of these works that they pose rather than answer such questions. In other words, if, as finished buildings, they would seem to provide an answer, it is a dubitable one, poised between affirmation and negation in the desire and doubt that is the epistemological status of every act of signification.

But if the epistemologically dubitable works of Parmigianino’s painting and the frescoes in Palladio’s buildings—poised pointedly and poignantly between affirmation and negation such that “one comprehends what one doesn’t see, indeed, what the eye thinks it can see, but what it doesn’t see … on the horizon of our sight that is and is not”—may be said to have had a transmedial effect on what was produced through Palladio’s hands, it would be through the media those hands employed: not painting but orthographic drawing and illustrated printing. Through rather than as. What Parmigianino produced was not a diagrammatic sketch but the ambiguous distorted realism of what was really depicted in and onto the mirrored surface variously across the total field of that work, just as the trompe l’oeil distortional realism in the interiors of Palladio’s buildings occurs variously across their total fields. Thus, the parallel equivalent would not be the application to the building façade of a literally graphic mode, for example, a sgraffito version of Palladio’s drawing, nor a simply and singularly resolved one-point anamorphic positioning on one area of one wall, as in Bramante’s trompe l’oeil apse at Santa Maria presso San Satiro.

What is evident in the finished artifact of Palazzo Valmarana is this play of distortional ambiguity, through its deliberate abuse of both structural and visual purity, revealing an awareness of the illusionistic deployment of applied pilasters and rustication to signify social security and stability. In other words, what is revealed is the phantom apparition of structure, structure in appearance only, so as to—again in Palladio’s equivocal words—“appear to produce the effect for which they were put there, which is to make the structure … look secure and stable.” As Gioseffi, Burns, and Fagiolo observed, each in their own manner, at Palazzo Valmarana this play was demonstrated and developed through the perceptual ambiguity intrinsic to the graphic and orthographic imprinting of its production and re-production—actively performed in and through its surface in the “overprinting” of these semiological tectonic systems in both Palladio’s book and in his building. As for the manifestation of this multiple imprinting onto the surface of Palladio’s church façades, Wittkower footnoted in the later edition of Architectural Principles that his interpretation—shown here in the original archived sketch with a questioning notation (“S. Giorgio Maggiore?,” suggestive perhaps of a planned companion diagram), and its subsequent actual designation as S. Francesco della Vigna in its initial publication (Fig. 53)—had “aroused some violent responses,” citing particularly in this regard Roberto Pane.167 Pane had dismissed any “mechanistic justification [meccanicistica giustificazione]” for the proposed intersection of temple fronts, asserting that, for Palladio, “form finds its justification only in itself.”168 Pane’s response to Wittkower might now be read as an anxiety over the loss of authorial aura in this early-modern age of mechanical reproduction, even though the very enterprise of Cinquecento disegno engaged in mechanically drawn reproductions of and from antiquity, mechanically reproduced further in text and image throughout Palladio’s multiple book productions.

View full image +

Fig. 53. (a) Rudolf Wittkower, diagram, “Palladio chapters in Archit. Principles: Text & Illustration” folder, Rudolf Wittkower Papers, Rare Book & Manuscript Library, Columbia University. Photograph by author. (b) Rudolf Wittkower, “Principles of Palladio’s Architecture,” Journal of the Warburg and Courtauld Institutes 7 (1944): 119.

In his lecture notes Gioseffi cited the Wittkower-Pane debate in general terms but—seemingly contra Pane’s apprehension of the mechanical justification of media—did not hesitate, when attempting to explain Palazzo Valmarana, to emphasize, as mentioned, how “all is implicit in the mechanism” of the graphic transposition [sono tutti implicià nel meccanismo … della transposizione].”169 But he does so not to transfer agency and authorship from the architect to his media, but rather to preserve the authority of Palladio from any taint of mannerism other than what he said was understood as “no more than a certain indulging in the cold cerebral game [freddo gioco cerebrale] and the unconventional and sometimes sophistic [sofistico] and capricious recourse to a wider cultural repertoire.”170 Even more determinately than Wittkower, Gioseffi seeking to figuratively lower the critical temperature of Palladio’s engagements to freeze him into the state of a “pure” untainted architect should be considered within the historiographic context of the time that sought to reduce earlier overheated accounts of the intentions of and attentions in Mannerist architecture, as noted by Tafuri:

One may in fact affirm that historians have reacted positively to the invitation formulated by [John] Shearman in his 1959 review of [Frederick] Hartt’s book [on Giulio Romano]. The English historian advised a “cooling off” [raffreddare] in the interpretation of cinquecento art and architecture, and an investigation of its specific motivations.171

Gioseffi’s own lack of temperateness may now be evident in the Bollettino del CISA article, in his shift from observations scientific to sarcastic when he asks, “What about the ‘cry of pain’ of the orders, of the ‘protest’ of the capitals, of the ‘contestation’ of the upper doors (not to mention the weeping of the drip edges and the gnashing of the dentils …)?,” to which he self-replies that they signify “nothing” [niente].172

Gioseffi’s dismissive characterization of mannerism as a “sophistic” recourse may be contrasted not only to Barbaro’s ambiguous statement that he would leave to others their opinion of sophistry and its visual equivalents but also to that word’s function as the etymological root of Wittkower’s previously cited statement regarding Palladio’s conjoined interlocking in his church façades: “The sophistication and intellectualism of the design are truly Mannerist, far removed from what might be called Renaissance naïveté.”173 In contrast, Gioseffi, in shifting the apprehensive agency of Palladio’s “mannerism” away from the architect and over to his media, sought to distance Palladio from this sophistication, in aesthetics and in politics, in order to return him to the naïveté of a “pure” professional, one who was merely “satisfied to do a job well done and to get an honest reward,” concluding his Bollettino del CISA article with the following portrait of the architect:

Because Palladio did architecture and not politics. Maybe indeed he did architecture precisely to avoid doing “politics” (or a certain type of “politics”). He belonged to that race of “workers” who, in a world of chatterers, “did the work that needed to be done,” in that he saw enough reason to justify his presence in the world. He worked “on commission,” satisfied to do a job well done and to get an honest reward. He did not spit on the plate from which he ate, but it does not appear that he provided the clients with services other than those explicitly and meticulously listed in the contracts.174

This seeking after a restrictive determination of authorial intention by Gioseffi can never be verified, neither scientifically nor sarcastically, with regard to any single predetermined motivation. What remains are the multiple motivated attentions manifest through the media of the artifact, those impresses of signs circulating through its production and consumption, which always exceed the portraiture of their “author.” Every architecture, and thus every architect, including and especially Palladio, provides a conjoined complex of signifying signs that portray and betray multiple layers of mediated societal portraitures other than, beyond, and underpinning those explicitly and meticulously listed in the client’s contract.

Thus, even though Tafuri stated that Shearman’s advice “was a healthy invitation,” he noted further that the “risk of some of the consequent research, however, has been of restricting the interpretations … to the constraints found in construction or imposed upon him by his patrons,” such that “recent historiography has often assumed a position of justification.”175 In other words, the sort of scholarship that assumed a predetermined justification to shift the responsibility of authorship given certain apprehensions regarding the disquieting attributes in any work in question. Such defensive setting of boundaries in order to establish a deterministic portrait of authorship results in an excusing or explaining away, rather than an explicating of the relational problems of agency and authority, which is always a complex co-incidental interlocking of entangled engagements. With regard to Palazzo Valmarana, in Wittkower’s case that excusing involved retaining the fullest self-agency in the portrait of the author-artist by citing the use of ancient precedents to “authorize” unorthodox features. By contrast, in Gioseffi’s case that explaining away involved shifting that agency alternatively to the artist’s media or to the client in order to retain the portrait of “a worker not a chatterer.”176

An even more absolute abolition of the Artificer’s self-agency could be suggested with reference to some more recent theories of media determinism, which one might imagine proposing that Palladio’s orthographic technique authorized and imprinted its own self-portrait. Equally problematic, at the opposite extreme with regard to the mediated relation between authorship and authority, Barbaro personalized the authorial process of signification to a singular individual—stating that, by signifying, “the Artificer has impressed his sign, that is, the quality and form that is in his mind.” Yet this personal portrait of the self, of “the Artificer,” is always a biographically (or autobiographically) conjoined cultural portrait composed, or rather recomposed—through artifice—as a collective accumulation of past and present demonstrations, drawings, impressions, reasonings, signs. Paraphrasing Barbaro: what cannot be solely signified by one, could be relationally signified by many. In other words, what may be said to be significant is not any single biographical event, nor a general listing of a life history, but how disparate and even conflictual incidents of personal bibliography signify in the mediated impress of conjoined linkages—as have been suggested throughout here—between various layers in a biography of works, the co-incidences of their conceptual and cultural coordinates.

One such biographical incident crucial to the formation of Palladio’s artistic and professional self—which manifests in a multitude of associations and disassociations and derivations in his subsequent self-portraiture—was his encounter as a young architect with the more senior Giulio Romano, as noted by Burns:

At the Palazzo Thiene, Palladio learned how to be a great architect, acting as Giulio Romano’s on-site assistant and observing how Raphael’s oldest pupil designed and dealt with his patrons. When Palladio took over the construction, he defined himself architecturally, setting a distance between Giulio’s witty, complex, and restless style, and his own desire for visual stability and respect for norms… . When Giulio died in 1546, Palladio became the sole architect. He probably did not (and could not) radically change Giulio’s design… . The building contributed much to Palladio’s fame, which partly explains why he never mentions Giulio’s contribution [in the description of the building in I Quattro Libri].177

Burns incisively states Palladio’s authorial evasion here. Yet given how successful Palladio was at developing his stable brand of villas—the salient features of which Wittkower was able to dispatch in merely seven paragraphs and one now well-known diagram—what has perplexed many commentators (and required, as noted, much more language and patience from Wittkower) is why Palladio would still subsequently feel the need to experiment with a witty, complex, restlessly unstable, and—if we need still, as Tafuri pondered, to use traditional historiographical definitions—“Mannerist” style in his late work.

According to Tafuri, even Palladio’s “respect for norms” generated a “logical concatenation of experiments” in combinatory processes of design:

The norm thus becomes something purely conceptual. Indefinable, it lives ideally in a planned adventure that discovers the value of serial arrangements: devoid of “models,” Palladio’s ars combinatoria criticizes the concept of the type and presents itself as an open structure, a logical concatenation of experiments on the aggregation of spaces, on the syntax of structures, and on the composition of pivotal elements, made possible thanks to grammatical purification.178

But one consequence of this open process, Tafuri posited, was a closing off—for others—of certain approaches to experimentation:

For those who love traditional historiographical definitions, we can say that Palladio in this way barred all access to architectural Mannerism in the Veneto region, demonstrating at the same time that the philological use of Latin grammar does not thwart open-minded experimentalism in the least: clearly, the issue for him was an experimentalism that was the opposite of Sebastiano Serlio.179

Were Palladio’s production to have stopped prior to the unstable late work of Palazzo Valmarana, the Loggia del Capitaniato, and the churches—where Palladio’s ars combinatoria developed not just between works but within the recombinant façades of each of these works—Burns’s statement regarding the architect’s distancing himself from Giulio’s “witty, complex, and restless style” in favor of stability would resolve perfectly in Tafuri’s assertion of Palladio’s process of purification. And there would have been no need for Wittkower’s lengthy consternation—his apprehension in all the previously mentioned senses—and similar puzzlement from numerous critics and historians.

What Tafuri did not assert— in positing that “Palladio in this way barred all access to architectural Mannerism in the Veneto region” was whether this was the intent or the result (or both) of Palladio’s ars combinatoria. Either way, adjudicating the historical veracity of this bold proposition would require delineating whether such historiographical definitions should include what Wittkower termed the “dry Late Mannerism” of Vincenzo Scamozzi, whose “academic and linear classicism is, as far as plastic volume and chiaroscuro are concerned, a deliberate stepping back to a pre-Sanovinesque position. Moreover, in many respects Scamozzi’s architecture must be regarded as a revision of his teacher Palladio by way of reverting to Serlio’s conceptions.”180 What can be stated here is that in his later years Palladio was engaged simultaneously in seemingly opposite lines of experimentation. On the one hand, there are, noting Milizia and Tafuri, increasing modes of “pure taste” and “grammatical purification,” developed both as figure and as field. As figure: there is the intensification of the central manorial house minus any flanking arcaded barchessa in Villa Rotonda. While in its later completion this villa has in its interior dimensionally complex interactions between pictorial, sculptural, and tectonic figurations as robust as in any of the villas, even its exterior has its own share of dimensional mannerisms, as noted by Beltramini: “Raphael’s Palazzo Branconio in Rome provided the model for the way the simplified entablature is flattened onto the walls of the building; Palladio also used this solution for the four façades of the Villa Rotonda, on which he was working at the same time [as Palazzo Valmarana]”—Palazzo Branconio being a project Giulio Romano was actively engaged in through his principal role in Raphael’s Workshop.181 As field: there is the intensification of arcades minus any central manorial house in Villa Sarego, which takes his early experiments in rustication that he gained from Giulio to an extreme level of fundamental rustic-ness with its irregular coursing of stone in the giant columns.

On the other hand, during the same years there are the seemingly opposite imprinted projects of Palazzo Valmarana and the Loggia del Capitaniato, which were deliberately engaged to be “not in a pure taste,” that is, not exercises in purification. Palladio’s late style may be said to manifest the manner in which more recently this latter term has been used to characterize how certain artists—after achieving success through the production of harmonious, serene, and productive works, perhaps tired of their abilities to portray “beautiful” figurations in a “pure taste”—experiment and test themselves through ever more exaggerated and distortional refigurations enacted as “a nonharmonious, nonserene tension, and above all, a sort of deliberately unproductive productiveness going against,” with a renewed intensity late in their practice, such as certain artists, like Parmigianino, had in the earlier formative moments of their careers.182

Had Palladio had in his hands not only Parmigianino’s painted Self-Portrait but also the 1550 edition of Vasari’s written description of how Parmigianino conceived this painting, it is likely that he would have read of such an early formative moment, when a young Parmigianino, in order to advance his art by investigating its subtleties (investigando le sottigliezze) set “himself [si mise] one day, to experiment and test himself [esperimento e saggio di sé]” in and through this work.183 Following Fagiolo’s observation that Palladio’s facades became “laboratories of meta-perspective experiments,” as for Palladio’s own early formation, while Palladio refused to acknowledge that meta-perceptionist Giulio Romano’s authorship of Palazzo Thiene, yet the multi-dimensional (two-to-three-and-back-again) Giulian debt that Palladio’s later work owes to one experimental feature of this building should be noted:

In the case of the Palazzo Thiene the rusticated small Ionic columns and the smooth, large Corinthian pilasters were related in a subtle way. An entablature running along under the large pilasters links up all the window columns so that a coherent small order alternates with the large one. The complicated rhythm created by the interpenetration of a small and a large order is a recurrent motive of Mannerist architecture.184

Wittkower observed in a footnote to this passage one relational precedent for a crucial feature in generating the effect of this rhythm: the “linking up of the window tabernacles already occurs in the Palazzo Pandolfini, but of course without a large order cutting across the band of the frieze.”185 It may also be noted that this figuration occurs not only in this palazzo by Raphael but in his similarly late Palazzo Branconio, as well as in his stage set design for Ludovico Ariosto’s Supposti, for which Giulio’s involvement has also been cited.186 The more direct evidence of this debt are the tabernacle windows of Palazzo Thiene, which are near replicas of the singular tabernacle window of Giulio’s own house in Rome, while a large order cutting across a mid-entablature linkage of windows occurs on the exterior and courtyard façades of Palazzo Te. At Palazzo Thiene, this combination is manifest in an alternating manner as the linking entablature that is flattened into the “two-dimensional” wall surface projectively emerges into the three-dimensional formation of the tabernacles. The complicated rhythm cited by Wittkower, created by the interpenetration of a larger order cutting across this linked smaller order and so well noted in the later work of Palazzo Valmarana and the churches, is not to be found in any of Palladio’s other works, nor is the linkage of columned apertures through mid-level entablatures—with a few pertinent exceptions: the Elevation of a Doric Order Palace Façade (RIBA XVII/11r) and the façade studies for Palazzo Da Monte (RIBA XVII/19 and 26) and “Design for a villa” (RIBA XVII/16).187 Lewis proposed the latter façade studies as belonging to a period that Wittkower termed “the ‘wild’ 1530’s and 1540’s”—during which time, Beltramini has suggested, Palladio pursued an “eclectic” approach characterized by “a pastiche of motifs derived from Giulio Romano and Michele Sanmicheli,” among others (such as Raphael), prior to his being “capable of forging a wholly personal language of his own.”188 If, on the other hand, the date of 1560 that the RIBA proposes for all these four drawings is correct,189 that would situate them in the late period under discussion, during which time Palladio is experimenting anew with these motifs through impressed and interpenetrated, multilayered, multiscaled façades.

The more notable exception in this scalar interpenetration of orders is Palladio’s Basilica, designed after Giulio had made several earlier proposals (now lost) for that project and regarding which Beltramini has proposed that the flexible remodulation of its serliana had its precedent in Giulio’s San Benedetto Po.190 This reconstruction of Giulio’s church occurred within the period from 1540 to 1544, and it may be further observed that San Benedetto Po’s interpenetration of a larger order cutting across linked serliana is evident both in its tight exterior figuration, with the serliana positioned between serial paired pilasters—as reflected in Palladio’s earlier (ca. 1546–1549) study for the Basilica (RIBA SC222/XIII/9r)—as well as in its porous interior figuration with the free-standing columns of the serliana positioned between a serial single order—as reflected in the Basilica as built. In terms of linkages from Giulio’s work to Palladio’s late work, it is significant that it was only as late as 1561 that a portion of the Basilica’s first order was completed and that only by 1564 is there a drawing of the final porous version (RIBA SC222/XIII/8r) and the start of the second story.191 This later date is the same year construction on San Francesco della Vigna began, with construction starting on San Giorgio Maggiore the following year and on Palazzo Valmarana the year after that, all composed with interpenetrations of a larger order cutting across a linked smaller order.

View full image +

Fig. 54. Giulio Romano/Andrea Palladio, Palazzo Thiene, Vicenza. Photograph by Marianna Mancini.

With regard to the co-incidence between Palazzo Thiene and Palazzo Valmarana, in both palaces the pilasters cut into and through pulvinated mid-entablatures to the extent that their topmost moldings stick out past the pilasters (Fig. 54). While Wittkower did not cite this shared attribute, he does make reference to Palazzo Thiene’s mixture of flat and rough rustication, stating only in general and in passing that the “contradiction inherent in this combination attracted Mannerist architects, and they exploited it in various ways from Giulio Romano’s Palazzo del Te and Alessi’s Palazzo Marino in Milan,” albeit footnoting Ernst Gombrich’s brief footnote in the latter’s article “Zum Werke Giulio Romanos” regarding the “use in the Palazzo Thiene of motifs derived from Giulio Romano.”192 But such was Wittkower’s need to maintain Palladio’s authority and authorship of this building that merely three paragraphs prior he had stated that, although there were ancient precedents for the “dynamic variety of [room] shapes of the Palazzo Thiene[,] … No one had hitherto thought of vitalizing ancient planning in this way. Nor can a contemporary plan be found in the whole of Italy which comes anywhere near this diversity in a sequence of rooms.”193 Yet, a contemporary plan can be found relationally near enough in personal association and geography (without having to search the whole of Italy) as the most direct model of a dynamic diversity in a sequence of rooms orthogonally configured around a courtyard atrium, and indeed that is the plan of Palazzo Te.

Wittkower thus avoided acknowledging what Inigo Jones and Vincenzo Scamozzi had already acknowledged two centuries earlier as Giulio’s original authorship. Even more, Wittkower attempted to further disengage Palladio from a Giulian imprinting, due to his own apprehensions: “In spite of such Mannerist factors as conflict and complication, we find in the building neither Michelangelo’s extreme tension, nor Giulio Romano’s almost pathological restlessness; it is orderly, systematic and entirely logical, and one looks at it with a disengaged curiosity rather than with that violent response which many more complex Mannerist structures evoke.”194 And yet, while two decades separate Palazzo Thiene from Palazzo Valmarana, Wittkower’s disengaged curiosity regarding Palazzo Thiene followed in his very next paragraph and the succeeding one, as has been noted, with his ever more engaged descriptions of Palazzo Valmarana’s even more curiously “complex Mannerist structure”—evoking if not a violent response then at least one that shifted from “disengaged” to “disquieted.” And with regard to the relational positioning of projects, what may be considered significant is that Palazzo Thiene is positioned in I Quattro Libri just before Palazzo Valmarana or, to be more precise, is positioned right between Palazzo Porto and Palazzo Valmarana, even though chronologically it was developed prior to Palazzo Porto. This suggests a conceptual design linkage between those later two palaces beyond the familial linkage that Livia Thiene, the sister of Adriano and Marc’Antonio Thiene, patrons of Palazzo Thiene, was Iseppo Porto’s wife.195

Regarding Palazzo Porto, the previously mentioned four freestanding Tuscan columns of the entrance tetrastyle atrium, which in the early drawing are transparently emergent onto the façade, might now be understood further in terms of the biographical or rather the autobiographical portraiture of the architect they present. Whatever else these columns signified for Palladio in terms of ancient and regional references,196 their appearance at Palazzo Porto follows their more immediate precedent at Palazzo Thiene—and, prior to then, at Palazzo Te, as noted by Gombrich.197 In his anxiety at the mixture of authorial identity evident at Palazzo Thiene, Palladio attempted to play down their Palazzo Te look-alike appearance, claiming that the columns “have been placed there not so much for ornament as to make the room above stable and to make the breadth propositional to its height.”198 Even though their ornamentally fabricated meta-mixture of “unfinished” shafts and refined carved bases and capitals—refined culture impressed upon unrefined nature—call into question any secure and stable identities of structure and ornament that would preserve them from the inevitably conjoined mixture of these latter terms, which became increasingly signified in Palladio’s late work. Thus, in the Palazzo Porto drawing this configuration may be read, literally and figuratively and figurally, as an apparition of Giulio Romano—of Palladio’s apprenticeship to Giulio—even as this configuration developed in many of Palladio’s subsequent designs as a stock motif, finished and incorporated, unlike Giulio’s version, into interior rooms. One further conjoined linkage may be noted: with regard to the courtyard version of Palazzo Porto that Palladio published in I Quattro Libri, Beltramini has proposed that the “model for a double residence separated by a courtyard was probably the so-called ‘Italian Building,’ designed for Duke Ludwig X at Landshut by Giulio Romano.”199 A similar and similarly unbuilt division of Palazzo Valmarana by a courtyard had been stated in I Quattro Libri, as with Palazzo Porto, in the forever future tense as already constructed.200

As for Palladio’s citation of these creative conduits and lineage linkages, in Book IV he listed the “eccellentissimi” Bramante, Michelangelo, Sansovino, Peruzzi, Antonio Sangallo the Younger, Sanmicheli, Serlio, Vasari, Vignola, and even the lesser known Leone Leoni201— most of whom were acclaimed for being adept in multiple media—in other words, nearly everyone of significance except the most significant, according to Burns, with regard to his own personal professional experience: Giulio Romano. It should also be observed that Raphael similarly is missing from this list, but perhaps the linkage as Giulio’s mentor explains that even more notable absence. The repression of that lineage by Palladio was already started sixteen years earlier, in Palladio’s first self-promotion in print, discussed at the beginning of this section, L’antichita di Roma. In his “rewriting” of Fauno’s original text on the Papal Palace, Palladio transferred the adjectival accolade (divino) that Fauno had reserved for Raphael to Michelangelo and, even further, excised any reference to Raphael in that (or any other) passage in this book or in his Descritione de le chiese.202 This excision is all the more surprising, as Beltramini has noted that Palladio kept “among his own sheets” a detailed drawing of the Pantheon’s interior cornice by Raphael, proposing that he “probably obtained it from the celebrated Vicenza gem engraver Valerio Belli, a friend of Raphael.”203 Yet , indeed revealing, given that further in Palladio’s own hand from around the time of his assistantship to Giulio and his early visits to Rome there is Palladio’s survey drawing of Raphael’s Villa Madama, which had been completed to its partial extent by Giulio and Giovanni da Udine.204

In spite of, or perhaps because of, Palladio’s own repression and suppression in I Quattro Libri of his professional debt to, and imprinting by, Giulio (and by extension Raphael), it may not be so surprising that Palladio’s late period experiments resulted in a self-reflexive revision of those mannerist modes. To use again the expression Vasari used for Parmigianino’s Self-Portrait: “testing himself,” experimenting with semiological systems, as did Parmigianino and Veronese and Zelotti, but finding a new inventiveness within his own forms of media. He was “advancing his art by investigating its subtleties [sottigliezze],” subtleties to be found precisely because acts of signification may always be revealed to be not entirely—with regard to Wittkower’s apprehension—orderly, systematic, and logical, not entirely secure and stable. But therein lay the epistemological equivocation and inventiveness of the frescoes and grotesques and stuccos that Palladio so extolled in I Quattro Libri.

It may thus be proposed that the experimentation Palladio engaged in during the last two decades of his life involved both tests toward purification, as well as their apparent opposite, toward a more complex intricacy—the latter in a return of the repressed to modes he encountered personally in the work of Giulio. Lest it be imagined that I am here proposing some final psychological explanatory key to the puzzle that is the late work of Palladio, this aspect is just one piece of evidence to be considered in corroboration with the other pieces of evidence presented here. And lest also it be imagined that this enumeration of various manifestations of Giulio’s influence—which clearly caused anxiety in Palladio and others—aspires to suggest that this return was a return to Giulian styles of signification, it is through this return that Palladio moved beyond the early Giulian “pastiche” of his formative years, when he “is still acquiring knowledge and is highly receptive to stimuli from the works of other architects,”205 to develop more graphically overlayered techniques not present in Giulio’s work. While Giulio developed throughout his work various transformative multilayered architectural and pictorial systems,206 Palladio’s swerve in those regards established new approaches to the relations between representation and the representational act that is architecture—in an equally but differently mannered mode mediated through his engagements with Venetian print culture.

Thus, maintaining for the moment Tafuri’s hypothesis, a double-barring approach rather than a singular barring could be surmised regarding “access to architectural Mannerism in the Veneto region.” Beyond Palladio’s “purification” initiatives that would seem to have led others away from the “complicated interplay of wall and order,” by so fully incorporating into his late corpus these parallel counterpurification modes of his own complicated interplays, subsequent developments in the region might very well seek to take alternative pathways. That alternate result was surmised by Wittkower in his previously mentioned observations regarding the “dry Late Mannerism” and “linear classicism” of Scamozzi and Serlio in his Art and Architecture of Italy 1600–1750 as well as in his earlier “Pseudo-Palladian Element in English Neo-Classical Architecture.” This essay tracked how “Neo-Palladianism” had tended to appropriate the more reductive and repetitive modes of Palladio’s “purer” work—as re-produced in (and through) print media—flattening in a more uniform surface the multilayered “intricacy” that Wittkower characterized as mannerist, even if the particular pseudo motifs Wittkower analyzed in the essay may be traced to and through Serlio rather than to Palladio.207 And in fact, in that essay, Wittkower ascribed the principle behind Palladio’s ambiguous multilayering to the influence of Giulio: “The two surfaces which thereby become visible on different levels give this system an ambiguity which occurs only in the Mannerist phase of Palladio’s development, and it is characteristic that the idea had come to him from Giulio Romano.”208 Thus, when Inigo Jones stated—in his drawn and written commentary inked upon the Palazzo Thiene pages in his own copy of I Quattro Libri, adding notations all around and even within the imprinted drawings and text this time—that the previously mentioned entrance atrium “is of Julio Romano and the manner of all ye Pallas yt Palladio setes yt downe as his owne” and that “Scamozo and Palmo saith that thes designes wear of Julio Romano and executed by Palladio and so yt seems,”209 it may be proposed that Scamozzi was not so much outing Palladio for his illicit attempt to imprint his own self-authorship on the building but rather was trying to distance Palladio from Giulio’s imprinting. And like many northern European architects, Jones seemed all too glad to channel the purified Palladio, so as to avoid accusations of being imprinted himself with impure Roman Catholic intricacy and excess—at that time in England literally a dangerous association. But the responsibility ultimately lies with Palladio himself, because as the Loggia del Capitaniato and the later churches are absent from I Quattro Libri, the complex intricacy of Palazzo Valmarana appears as an exception to—rather than a signifying exception from within—the norms and rules Palladio printed. Thus, the imprint of “Palladio” has tended toward the graphically flattened and lower resolution of the rule-bound print manuals reproduced through the centuries Wittkower cited, and into our own century as well, having settled in as the most enduring—and it seems, to many, the most endearing—“self-portrait” of Palladio in print.

In this desire to establish and fix norms and rules in the early modernizing of the Venetian State in which “a scientism was affirming itself,” there remains, as Tafuri observed, “the paradoxical story of the epistemological paradigm to which Barbaro, like so much of Renaissance culture, appears to adhere.” As Tafuri noted,

The mathematical network, which was spread over the world through a Platonic-Aristotelianism, was the result of an interpreting subject endowed with an unprecedented will to power. The fact that it is an interpretation that is not known as such, that it ignores the necessity or the need to self-interpret [autointerpretarsi] … produces a paradox: as the alliance between mathematics, mechanics and physics is concretized in appreciable results, the paradigm that had supported the new reasoning cracks or is compromised.210

In other words, the abiding desire for such willful rational networks in this period would seem to leave little room for the self-reflexive doubt that Barbaro, in his sonnet, stated as necessary for the process of invention.

Yet: whatever else their interest, what remains signified in the later works of Palladio is an unsettling self-interpretation that reveals such cracks and compromises in the very act of architectural reasoning and its signification, transmedially developed in relation to the particular impress of reasoning in the innovative painted and printed media of that time. Subsequently, we in turn have been imprinted, in the behavioral sense, to follow those architects and critics and historians who have manifested the impress of their reasoning, textually and visually—their demonstrations by signs—in print. Not only for those individuals previously canonized, but for others now or in the future to be newly canonized—as expanded that category continually should become, so that no period or region or work be excluded or exclusive. Reading their lines and what lies between and behind those lines—as in this particular Palladian case regarding the delineation of an intensive epistemological self-reflection in this period through the coordination and conjoining of media: built, drawn, painted, printed.

Acknowledgements: This essay presents some initial sections of my book investigating the intermedial relations of Palladio’s late work, forthcoming from Officina Libraria. It was Guido Beltramini who first suggested I turn my digital attentions to what he considered to be two of the most puzzling buildings of Palladio: Palazzo Valmarana and the Loggia del Capitaniato. Those first attentions were presented in the Recombinant Palladio symposium I organized at Columbia University in 2010, in association with the exhibition Palladio and His Legacy: A Transatlantic Journey at the Morgan Library & Museum (the latter which was co-curated by the Royal Institute of British Architects and the Centro Internazionale di Studi di Architettura Andrea Palladio). More recently, a portion of this investigation was presented at the Renaissance Society of America’s Annual Meeting of 2021 in the session “Transmedial Techniques.” Regarding support for the Columbia symposium and the RSA annual meeting, my thanks for the former goes to then Dean Mark Wigley, and for the latter to session organizers Kathryn Moore and Michael Waters. Supportive engagement through the process of its development have been provided by Francesco Benelli, Michele Fornabai, Catherine Ingraham, Marco Jellinek, Marianna Mancini, Jorge Otero-Pailos, Lorenzo Vigotti, and most especially in the dedicated readings through its extended evolution by Aaron White. Access to the Palladio materials in the RIBA collection were facilitated by Catriona Cornelius, Charles Hinds, Jonathan Makepeace, Irena Murray, and Susan Pugh. And in the Avery Classics Collection my thanks go to the ever-supportive assistance of Teresa Harris, Lena Newman, and Dylan Rosenlieb. At Aggregate, my thanks go to the incisive readings by Lauren Jacobi, Pamela Karimi, Michael Osman, Laila Seewang, and Meredith TenHoor, as well as to the attentive copy-editing of Maureen Bemko and insightful management of Elliott Sturtevant. Assistance in the digital visualization for this research has been provided by Kyle Faircloth, Benjamin Hollberg, Madhavi Jandhyala, Kyung Jae Kim, Leo Kim, Abby Lo Presti, Yuanming Ma, Aaron Schump, Danlei Yang, Jieun Yang, and Michael Andrew Young. Unless otherwise noted, the translations here have been developed with the assistance of Lorenzo Vigotti, along with Marianna Mancini.

✓ Transparent peer-reviewed

Mark Rakatansky, “Signifying Media: The Imprinting of Palladio,” Aggregate 12 (October 2024), https://doi.org/10.53965/XCEG6158.

  1. 1

    Rudolf Wittkower, “Principles of Palladio’s Architecture,” Journal of the Warburg and Courtauld Institutes 7 (1944): 102–22; Rudolf Wittkower, Architectural Principles in the Age of Humanism (London: Warburg Institute, 1949).

  2. 2

    Vitruvius, On Architecture, trans. Richard Schofield (London: Penguin, 2009), 5.

  3. 3

    Daniele Barbaro, I dieci libri dell’Architettura di M. Vitruvio tradutti e commentati da monsignor Barbaro eletto Patriarca d’Aquileia (Venice: Francesco de’ Franceschi Senese & Giovanni Chrieger Alemano Compagni, 1567), 11, quoted in James Ackerman, “Daniele Barbaro and Vitruvius,” Origins, Imitation, Conventions: Representation in the Visual Arts (Cambridge, MA: MIT Press, 2002), 223–24, 232: “E però due cose sono, l’una è la significata, & proposta opera, e l’altra è la significante cioè dimostratiua ragione. Tutti gli effetti, opere, lauori delle Arti, le conclusioni di tutte le scienze sono le cose significate; ma le ragioni, le proue, le cause di quelle sono le cose significanti… . Il segno si riferisce alla cosa significata: lo effetto alla cause: La conclusion alla proua … significare è per segni dimostrare, & segnare è imprimere il segno. La doue in ogni opera da ragione drizzata, & con disegno finita, è impresso il segno dello Artefice, cioè la qualità & la forma, che era nella mente di quello, percioche lo Artefice opera prima nello intelletto, & concepe nella mente, & segna poi la materiale esteriore, dello habito interiore [specialmente nell’architettura] perciòche ella sopra ogni arte significa cioè rappresenta le cose alla virtù, che conosce, & concorre principalmente a formare il concetto secondo la sua intentione: & questo è proprio significare.”

  4. 4

    Daniele Barbaro’s Vitruvius of 1567, trans. and ed. Kim Williams (Cham, Switzerland: Birkhäuser, 2019), 27.

  5. 5

    Ackerman, “Daniele Barbaro and Vitruvius,” 224.

  6. 6

    Margaret Muther D’Evelyn, Word and Image in Architectural Treatises of the Italian Renaissance (Princeton University ProQuest Dissertation Publishing, 1994), 270.

  7. 7

    Daniele Barbaro’s Vitruvius of 1567, 27; Barbaro, I dieci libri dell’Architettura di M. Vitruvio (1567), 64.

  8. 8

    Daniele Barbaro’s Vitruvius of 1567, 220; Barbaro, I dieci libri dell’Architettura di M. Vitruvio (1567), 124.

  9. 9

    Ferdinand de Saussure, Course in General Linguistics (New York: McGraw-Hill, 1959), 67–69, 121 (emphasis added). Yet what also should be noted is their fundamental differences regarding the agency of signification, as Barbaro proposed that it emanates from the mind of the Artificer, while Saussure proposed that it emanates from the medium of language.

  10. 10

    Vocabolario degli Accademici della Crusca (Venice: G. Alberti, 1612), 915, http://www.lessicografia.it/pagina.jsp?ediz=1&vol=0&pag=915&tipo=1, and 916, http://www.lessicografia.it/pagina.jsp?ediz=1&vol=0&pag=916&tipo=1; Charlton T. Lewis and Charles Short, A Latin Dictionary (New York: Harper and Brothers, 1879), online ed., http://www.perseus.tufts.edu/hopper/text?doc=vagus&fromdoc=Perseus%3Atext%3A1999.04.0059.

  11. 11

    Deborah Howard, “Barbaro Family Portraits in the Cinquecento: Some Observations” in Daniele Barbaro, 1514–1570: Vénitien, praticien, humaniste, ed. Frédérique Lemerle, Vasco Zara, Pierre Caye, and Laura Moretti (Turnhout, Belgium: Brepols, 2017), 43, 45.

  12. 12

    Barbaro’s scholarship included editing his uncle Emilio’s edition of Aristotle’s Rhetoric, writing his own book on eloquence and his treatise on perspective, and drafting an unpublished official history of Venice and an unpublished treatise on the construction of astronomical instruments.

  13. 13

    Xavier F. Salomon, “The Patron of Paolo Veronese’s Portrait of Daniele Barbaro: A New Hypothesis,” in Close reading: Kunsthistorische Interpretationen vom Mittelalter bis in die Moderne, ed. Stefan Albl, Berthold Hub, and Anna Frasca-Rath (Berlin: De Gruyter, 2021), 166.

  14. 14

    Duncan Bull, “A Superannuated Analemma in Veronese’s Portrait of Daniele Barbaro,” in Renaissance Studies in Honor of Joseph Connors, ed. Machtelt Israëls and Louis Alexander Waldman (Florence: Villa i Tatti, 2013), 394.

  15. 15

    Manfredo Tafuri, “La norma e il Programma: Il Vitruvio di Daniele Barbaro,” in Vitruvio: I dieci libri dell’architettura, tradotti e commentati da Daniele Barbaro, 1567, ed. Manfredo Tafuri and Manuela Morresi (Milan: Edizione Polifilo, 1987), XXI–XXVII.

  16. 16

    Louis Cellauro, “Daniele Barbaro and His Venetian Editions of Vitruvius of 1556 and 1567,” Studi Veneziani n.s. 40 (2000): 105.

  17. 17

    Brian Richardson, Printing, Writers and Readers in Renaissance Italy (Cambridge: Cambridge University Press, 1999), 5–6, citing Amedeo Quondam, “La letteratura in tipografia,” Letteratura Italiana, vol. 2, ed. Alberto Asor Rosa (Turin: Einauldi, 1983), 578–87.

  18. 18

    For some recent critical discussion regarding the degree to which the circulation of printing and prints fostered or limited creative innovation in the Cinquecento and later time periods, see, for example, Mario Carpo, Architecture in the Age of Printing: Orality, Writing, Typography, and Printed Images in the History of Architectural Theory (Cambridge, MA: MIT Press, 2001); and Michael J. Waters, “A Renaissance without Order: Ornament, Single-Sheet Engravings, and the Mutability of Architectural Prints,” Journal of the Society of Architectural Historians 71, no. 4 (2012): 488–523.

  19. 19

    Decio Gioseffi, “Il disegno come fase progettuale dell’attività palladiana,” Bollettino del Centro Internazionale di Studi di Architettura Andrea Palladio 14 (1972): 53–54.

  20. 20

    Marcello Fagiolo, “Principii prospettico-compositivi dell’architettura di Palladio,” Bollettino del Centro Internazionale di Studi di Architettura Andrea Palladio 20 (1978): 307–28.

  21. 21

    Rudolf Wittkower, Architectural Principles in the Age of Humanism (New York: Norton, 1971), 85.

  22. 22

    Gioseffi, “Il disegno come fase progettuale dell’attività palladiana,” 45–62.

  23. 23

    Gioseffi, “Il disegno come fase progettuale dell’attività palladiana,” 61.

  24. 24

    Gioseffi, “Il disegno come fase progettuale dell’attività palladiana,” 61.

  25. 25

    Douglas Lewis, The Drawings of Andrea Palladio (Washington, DC: International Exhibitions Foundation, 1981), 112–16.

  26. 26

    Guido Beltramini, “Palladio and His Books: The Four Books on Architecture,” in Palladio and His Legacy: A Transatlantic Journey, ed. Charles Hind and Irena Murray, (Venice: Marsilio, 2010), 90.

  27. 27

    Daniele Barbaro’s Vitruvius of 1567, 27.

  28. 28

    Daniele Barbaro, I dieci libri dell’Architettura di M. Vitruvio tradutti e commentati da monsignor Barbaro eletto patriarca d’Aquileggia (Venice: F. Marcolini, 1556), 9: “perciò che l’artefice opera prima nell’intelletto, & concepe nellamente, & poi segna la materiale esteriore, dell’habito interiore.” For a further discussion of habitus, see Branko Mitrović, “Daniele Barbaro’s Architectural Theory,” in Daniele Barbaro’s Vitruvius of 1567, xv–xviii.

  29. 29

    Inigo Jones’s most prominent figure—both in its size and in its showing-through on the recto of the drawing—has its left arm outstretched through the straps of a shield, a configuration not evident in any of the statuary or relief figures in either the printed or the drawn elevations, or in the current building.

  30. 30

    Andrea Palladio, The Four Books on Architecture (Cambridge, MA: MIT Press, 1997), 84 (emphasis added).

  31. 31

    James Ackerman, “Palladio: Classical in What Sense?,” in Origins, Imitation, Conventions: Representation in the Visual Arts (Cambridge, MA: MIT Press, 2002), 250, 252.

  32. 32

    Tommaso Temanza, Vita di Andrea Palladio vicentino (Venice: Presso Giambatista Pasquali, 1762), XXV. Later in the century a similar aesthetically “structural” reservation regarding the propriety of this corner is made by William Chambers, in the third edition of his A Treatise on the Decorative Parts of Architecture (London: Joseph Smeeton, 1791), 73:

    “Persian or Caryatids figures, ought never to be employed to support the same entablature with columns: for figures of men or women, as high as columns, are considerably more bulky; and when they are of an uncommon size, convey an idea of greatness, that entirely destroys the effect of the columns, by making them appear very trifling. Neither should they be placed upon columns, as they are in the court of the Old Louvre at Paris, for the same reasons.

    “Palladio, sensible of this inconvenience, yet willing to introduce a specimen of Persian figures, has in the Valmarano Palace at Vicenza, divided the large Composite pilasters which decorate the front, into five parts; three of which he has given to a diminutive Corinthian order, squeezed into the inter-pilasters, and feebly sustaining the extremities of the fabrick; while the remaining two parts are at the angles, occupied by figures on pedestals, as diminutive as the aforesaid Corinthian order, and introduced with as little propriety; more especially as they are made to support the ends of an enormous, bulky Composite entablature, of which the height surpasses two thirds of that of the figures themselves.”

  33. 33

    Wittkower, Architectural Principles in the Age of Humanism (1971), 85.

  34. 34

    Wittkower, Architectural Principles in the Age of Humanism (1971), 84–85 (emphasis added).

  35. 35

    As Christoph Frommel has noted, this invention of Bramante “reduced the costs of construction considerably and made the possibilities of a direct imitation of the ancients very inviting for patrons of reduced financial means. Without this economical technique, Bramante’s direct successors—not just Raphael, Peruzzi, and Giulio Romano, but also Jacopo Sansovino, Sanmicheli and Palladio—would never have been able to achieve some of their most important works.” Christoph Luitpold Frommel, “Living all’antica: Palaces and Villas from Brunelleschi to Bramante,” in Italian Renaissance Architecture from Brunelleschi to Michelangelo, ed. Henry A. Millon (London: Thames and Hudson, 1996), 195.

  36. 36

    Palladio, Four Books on Architecture, 56.

  37. 37

    Ackerman, “Daniele Barbaro and Vitruvius,” 223.

  38. 38

    Palladio, Four Books on Architecture, 17, 61.

  39. 39

    Palladio, Four Books on Architecture, 17.

  40. 40

    Wittkower, Architectural Principles in the Age of Humanism (1971), 85.

  41. 41

    Baldesar Castiglione, The Book of the Courtier, trans. Charles S. Singleton, ed. Daniel Javitch (New York: Norton, 2002), 43.

  42. 42

    Decio Gioseffi, Andrea Palladio, ed. Franco Firmiani (Empoli: Ibiskos, 2008), 8, 13: “in realtàné incoerente, né disorganica; ma puntualmente deriva dalla ‘codificazione ortogonale’ di un impianto realissimo e sviluppato in profonclità… . I pretesi elementi di ‘rottura’ sono tutti implicià nel meccanismo, d’altronde consueto per il Palladio, della transposizione.”

  43. 43

    Palladio, Four Books on Architecture, 84.

  44. 44

    Wittkower, Architectural Principles in the Age of Humanism (1971), 84.

  45. 45

    Howard Burns, “I disegni,” in Mostra del Palladio, ed. Renato Cevese (Vicenza: Basilica Palladiana, 1973), 138.

  46. 46

    Palladio, Four Books on Architecture, 52.

  47. 47

    The expanded version of the essay is Howard Burns, “I disegni del Palladio,” Bollettino del Centro Internazionale di Studi di Architettura Andrea Palladio 15 (1973): 169–91.

  48. 48

    Burns, “I disegni,” 138.

  49. 49

    Howard Burns, Andrea Palladio 1508–1580: The Portico and the Farmyard (London: Arts Council of Great Britain, 1975), 248.

  50. 50

    Burns, Andrea Palladio 1508–1580, 248 (emphasis in original); Guido Beltramini, “Learning from the Antique: The Study of Ancient Ruins,” in Palladio and His Legacy: A Transatlantic Journey, ed. Charles Hind and Irena Murray (Venice: Marsilio, 2010), 41.

  51. 51

    Palladio, Four Books on Architecture, 233.

  52. 52

    Burns, Andrea Palladio 1508–1580, 248.

  53. 53

    Palladio, Four Books on Architecture, 315.

  54. 54

    Howard Burns, “Between the Lines: Palladio’s Project and Palladio’s Drawings,” in Palladio and His Legacy: A Transatlantic Journey, ed. Charles Hind and Irena Murray (Venice: Marsilio, 2010), 11.

  55. 55

    Burns, “I disegni,” 138.

  56. 56

    Burns, “I disegni del Palladio,” 185.

  57. 57

    Raphael, “The Letter to Leo X by Raphael and Baldassare Castiglione (c. 1519),” in Andrea Palladio, Palladio’s Rome: A Translation of Andrea Palladio’s Two Guidebooks to Rome, trans. and ed. Vaughan Hart and Peter Hicks (New Haven: Yale University Press, 2006), 188–89.

  58. 58

    Raphael, “Letter to Leo X by Raphael and Baldassare Castiglione (c. 1519),” 182.

  59. 59

    Daniele Barbaro’s Vitruvius of 1567, 113 (bracketed text shows what the 1567 edition added to the 1556 version).

  60. 60

    For this sentence in the 1567 edition, see Barbaro, I dieci libri dell’Architettura (1567), 64; the 1556 version is “Accioche quello, che non puo far uno solo fatto fusse da molti.” Present in the 1556 edition, but not in the 1567 edition, are two additions worth noting. Just prior to the mention of Palladio there is the inclusion the word eccetto, which provides another significant linkage between sentences, which may be rendered as “but this, for some reason that I don’t quite understand, did not satisfy me except that in the drawings of the important figures I have used the works of Mr. Andrea Palladio” (emphasis added). And within the sentence honoring Palladio, there is the phrase “acquistato la vera Architettura non solo intendendo le belle, e sottili ragioni di essa, ma anco ponendola in opera,” which may be rendered as follows: he “acquired true Architecture not only by understanding the beautiful, subtle reasons for it, but also by putting them into the work.” Barbaro, I dieci libri dell’Architettura (1556), 40.

  61. 61

    Robert Tavernor, “Barbaro’s Vitruvius in Context: Text, Figure, and Body,” in Daniele Barbaro’s Vitruvius of 1567, trans. and ed. Kim Williams (Cham, Switzerland: Birkhäuser, 2019), xlvii.

  62. 62

    Daniele Barbaro’s Vitruvius of 1567, 5.

  63. 63

    Palladio, Four Books on Architecture, 92. Guido Beltramini and Howard Burns, eds., Palladio (London: Royal Academy of Arts, 2008), 82–83, 196.

  64. 64

    Manfredo Tafuri, Venice and the Renaissance, trans. Jessica Levine (Cambridge, MA: MIT Press, 1989), 128.

  65. 65

    Cellauro, “Daniele Barbaro and His Venetian Editions of Vitruvius of 1556 and 1567,” 87 (emphasis added).

  66. 66

    Carlo Ginzburg cited Machiavelli’s use of imprimere with regard to the Florentine context in his online lecture “Moulding the People: Machiavelli, Michelangelo,” presented March 17, 2021, co-sponsored by the Center for Italian Studies, the Italian Studies Section of the Department of Romance Languages, and the Kislak Center for Special Collections, Rare Books, and Manuscripts at the University of Pennsylvania and the Italian Academy at Columbia University. The translation of Discourses on Livy is from Mark Jurdjevic and Meredith K. Ray, eds., Machiavelli: Political, Historical, and Literary Writings (Philadelphia: University of Pennsylvania Press, 2019), 100, with grossi endnoted as signifying “coarse, untaught” (309).

  67. 67

    Tafuri, Venice and the Renaissance, 126.

  68. 68

    In contrast to this Veronese version, in the actual printed version the putto, still standing back behind while extending demonstratively forward, holds and directs the pointer with its left hand.

  69. 69

    Daniel Barbaro, I dieci libri dell’architettura di M. Vitruvio; tradutti et commentati da monsignor Barbaro, eletto patriarca d’Aquileggia (Vinegia [Venice]: Per Francesco Marcolini, 1556), 235: “la Figura è la sottoposta, con un altra Figura, che per ornamento, e, bellezza havemo fatto, dimostrando come egli si possa variare, servando la regola, & la forma de gli Horologi.”

  70. 70

    Deborah Howard, Venice Disputed: Marc’Antonio Barbaro and Venetian Architecture, 1550–1600 (New Haven: Yale University Press, 2011), 1.

  71. 71

    Manfredo Tafuri, Humanism, Technical Knowledge and Rhetoric: The Debate in Renaissance Venice (Cambridge, MA: Harvard University, Graduate School of Design, 1986), 23–24.

  72. 72

    Antonio Foscari and Manfredo Tafuri, L’armonia e i conflitti: La Chiesa di San Francesco della Vigna nella Venezia del ‘500 (Torino: G. Einaudi, 1983), 6; Tafuri, Humanism, Technical Knowledge and Rhetoric, 24 (emphasis added).

  73. 73

    Andrea Guerra, “Movable Façades: Palladio’s Plan for the Church of San Giorgio Maggiore in Venice and Its Successive Vicissitudes,” Journal of the Society of Architectural Historians 61, no. 3 (2002): 279.

  74. 74

    John Ruskin, The Stones of Venice (London: Smith, Elder, and Co., 1853), III: 301, emphasis in original.

  75. 75

    Marcello Fagiolo, “Principii prospettico-compositivi dell’architettura di Palladio,” Bollettino del Centro Internazionale di Studi di Architettura Andrea Palladio 20 (1978): 307–28.

  76. 76

    Fagiolo, “Principii prospettico-compositivi dell’architettura di Palladio,” 308.

  77. 77

    Fagiolo, “Principii prospettico-compositivi dell’architettura di Palladio,” 307–8, 310.

  78. 78

    Palladio, Four Books on Architecture, 240.

  79. 79

    Fagiolo, “Principii prospettico-compositivi dell’architettura di Palladio,” 308. The quoted phrases cited by Fagiolo as derived from Bruno Zevi’s entry on Palladio in the Enciclopedia Universale dell’Arte, vol. 10 (Venice: Istituto per la Collaborazione Culturale, 1963).

  80. 80

    Fagiolo, “Principii prospettico-compositivi dell’architettura di Palladio,” 308.

  81. 81

    Writing one year later than Fagiolo, the critic Roger Scruton was less alarmed than bemused while noting many of these disruptions, put, one might say, in no uncertain terms, given how dire they would seem to be both to certain conservative histories of classical construction and to Palladio’s position in such histories: “The Colossal Order of the façade—reminiscent of Michelangelo at his most robust—is shifted at the corners, precisely where the effect of strength would normally be required, giving way to a humorous combination of frail pilasters and languorous Atlantides, and altering the sizes and positions of the apertures even so far as at one point to break through the entablature.” But it is the very uncertainty implicate in those terms—frail, languorous, altering size and positions, even so far as to break through the entablature—which revealed that behind the bemusement was a nervous concern that required in the very next sentence, as it did in the case of Wittkower, an immediate attempt at defensive mitigation. Indeed, in an attempt to invert Wittkower’s concern regarding the palazzo’s coherence, Scruton posited that its congruity is due to its accommodating appeasement to its neighboring context: “The effect is not incongruous, but on the contrary, lively and delightful, achieving an unexpected harmony between the imposing Palazzo and the unpretentious architecture to either side. If the Palazzo did not impress us with a sense of rule-guided order, we should not be struck by this departure from rule, nor extract from it the meaning which it bears – the meaning, as one might put it, of a civilised accommodatingness, of an absolute lack of vulgar self-acclaim.” An argument itself incongruous with Palladio’s every attempt to distinguish himself and his buildings from their context. Regarding the particular double incongruity of his concluding sentence, see note 176. Roger Scruton, The Aesthetics of Architecture (Princeton: Princeton University Press, [1979] 2013), 157-158.

  82. 82

    Wittkower, Architectural Principles in the Age of Humanism (1971), 84.

  83. 83

    Wittkower, Architectural Principles in the Age of Humanism (1971), 93.

  84. 84

    Robert Klein, “Pomponius Gauricus on Perspective,” Art Bulletin 43, no. 3 (1961): 229.

  85. 85

    Daniele Barbaro, La pratica della perspettiua: Opera molto utile a pittori a scultori & ad architetti (Venice: Camillo & Rutilio Borgominieri, 1568), 159.

  86. 86

    Alois Riegl, The Origins of Baroque Art in Rome, ed. and trans. Andrew Hopkins and Arnold Witte (Los Angeles: Getty Research Institute, 2010), 159. My thanks to Spyros Papapetros for his assistance in the consideration of this translation. Regarding Riegl’s perception of dynamic animation within inanimate objects, see his On the Animation of the Inorganic: Art, Architecture, and the Extension of Life (Chicago: University of Chicago Press, 2012), 116–19, 129–31.

  87. 87

    Riegl, The Origins of Baroque Art in Rome, 145–46.

  88. 88

    Margaret Muther D’Evelyn, Venice and Vitruvius: Reading Venice with Daniele Barbaro and Andrea Palladio (New Haven: Yale University Press, 2012), 297–99; Palladio, Four Books on Architecture, 194. That Fagiolo’s analysis is in reference to Palladio’s combinative section-elevation of a temple complex—wherein the architect illustrates relations of enclosure from inside the temple to the portico to the square outside the temple to the surrounding outer colonnade—provides a further example of a social and spatial interlocking, which coincides with D’Evelyn’s incisive observations regarding the concept of civic conjoining.

  89. 89

    Vitruvius, On Architecture, 129.

  90. 90

    Vitruvius, On Architecture, 107.

  91. 91

    “Ma quello, che dice Vitr. che si deono fare dalla destra, & dalla siaistra gli sporti in modo, che le margini uenghino in fuori, & su’l taglio di esse, che Vitr. dice in ungue, si congiugneno insieme, egli si deue intendere, che le cimase, che sono nel hiperthiro sportino in fuori, & si uniscano insieme le cimase, che uoltano non a torno, (come dice il Filandro) ma dalla destra, & dalla sinistra uerso il parete da i lati, accioche quella parte dello sporto dello hiporthiro non rest ti dalle bande senza ornamento.” Barbaro, I dieci libri dell’Architettura (1567), 184. “But when Vitruvius says, ‘On the right and the left must be made the projections so that the margins come forward—which Vitruvius says are in ungueand at the top the cymatia are conjoined,’ it must be understood that the cymae that are in the hyperthyron project outwards and conjoin to the cymatia, which do not go around (as Philander says) but rather, on the right and left sides, turn back towards the wall, so that that part of the projection of the hyperthyron does not have edges that remain without ornament.” Daniele Barbaro’s Vitruvius of 1567, 305.

  92. 92

    Daniele Barbaro’s Vitruvius of 1567, 56, modified with the original punctuation and by substituting as the concluding word in this translation (“relation”) the more literal “respect,” to indicate both sets of relational ordering discussed by Barbaro: “io dico che l’ordine è tra quelle cose, che si riferiscono ad altre, & che poste sono in comparatione, & rispetto.” Barbaro, I dieci libri dell’Architettura (1567), 28.

  93. 93

    Daniele Barbaro’s Vitruvius of 1567, 59. The original reads, “con Vitr. istesso. dice adunque, seguitando la sua diffinitione, che la dispositione è atta collocatione delle cose. Et per cose intende le stanze, & le parti di esse nella fabrica, ouero le parti dell’opere fatte dall’Architetto, sieno quali si uoglia. da questa ben disposta collocatione delle parti, nasce il uedere in tutta la compositione una bella qualità, che è sito conueniente di ciascuna cosa. & però dice, scielto effetto, cioè sbrigato, netto, distinto. Alla dispositione s’oppone il superfluo come all’ordine s’oppone la confusione.” Barbaro, I dieci libri dell’Architettura (1567), 29.

  94. 94

    Rudolf Wittkower, “Sviluppo stilistico dell’architecttura palladiana,” Bollettino del Centro Internazionale di Studi di Architettura Andrea Palladio 1 (1959): 76. The original reads, “Si notano alcune ambiguità, per cui vien fatto di domandarci: Qual’è l’ordine? Quale strato si può definire il ‘piano’ della facciata? Forse quello cositituto dal limite tra la parte rientrante e quella sporgente? Si notano anche contrasti (l’ordine gigante e l’ordine minore) tra gli enormi capitelli delle lesene e quelli esili dell finestre. Inoltre negli intercolumni laterali si avverte una frattura dell’articolazione archittettonica.”

  95. 95

    Rudolf Wittkower, manuscript for “Sviluppo stilistico dell’architecttura palladiana,” n.d., 3, Folder: “Palladio Mss.,” Box 43, Series IV, Rudolf Wittkower Papers, Rare Book and Manuscript Library, Butler Library, Columbia University, New York, NY. A further ambiguity not noted by Wittkower along these delineating lines is that, in both the sketch and the printed half-elevation, the line over the soldier’s shoulder that should delineate and delimit the firm edge of the building in that area is surprisingly and disconcertingly absent.

  96. 96

    Wittkower footnoted his discussion of “inversion as a Mannerist principle” from the concluding section (“The Ricetto and the Problem of Mannerist Architecture”) of his earlier essay, “Michelangelo’s Biblioteca Laurenziana,” Art Bulletin 16, no. 2 (1934): 210. The previous year he had prepared an initial version of this section, titling it “Das Problem der Bewegung innerhalb der manieristischen Architectur,” for a festschrift on the occasion of Walter Friedländer’s sixtieth birthday, which was never published. Caroline van Eck’s translation of this text, “The Problem of Movement in Mannerist Architecture,” is included as an appendix in her article “The Composto Ordinato of Michelangelo’s Biblioteca Laurenziana: Proportion or Anthropomorphy?,” Architectural Histories 2, no. 1 (2014): 8–14.

  97. 97

    Wittkower, “Principles of Palladio’s Architecture,” 117.

  98. 98

    Wittkower, Architectural Principles in the Age of Humanism (1971), 85.

  99. 99

    Palladio, Four Books on Architecture, 240.

  100. 100

    Palladio, Four Books on Architecture, 233.

  101. 101

    Fagiolo, “Principii prospettico-compositivi dell’architettura di Palladio,” 310.

  102. 102

    Fagiolo, “Principii prospettico-compositivi dell’architettura di Palladio,” 310.

  103. 103

    Palladio, Four Books on Architecture, 403 (emphasis added).

  104. 104

    Fagiolo, “Principii prospettico-compositivi dell’architettura di Palladio,” 310.

  105. 105

    Palladio, Four Books on Architecture, 233.

  106. 106

    Palladio, Four Books on Architecture, 51–52.

  107. 107

    David Hemsoll, “Palladio’s Architectural Orders: From Practice to Theory,” Architectural History 58 (2015): 30–31.

  108. 108

    Wittkower, “Principles of Palladio’s Architecture,” 117.

  109. 109

    Palladio, Four Books on Architecture, 242.

  110. 110

    Wittkower, Architectural Principles in the Age of Humanism (1971), 85.

  111. 111

    Wittkower, Architectural Principles in the Age of Humanism (1971), 85.

  112. 112

    Christoph Luitpold Frommel, The Architecture of the Italian Renaissance (London: Thames and Hudson, 2007), 119; Mark Rakatansky, “The Transformations of Giulio Romano: Palazzo Stati Maccarani,” Aggregate 3 (2017), https://doi.org/10.53965/AGWL9936.

  113. 113

    Palladio, Four Books on Architecture, 403, 406, 419.

  114. 114

    Beltramini, “Palladio and His Books,” 90.

  115. 115

    Palladio, Palladio’s Rome: A Translation of Andrea Palladio’s Two Guidebooks to Rome, trans. and ed. Vaughan Hart and Peter Hicks (New Haven: Yale University Press, 2006).

  116. 116

    Beltramini and Burns, Palladio, 54.

  117. 117

    Margaret Daly Davis, “Andrea Palladio’s ‘L’antichita di Roma’ of 1554,” Pegasus 9 (2007): 154–55, 181.

  118. 118

    It is especially telling that Palladio’s description of the Domus Aurea notes nothing of what in this period was among its most noted features by architects and artists: the extensive wall paintings and grotesques that so inspired many of the architects he sought to style himself after, as well as the various artists who even at the time of “his” writing were adorning his houses in such modes, modes he later would extol in I Quattro Libri. Instead, his most brief visual description of the interior—“The whole house was gilded and set with diverse gems and precious stones. The ceilings of the sale were of richly carved ivory and made in such a way as to allow the guests to be sprinkled with flowers or precious odours, sent down through certain tubes” (Palladio, Palladio’s Rome, 56)—is just a slight summary in the already past tense of antiquity rather than the present in his own time, even though in his introduction Palladio promised that he “did not rest” at just compiling other writers but that “I also wished to see and measure everything with my own hands in minute detail” (3). As Margaret Daly Davis has noted (Davis, “Andrea Palladio’s ‘L’antichita di Roma’ of 1554,” 153, 158–59), we can compare this “paraphrase” of Palladio against the original text of the simplified Italian translation of Bartolomeo Marliani’s Topographia urbis Romae (1544), by Hercole Barbarasa, published only six years prior, in 1548:

    Palladio: Era la detta casa tutta meßa à oro intarsiata con varie gemme, & pietre pretiose. I palchi de le sale erano d’Avorio riccamente lavorati, & si volgevano di modo, che per certe cannelle, quando si cenava sporgevano fiori, & pretiosi odori sopra li convitati.

    Marliani (Barbarasa): Era questo Palazzo tutto fregiato à oro, (onde fù chiamato Aureo) co lavori, & scompartimenti di gemme, & di matreperle, i palchi de le stanze, dove si cenava, erano intarsiati, & messi ad’oro, le tavole eran d’avorio, congegnate in modo, che le si volgevano, & sopra i convitati, nel volgersi, spargevano fiori, & profume d’olii, & d’acque odorifere.

  119. 119

    Davis, “Andrea Palladio’s ‘L’antichita di Roma’ of 1554,” 182–83; Eunice D. Howe, “The Descritione de le Chiese and Le cose maravigliose dell’alma città di Roma,” in Andrea Palladio, The Churches of Rome, trans. Eunice D. Howe (Binghamton, NY: Medieval & Renaissance Texts & Studies, 1991), 32–40.

  120. 120

    Davis, “Andrea Palladio’s ‘L’antichita di Roma’ of 1554,” 185.

  121. 121

    Davis, “Andrea Palladio’s ‘L’antichita di Roma’ of 1554,” 159–60.

  122. 122

    Howe, “Descritione de le Chiese and Le cose maravigliose dell’alma città di Roma,” 36, 38.

  123. 123

    Beltramini and Burns, Palladio, 116.

  124. 124

    Fagiolo, “Principii prospettico-compositivi dell’architettura di Palladio,” 310.

  125. 125

    Marcello Fagiolo, “Le Facciate Palladiane: La Progettazione come Proiezione sul Piano di Spazi Dietro Spazi,” Bollettino del Centro Internazionale di Studi di Architettura Andrea Palladio 20 (1978): 47.

  126. 126

    Guido Beltramini, ed., Andrea Palladio and the Architecture of Battle: With the Unpublished Edition of Polybius’ Histories, trans. David Kerr (Venice: Marsilio, 2009), 69. For the suggestion that Zelotti may have assisted Palladio in the battle illustrations for his last published book, his edition of Julius Caesar’s Commentaries, and that Zelotti’s workshop may have assisted in the preparation of drawings for Palladio’s planned yet unpublished edition of Polybius’s Histories, see Beltramini, Andrea Palladio and the Architecture of Battle, 66, 69–70; and Beltramini and Burns, Palladio, 345, 347, 352-53. For a general discussion of Zelotti, see Katia Brugnolo Meloncelli, Battista Zelotti (Milan: Berenice, 1992).

  127. 127

    For a description of Zelotti’s frescos in Palazzo Valmarana, see Brugnolo Meloncelli, Battista Zelotti, 116-117. She states the possibility that the stucco-work may be attributable to Lorenzo Rubini, who in the same period was engaged on the Loggia del Capitaniato and Palazzo Barbarano. For descriptions of Zelotti’s frescoes in Villa Emo, see Brugnolo Meloncelli, Battista Zelotti, 107–13; and Gianpaolo Bordignon Favero, The Villa Emo at Fanzolo, trans. Douglas Lewis (University Park: Pennsylvania State University Press, 1972), 35–51.

  128. 128

    Antonio Foscari, Frescos within Palladio’s architecture: Malcontenta 1557–1575, trans. Lucinda Byatt (Zürich: Lars Müller, 2013).

  129. 129

    And we might be similarly deceived by the apparently settled positioning of that column, that armillary sphere, those books, that chair, and even that patrician who seems so prominently positioned there. One might reason that we are looking into an interior. But if we consider the presence of that high-pedestaled column (which Palladio would begin to manifest on the exteriors of the churches, the Loggia, and the late palazzos, most notedly Palazzo Valmarana), while high-pedestaled columns are present in the interiors of San Giorgio Maggiore and Il Redentore, the detached columns that Palladio designed for the interiors of the villas of Cornado and Pisani, as influenced by traditional Venetian salons, stand directly on their ground surface without pedestals. Even if Veronese was imagining that Barbaro was imagining a more refined version of the high pedestals constructed in the prior century in the Main Hall of the Scuola di San Marco, the space of this painting remains unsettled—an imagined interiority rather than an actual interior, wherein figurations of an internally imagined past are recursively projected externally to imprint the present as well as the future.

  130. 130

    Beltramini and Burns, Palladio, 198.

  131. 131

    Barbaro, I dieci libri dell’Architettura di M. Vitruvio, 11, quoted in Cosimo Monteleone, “The Perspective of Daniele Barbaro,” Nexus Network Journal 22, no. 1 (2022): 65.

  132. 132

    Beltramini and Burns, Palladio, 119.

  133. 133

    Lewis, Drawings of Andrea Palladio, 154–56. The technique of a variable exaggerated perspective engaged in these frescoes is evident in Palladio’s early illustration of the receding street scenes visible through the two archways of the Roman Theatre in the 1556 edition of Daniele Barbaro’s Vitruvius, as it would be manifest in Palladio’s last work of the Teatro Olimpico. However, that Palladio may be said to have participated in the design of aspects of the fictive frescoes in the interiors of his building to a much greater extent than has been generally assumed does not necessarily verify Lewis’s all-encompassing statement that “it is demonstrably true (once the documents for Palladio’s frescoed architectural frames at Lonedo are conceptually transferred, in their implications, to Maser) that Palladio himself designed all the elaborate and celebrated illusions, in his villas, of the fictive architectural frameworks, so brilliantly populated and expanded into space—not only by Veronese, sublimely, at Maser; but also by Zelotti, more prosaically (though with exactly parallel illusionistic frameworks, also drawn by Palladio), at Fanzolo, Malcontenta, and elsewhere.” Douglas Lewis, “Postscript with an Excursus on Recent Historiography,” Artibus et Historiae 18, no. 35 (1997): 38–39 (emphasis added). What may be proposed as even more significant, beyond any verification of Palladio’s participation with the artists who painted these particular frescoes (which Lewis did demonstrate in the sole example of Villa Godi at Lonedo), is that Palladio experimented transmedially with certain aspects of their elaborate and celebrated illusionary techniques in his own late architectural designs. It is worth considering, in terms of these experiments, that although Palladio, unlike Bernini and Borromini in the next century, would reserve for theatrical scenery the construction of that one particular aspect of the illusionary technique of exaggerated perspective, he did so not only in his final project but earlier as well, with receding street scenery in the temporary theater for Giangiorgio Trissino’s Sofonisba in 1562, just three years prior to the signing of the contract for the construction of Palazzo Valmarana. Beltramini and Burns, Palladio, 196, 245–47.

  134. 134

    Douglas Lewis, “Palladio’s Painted Architecture,” in Vierhundert Jahre Andrea Palladio (1580–1980): Colloquium der Arbeitsstelle 18. Jahrhundert (Heidelberg: Carl Winter, 1982), 70.

  135. 135

    This has led to presumptions along the lines of, “Presumably the grotesques were painted there virtually extemporaneously, disapproved by Barbaro because of their anti-Vitruvian character, and therefore excluded from the rest of the scheme.” Robert Smith, “A Matter of Choice: Veronese, Palladio and Barbaro,” Arte Veneta, no. 31 (1977): 65.

  136. 136

    In this passage, only with regard to Vitruvius’s observation about color at the end of the chapter does Barbaro characterize Vitruvius’s text as “clear [manifesto]” and “spoken plainly [chiaramente parlato],” such that Barbaro “has no desire to add more.” Barbaro, I dieci libri dell’Architettura (1567), 321; Daniele Barbaro’s Vitruvius of 1567, 525. The light Pliny sheds on painting is toward rather than away from its creative ambiguous effects, as evident in the following passages: (a) XXXV:36:65, “This last, it is recorded, entered into a competition with Zeuxis, who produced a picture of grapes so successfully represented that birds flew up to the stage-buildings; whereupon Parrhasius himself produced such a realistic picture of a curtain that Zeuxis, proud of the verdict of the birds, requested that the curtain should now be drawn and the picture displayed; and when he realized his mistake, with a modesty that did him honour he yielded up the prize, saying that whereas he had deceived birds Parrhasius had deceived him, an artist”; (b) XXXV:36:92, “He also painted Alexander the Great holding a Thunderbolt, in the temple of Artemis at Ephesus, for a fee of twenty talents in gold. The fingers have the appearance of projecting from the surface and the thunderbolt seems to stand out from the picture”; (c) XXXV:37:120, “Another recent painter was Famulus, a dignified and severe but also very florid artist; to him belonged a Minerva who faced the spectator at whatever angle she was looked at.” Pliny the Elder, Natural History, Volume IX, Books 33–35, trans. H. Rackham (Cambridge, MA: Harvard University Press, 1952), 308–11, 328–29, 348–49.

  137. 137

    Vitruvius sought, through various contractions and enlargements of columns such as with entasis (III.3.11–13), by the inclining forward of all the elements above the capital to avoid the building appearing to be leaning backward (III.5.13), and by “subtractions and additions” made “to cater for the characteristics and exigencies of the sites,” to develop modular systems “without room for equivocation” (VI.2.1–5). Vitruvius, On Architecture, 77–79, 86–88, 170–171. Barbaro, I dieci libri dell’Architettura (1567), 321; Daniele Barbaro’s Vitruvius of 1567, 525.

  138. 138

    Jurgis Baltrušaitis, in his critical study of anamorphosis, cited the importance of Barbaro’s text in the descriptive development of these techniques, although he incorrectly states its publication date as 1559. Jurgis Baltrušaitis, Anamorphic Art (Cambridge: Chadwick-Healey, 1977), 30–32.

  139. 139

    Barbaro, La pratica della perspettiua, 159; Kim Williams and Cosimo Monteleone, Daniele Barbaro’s Perspective of 1568 (Cham: Birkhäuser, 2021), 333.

  140. 140

    Barbaro, La pratica della perspettiua, 160. Williams and Monteleone, Daniele Barbaro’s Perspective of 1568, 334.

  141. 141

    Barbaro, La pratica della perspettiua, 161. Williams and Monteleone, Daniele Barbaro’s Perspective of 1568, 335.

  142. 142

    Barbaro, La pratica della perspettiua, 159, 179–86. Williams and Monteleone, Daniele Barbaro’s Perspective of 1568, 333, 357–66.

  143. 143

    This process is the “back-and-forth movement, a constant forming and re-forming” of anamorphosis noted by Stephen Greenblatt. Stephen Greenblatt, Renaissance Self-Fashioning: From More to Shakespeare (Chicago: University of Chicago Press, 1980), 23.

  144. 144

    Barbaro, La pratica della perspettiua, 161. Williams and Monteleone, Daniele Barbaro’s Perspective of 1568, 335.

  145. 145

    Barbaro, La pratica della perspettiua, 161. Williams and Monteleone, Daniele Barbaro’s Perspective of 1568, 335.

  146. 146

    Monteleone, “Perspective of Daniele Barbaro,” 62. Also noted in Williams and Monteleone, Daniele Barbaro’s Perspective of 1568, 91-92.

  147. 147

    Noted by Burns in Beltramini and Burns, Palladio, 116.

  148. 148

    Guido Beltramini, The Private Palladio (Zürich: Lars Müller, 2012), 78–79.

  149. 149

    Beltramini, Private Palladio, 78. Vittoria’s diary entry is reprinted in full in Howard Burns, Marco Collareta, and Davide Gasparotto, eds., Valerio Belli Vicentino 1468 ca.–1546 (Vicenza: N. Pozza, 2000), 445.

  150. 150

    Palladio cited in I Quattro Libri the “superb stucco work of Master Alessandro Vittoria” at Palazzo Thiene and at Villa Pisani (Montagnana), “built by the magnificent Signor Francesco Pisani,” and the “Seasons of the Year carved by Master Alessandro Vittoria, a superb sculptor.” Palladio, Four Books on Architecture, 88, 130. And regarding this close community of artists and patrons, Beltramini noted that “in a letter of 1552, Aretino mentions medals of Vicentine women—Caterina Chiericati and the daughters of Marcantonio Thiene—made by Alessandro Vittoria.” Beltramini and Burns, Palladio, 201.

  151. 151

    Beltramini and Burns, Palladio, 31. Beltramini continues: “Evidence of this can be found in the prestigious commissions which he received from Popes Leo X, Clement VII and Paul III, and in his friendships with men of letters of the caliber of Pietro Bembo, Giangiorgio Trissino and Pietro Aretino, and of artists such as Raphael and Michelangelo… . His house was a destination for pilgrimages made by an ‘infinite number of foreigners,’ who came to admire one of his recent creations” (31).

  152. 152

    Beltramini, Private Palladio, 23–24.

  153. 153

    Giorgio Vasari, Le vite de’ più eccellenti pittori, scultori, e architettori (1550), Edizone Giuntina, ed. Paola Barocchi and Rossana Bettarini (Florence: Sansoni; SPES, 1966–1987), 846, http://www.memofonte.it/home/files/pdf/vasari_vite_giuntina.pdf; Giorgio Vasari, Le vite de’ più eccellenti pittori, scultori, e architettori (1568), Edizone Torrentiniana, ed. Paola Barocchi and Rossana Bettarini (Florence: Sansoni; SPES, 1966–1987), 2:233, http://www.memofonte.it/home/files/pdf/vasari_vite_torrentiniana.pdf.

  154. 154

    Giorgio Vasari, Lives of the Artists, vol. 2, trans. George Bull (London: Penguin, 1987), 187–88.

  155. 155

    Vasari, Le vite de’ più eccellenti pittori, scultori, e architettori (1568), 2:232.

  156. 156

    Vasari, Lives of the Artists, 2:188.

  157. 157

    Temanza, Vita di Andrea Palladio vicentino, XXIV–XXV.

  158. 158

    Wittkower, “Principles of Palladio’s Architecture,” 116–117 (emphasis added). As for the structural abuse of interrupted entablatures, Beltramini notes the same phenomenon in two other late works: “in fact windows also interrupt the architrave on the lateral apses exterior in the church of San Giorgio and on the side of the church of the Redentore in Venice.” Beltramini and Burns, Palladio, 204–5.

  159. 159

    The Basilica’s projected entablatures would seem canonical were it not for the fact that in the lower Doric order, in-folded around the frieze projections, are extended mutant tri-plus glyphs—with four rather than three of the raised vertical surfaces Vitruvius called femur—thus the accurate term for which would be not tri- but tetraglyph. Precedents can be found, of course, as always. See for example, the well-considered listing of such by Francesca Mattei and Francesca Salatin (“Un ‘Vitruvio’ postillato alla Biblioteca Comunale Teresiana di Mantova,” Arte Lombarda, no. 173/174 [2015]: 57, 67–68), including those present in some of the courtyard drawings for Raphael’s Palazzo Branconio that have been attributed to Giulio Romano. With regard to the latter, or Antonio da Sangallo the Younger’s courtyard corner in-folded triglyphs in Palazzo Baldassini, one might assume an expression of joists meeting perpendicularly at the corner. Palladio’s even more noncanonical variant here, from which hang eight guttae rather than the canonical six cone-shaped drops, is (mis)applied in its in-folded projection as a super-imposed asymmetrical re-orientation that makes no (even implied) structural sense as a covering for the cut-off end of a single joist or perpendicular ends of two cross-joists. An “abuse” thus of the symbolic structural signification of Vitruvius’s origin-story of classical construction from wood to stone—“what is impossible in reality could not be based on sound principles if it was replicated in imitations of that reality” (Vitruvius, On Architecture, 98)—which nonetheless reveals the mediated signifying sense, the graphically carved fictive impress, in the very term triglyph. As for Palladio’s projective “solution” in this example, explanatory excuses may be proposed, as always: a misreading of the drawing by the stonemason or a rookie mistake by a still maturing architect for his first major public commission or an unfortunate early experiment. In these matters there is no need to excuse nor to excoriate. Nor to extoll, but rather to observe with interest that what is fortunate about such “unfortunate solutions” is that they provide ways to break through any reductive claims of Palladio having achieved a perfect knowledge of Vitruvian grammar, if such claims are made in order to curtail any further probing into his ever interesting and ongoing deliberately “imperfect” epistemological experiments in such grammar.

  160. 160

    Tafuri, Venice and the Renaissance, 129.

  161. 161

    Beltramini and Burns, Palladio, 305.

  162. 162

    Lewis, Drawings of Andrea Palladio, 220–222.

  163. 163

    Vitruvius, On Architecture, 170 (emphasis added).

  164. 164

    Saussure, Course in General Linguistics, 67–69.

  165. 165

    “Colui ch’innanzi la sentenza pone / suo cor in dubbio, apprezza quel ch’è vero… . Il dubbio è padre dell’inventione, / perché risveglia il languido pensiero; / il dubbio pugne, isferza e fa leggiero / chi tardo e pigro cerca la cagione.” Quoted in Tafuri, “La norma e il Programma,” XVI, with regard to their epistemological reflection on the interactive process of knowledge: “Nei cinque sonetti dedicati al dubbio fa strada un aspetto gnoseologico, specifico del dubbio stesso.” As Tafuri noted, these sonnets were included in Predica dei sogni, published by Barbaro under a pseudonym in 1542 by the same publisher (Francesco Marcolini) who fourteen years later would first publish his Vitruvius of 1556.

  166. 166

    Daniele Barbaro’s Vitruvius of 1567, 64, modified by substituting “doubting proposal” for the otherwise accurate “dubious proposal” in this translation. While most meanings of “dubious” indicate the questioning condition of a proposal as Barbaro indicated, one common use of this word today would suggest that such a proposal was questionable rather than questioning. According to Barbaro, I dieci libri dell’Architettura (1567), 33: “Vitr. E dimostramento delle oscure dimande, & ragione della cosa ritrouata di nuouo con presta, & mobile uiuacità. & questi sono i termini della dispositione; Dimanda è proposta dubbiosa, dubbio è posto tra mezo l’affirmare, & il negare. quando adunque lo intelletto è tra’l si, & il nò, egli forma una dubbiosa proposta, che si chiama dimanda, ouero quistione. & usa alcune particelle, che dimostrano il modo dello interrogare, & di richiederne la risposta. come è. sei tu buono o no? che cosa è bontà? D’onde uiene? a chi peruiene? & altre cose & modi simiglianti, i quali non piegando piu all’ affirmatione, che alla negatione, richieggono certa, & indubitata risposta, la quale non puo esser ben fatta, se non da quelli, che haueranno la inuentione per lo pensamento, & per la industria, & uiuacità dello ingegno.”

  167. 167

    Wittkower, “Principles of Palladio’s Architecture,” 89, 97n2. Wittkower’s preface in the 1962 edition of Architectural Principles in the Age of Humanism (London: Alec Tiranti, 1962), stated that “Roberto Pane used the forum of the Eighteenth International Congress of the History of Art at Venice (Venezia e l’Europa, Venice, 1956) for a broadside against ideas propounded by me” (n.p.).

  168. 168

    Roberto Pane, “Andrea Palladio e l’interpretazione della architettura rinascimentale,” in Venezia e L’Europa, Atti del XVIII Congresso Internazionale di Storia dell’Arte (Venice: Arte veneta, 1956), 409, 411.

  169. 169

    Gioseffi, Andrea Palladio, 13.

  170. 170

    Gioseffi, “Il disegno come fase progettuale dell’attività palladiana,” 62.

  171. 171

    Manfredo Tafuri, “Giulio Romano: Language, Mentality, Patrons,” in Giulio Romano, ed. Manfredo Tafuri et al. (Cambridge: Cambridge University Press, 1998), 25. It may be noted that Shearman used the word “relaxed” rather than Tafuri’s “cooling off,” but the sense nonetheless remains equivalent. John Shearman, “The Literature of Art: Giulio Romano,” Burlington Magazine 101, no. 681 (1959): 460.

  172. 172

    Gioseffi, “Il disegno come fase progettuale dell’attività palladiana,” 62: “E che dire allora del ‘grido di dolore’ degli ordini, della ‘protesta’ dei capitelli, della ‘contestazione’ delle sopraporte (per non parlare del pianto dei gocciolatoi e dello stridore dei denticoli … )?” What becomes evident in Gioseffi’s lecture notes (Gioseffi, Andrea Palladio, 12) is that this passage was his attempt to match in ironic tones what may be termed, in this context, the overheated hyperbole of Bruno Zevi’s description of Palazzo Valmarana in, for example, how the latter states that the seeming disappearance of the secondary order behind the giant order “‘suddenly re-emerges, traverses and finally prevails in the thundering intervention of two flamboyant statues’ [ma poi d’un tratto riemerge, travalica ai lati e infine prevale per il tonante intervento di due vistose statue].” Gioseffi is quoting in this example Zevi’s entry on Palladio in the Enciclopedia Universale dell’Arte, vol. 10 (Venice; Rome: Istituto per la Collaborazione Culturale, 1963).

  173. 173

    Wittkower, Architectural Principles in the Age of Humanism (1971), 93.

  174. 174

    Gioseffi, “Il disegno come fase progettuale dell’attività palladiana,” 62: “Perche il Palladio faceva architettura e non politica. Forse anzi faceva architettura proprio per non fare ‘politica’ (o un certo tipo di ‘politica’). Apparteneva a quella razza di ‘prestatori d’opera’ che, in un mondo di chiacchieroni, ‘svolgeva il lavoro che c’era da svolgere,’ in cio ravvisando una ragione bastante a giustificare la propria presenza nel mondo. Lavorava ‘su commissione,’ pago di fare un lavoro ben fatto e di ritrarne una onesta mercede. Non sputava nel piatto dove mangiava, ma non risulta che prestasse ai committenti altri servizi oltre quelli esplicitamente e puntigliosamente elencati nei contratti.”

  175. 175

    Tafuri, “Giulio Romano,” 25.

  176. 176

    A similar attempt to efface this Artificing Self is evidenced in Scruton’s aforementioned statement in The Aesthetic of Architecture that the meaning Palazzo Valmarana bears, due to its departure of its own rules at the corner, is “as one might put it, of a civilised accommodatingness, of an absolute lack of vulgar self-acclaim.” Closer attention to this claim by Scruton regarding Palladio would reveal a double disingenuousness in the valuation of vulgar self-acclaim and its absolute lack. In the case of the former it may be noted in passing that Scruton signs his introduction to the 2013 edition of this book as written from “Scrutopia.” But more significantly, in the case of latter, one may contrast Palladio’s courtier-like (inversive) self-acclaim on the dedication page of I Quattro Libro’s Book III (“my awareness of the humbleness of my success”) with the assertive self-acclaim in the description of his own Basilica in the same book (“I have no doubt at all that that this building can be compared to antique structures and included amongst the greatest and most beautiful buildings built since antiquity”). Scruton, Aesthetics of Architecture, xx, 158; Palladio, Four Books of Architecture, 187, 203.

  177. 177

    Beltramini and Burns, Palladio, 40, 43.

  178. 178

    Tafuri, Venice and the Renaissance, 127–28.

  179. 179

    Tafuri, Venice and the Renaissance, 127–28.

  180. 180

    Rudolf Wittkower, Art and Architecture of Italy 1600–1750 (Harmondsworth, UK: Penguin, 1959), 73.

  181. 181

    Beltramini and Burns, eds., Palladio, 199. Christoph Luitpold Frommel, “The Roman Works of Giulio” and “Giulio in Rome,” in Giulio Romano, ed. Manfredo Tafuri et al. (Cambridge: Cambridge University Press, 1998), 63–64, 145. See also Pier Nicola Pagliara, “Palazzo Branconio,” in Raffaello architetto, ed. Christoph Luitpold Frommel, Stefano Ray, and Manfredo Tafuri (Milan: Electa, 1984), 197–216.

  182. 182

    Edward W. Said, On Late Style: Music and Literature against the Grain (New York: Pantheon, 2006), 7 (original emphasis).

  183. 183

    Vasari, Le vite de’ più eccellenti pittori, scultori, e architettori (1550), 845.

  184. 184

    Wittkower, “Principles of Palladio’s Architecture,” 116.

  185. 185

    Wittkower, “Principles of Palladio’s Architecture,” 116n2.

  186. 186

    Frommel, “Giulio in Rome,” 145–46.

  187. 187

    Guido Beltramini, “Palladio and the Project,” in Palladio and His Legacy: A Transatlantic Journey, ed. Charles Hind and Irena Murray (Venice: Marsilio, 2010), 68–70. Lewis, Drawings of Andrea Palladio, 18–22, 80–81.

  188. 188

    Wittkower, Architectural Principles in the Age of Humanism (1971), 86. Beltramini, “Palladio and the Project,” 60.

  189. 189

    For RIBA XVII/11r, see https://www.ribapix.com/Design-for-a-palace-facade; for RIBA XVII/19 and 26, see https://www.ribapix.com/Design-for-the-Palazzo-da-Monte-Vicenza-elevation and https://www.ribapix.com/Design-for-the-Palazzo-da-Monte-Vicenza-facade; and for RIBA XVII/16, see https://www.ribapix.com/design-for-a-villa-facade-and-plan.

  190. 190

    Beltramini and Burns, Palladio, 82–83.

  191. 191

    RIBA SC222/XIII/9r and RIBA SC222/XIII/8r are documented in Beltramini and Burns, Palladio, 85–88.

  192. 192

    Wittkower, Architectural Principles in the Age of Humanism (1971), 83, 83n2, citing Ernst Gombrich, “Zum Werke Giulio Romanos: II. Versuch einer Deutung,” Jahrbuch der kunsthistorischen Sammlungen in Wien 9 (1935): 138n70. Gombrich’s description of these motifs consists of a single sentence, citing the “near borrowing” of the entrance tetrastyle atrium from Palazzo Te and the “exact copy” of the upper-floor windows from Giulio’s own house in Rome (as documented in the Uffizi drawing of the house): “Des ersteren Palazzo Tiene in Vicenza (datiert 1556) bietet in der Eingangshalle fast eine Entlehnung der Einfahrt des Palazzo del Te, in den Fenstern des Obergeschosses exakte Kopien nach dem Vorbilde der Uffifienzeichnungen.” As for the latter motif, all the particular tectonic figures (in their unique conjoined configuration) are shared between the window of Giulio’s House and those of Palazzo Thiene, even if the most evident albeit minor differences that makes this “copying” not quite exact are the additional rectangular blocks that band the Ionic columns (four in the former, five in the latter) along with the reduced number of voussoirs under the pediments (seven in the former, five in the latter).

  193. 193

    Wittkower, Architectural Principles in the Age of Humanism (1971), 80.

  194. 194

    Wittkower, “Principles of Palladio’s Architecture,” 116.

  195. 195

    Additionally, with regard to conjoined patron linkages, it may be observed that both editions of Barbaro’s Vitruvius are dedicated to Cardinal Ippolito II d’Este, whose elder brother, Ercole II d’Este (the Duke of Ferrera), and a cousin, Cardinal Ercole Gonzaga (who governed Mantua upon the death of his brother, Giulio’s principal patron, Frederico Gonzaga), had both been involved in commissions to Giulio.

  196. 196

    See Wittkower, Architectural Principles in the Age of Humanism (1971), 78–79; and Beltramini and Burns, Palladio, 6–7, 75.

  197. 197

    Gombrich, “Zum Werke Giulio Romanos: II,” 138n70.

  198. 198

    Palladio, Four Books on Architecture, 88.

  199. 199

    Beltramini and Burns, Palladio, 74.

  200. 200

    Among the six generic sentences Palladio used to “describe” Palazzo Valmarana are these two attempting to describe as already existent the following never-to-exist features: “This house is divided into two parts by the courtyard in the middle, around which is a corridor or balustrade which leads one from the front to the back of the building… . The garden, which one finds in front of the stables, is much larger than indicated on the plan, but has been made so small because otherwise the page would not have been large enough to include the stables, and the same for the rest.” Palladio, Four Books on Architecture, 92.

  201. 201

    Palladio, Four Books on Architecture, 276.

  202. 202

    For these two versions, see Davis, “Andrea Palladio’s ‘L’antichita di Roma’ of 1554,” 159–60. In Descritione de le chiese, there is no reference in Palladio’s entry on Santa Maria del Popolo to Raphael’s Chigi Chapel nor any entry at all for the latter’s Sant’Eligio degli Orefici.

  203. 203

    Guido Beltramini, “Palladio in the Light of Day: The Crown and the Sliding Cornice,” gta papers 6 (2021): 42

  204. 204

    Beltramini and Burns, Palladio, 61–62.

  205. 205

    Beltramini, “Palladio and the Project,” 60.

  206. 206

    Mark Rakatansky, “The Transformations of Giulio Romano: Palazzo Stati Maccarani,” Aggregate 3 (2017), https://doi.org/10.53965/AGWL9936.

  207. 207

    Rudolf Wittkower, “Pseudo-Palladian Element in English Neo-Classical Architecture,” Journal of the Warburg and Courtauld Institutes 6, no. 1 (1943): 154–64; Mark Rakatansky, “How Serlio Haunts Us Still: Wittkower’s Paradoxical Parallax,” in Digital Serlio Project, ed. Francesco Benelli (New York: Avery Library, Columbia University, 2018), https://library.columbia.edu/libraries/avery/digitalserlio/essays/rakatansky.html.

  208. 208

    Wittkower, “Pseudo-Palladian Element in English Neo-Classical Architecture,” 158.

  209. 209

    Bruce Allsopp, Inigo Jones on Palladio: Being the notes by Inigo Jones in the copy of I Quattro libri dell architettura di Andrea Palladio, 1601, in the Library of Worcester College, Oxford, 2 vols. (Newcastle-upon-Tyne, UK: Oriel Press, 1970), 2:22.

  210. 210

    Tafuri, “La norma e il Programma,” XXXI.